Cambridge Street, Pimlico, London, SW1V
By Foxtons
£ 595,000
Reviews
3 out of 5 stars
Foxtons says ..
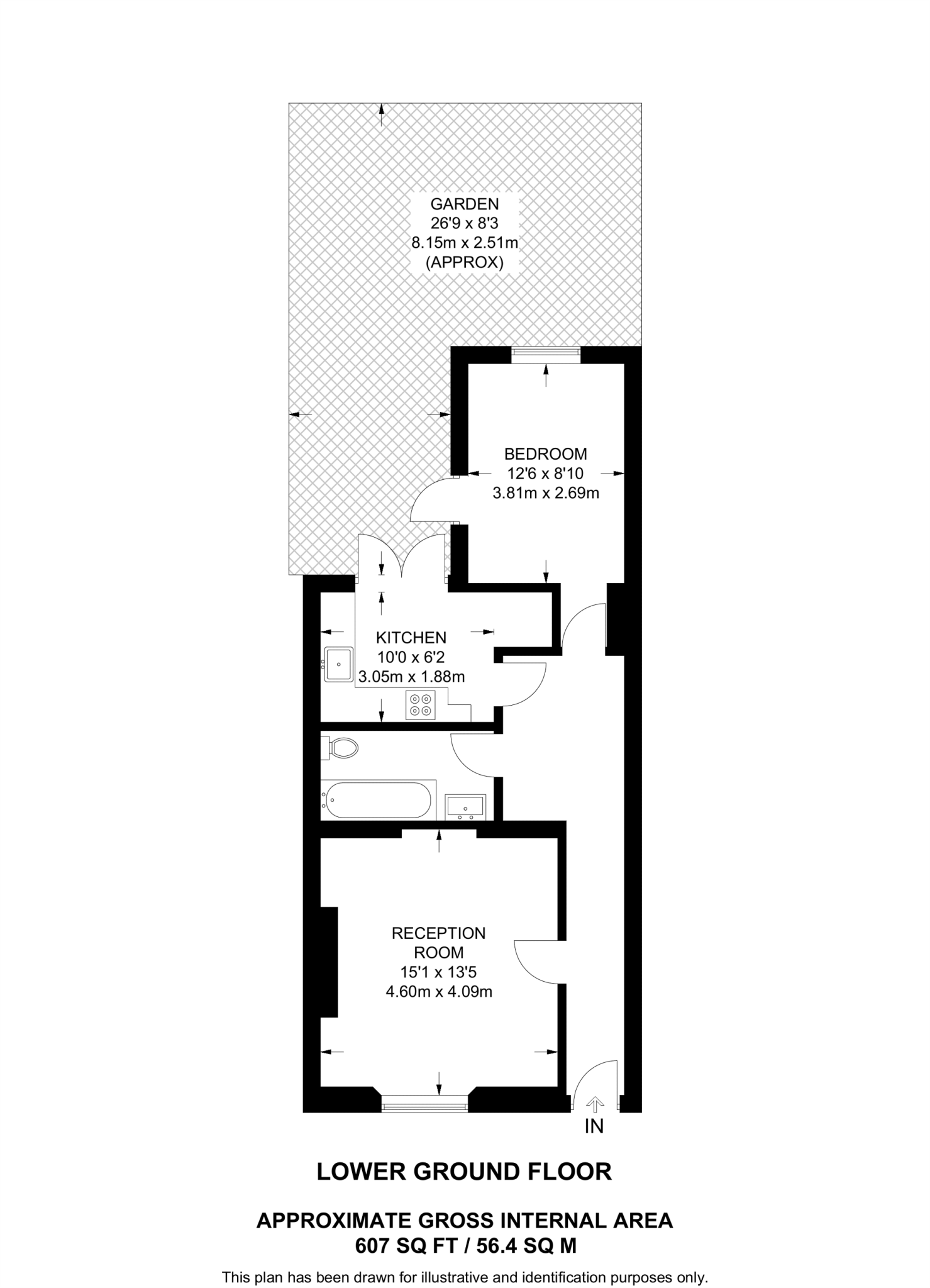
Well presented throughout, this lovely 1 bedroom flat benefits from a spacious reception room with high ceiling, modern kitchen, and a generous sized bedroom leading to a private patio.
Property Oracle says ..
This one-bedroom flat located on Cambridge Street in Pimlico, London, is presented as a recently renovated property. The photos depict a modern, updated interior with a new kitchen and bathroom. The finishes appear contemporary, though not luxurious. The property’s floor plan suggests a compact layout suitable for a single person or couple. The location in Pimlico is a significant asset. Pimlico is an affluent area with excellent transport links, particularly Victoria Station, being conveniently close. The presence of several well-regarded primary schools within a short distance adds further appeal to families. However, a key drawback is the apparent lack of any significant outdoor space, which is a common limitation for flats in central London. The price, while not exceptionally low given Pimlico’s market, aligns with prices of similar properties in the area, assuming the provided square footage information is accurate. Potential buyers should carefully weigh the benefits of the location and modern interior against the lack of outdoor space and the smaller size of the property before making a purchasing decision. Given the limited plot size, it is important to note that this is primarily suited for someone seeking a centrally located, convenient home with limited requirement for outdoor space.
Therefore, we give this property 6 / 10. *Disclaimer: This is our option and does constitute a recommendation or financial advice. Do your own research. *
- Price
- 7
- Condition
- 7
- Location
- 8
- Land
- 2
- Bedrooms
- 1
- Bathrooms
- 0
- Sqft (est)
- 607.08
The heatmap indicates the level of crime in the area. The color of the heatmap indicates the crime severity and recency.
Metrics Year-on-Year
- Average area value
- 1,189,286.00 £Increased by 2.36 %
- Est sale value
- 545,157.84 £Decreased by 37.90 %
- Average area rental value
- 2,412.00 £/moDecreased by 1.51 %
- Est letting value
- 607.08 £/moDecreased by 66.67 %
- Est rental Yield
- 2.43 %Decreased by 3.95 %
- Crime Rate
- 6.00 %Unchanged by 0.00 %
Agent Activity
Foxtons created the listing.
Nearby Schools
| Name | Type | Ofsted | Distance |
|---|---|---|---|
| Sir Simon Milton Westminster University Technical College | University Technical College | 0.36 KM | |
| St Gabriel'S Cofe Primary School | Voluntary Aided School | Good | 0.37 KM |
| Eaton Square School | Other Independent School | 0.39 KM | |
| South Locality Hub Lead - Churchill Gardens Children'S Centre | Children's Centre | 0.50 KM | |
| Churchill Gardens Primary Academy | Academy Sponsor Led | Good | 0.55 KM |
Images
Nearby Streets
| Name | Average Price | Average Sqft | Distance |
|---|---|---|---|
| Saint George's Drive | £ 0 | 0 | 0.00 KM |
| Cumberland Court | £ 0 | 0 | 0.00 KM |
| Glasgow Terrace | £ 415,000 | 0 | 0.00 KM |
| Bulleid Way | £ 0 | 0 | 0.00 KM |
| Eccleston Bridge | £ 725,000 | 0 | 0.00 KM |
Nearby Transport
| Name | NLC | TLC | Distance |
|---|---|---|---|
| Victoria | 5426 | VIC | 0.65 KM |
| Battersea Park | 5420 | BAK | 1.46 KM |
| Queenstown Road (Battersea) | 5596 | QRB | 1.65 KM |
| Wandsworth Road | 5372 | WWR | 2.22 KM |
| Vauxhall | 5597 | VXH | 2.32 KM |
Nearby Listings
| Address | Price | Type | Score | Distance |
|---|---|---|---|---|
| Cambridge Street, Pimlico, London, SW1V | £ 595,000 | BUY | 6 / 10 | 0.00 KM |
| Alderney street, London, SW1V | £ 289,000 | BUY | Unknown | 0.01 KM |
| Sussex Street, Pimlico | £ 1,950,000 | BUY | 6 / 10 | 0.03 KM |
| Cambridge Street, Pimlico, SW1V | £ 800,000 | BUY | 6 / 10 | 0.03 KM |
| Cambridge Street, London, SW1V | £ 870,000 | BUY | 5 / 10 | 0.04 KM |
Nearby Properties
| Address | Price | Distance |
|---|---|---|
| 106b Cambridge Street | £ 175,000 | 0.02 KM |
| 106g Cambridge Street | £ 484,810 | 0.02 KM |
| 106c Cambridge Street | £ 278,000 | 0.02 KM |
| 106e Cambridge Street | £ 1,280,000 | 0.02 KM |
| 88b Cambridge Street | £ 950,000 | 0.02 KM |