170 High Street, Ecclesfield, Sheffield, South Yorkshire, S35 9XF
By Pugh and Company
£ 100,000
Reviews
3 out of 5 stars
Pugh and Company says ..
Guide Price: £100,000 OF INTEREST TO BUILDERS AND INVESTORS - A stone built end of terrace house in the popular village of Ecclesfield which is well served by local facilities and a short drive from the M1 at junction 35. The property has a ground floor rear extension and on the whole...
Property Oracle says ..
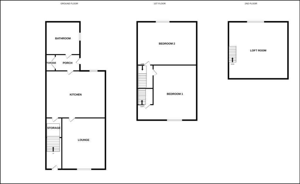
This is a terraced property located on High Street, Ecclesfield, Sheffield. It features two bedrooms, one bathroom, and a garden. The property’s location is central, with good access to local amenities and schools. However, the interior condition suggests that the property requires renovation. The asking price of £100,000 is below the average for the area, reflecting the need for refurbishment. The property offers an opportunity for buyers willing to undertake a renovation project.
Therefore, we give this property 6 / 10. *Disclaimer: This is our option and does constitute a recommendation or financial advice. Do your own research. *
- Price
- 8
- Condition
- 4
- Location
- 7
- Land
- 6
- Bedrooms
- 2
- Bathrooms
- 1
The heatmap indicates the level of crime in the area. The color of the heatmap indicates the crime severity and recency.
Metrics Year-on-Year
- Average area value
- 276,071.00 £Increased by 29.23 %
- Average area rental value
- 713.00 £/moDecreased by 20.69 %
- Est rental Yield
- 3.10 %Decreased by 38.61 %
- Crime Rate
- 3.00 %Unchanged by 0.00 %
Agent Activity
Pugh and Company created the listing.
Nearby Schools
| Name | Type | Ofsted | Distance |
|---|---|---|---|
| Ecclesfield Primary School | Community School | Good | 0.80 KM |
| Monteney Children'S Centre | Children's Centre Linked Site | 0.84 KM | |
| Monteney Primary School | Academy Converter | Good | 0.93 KM |
| Hartley Brook Primary School | Academy Sponsor Led | Good | 1.29 KM |
| Beck Primary School | Academy Converter | Good | 1.39 KM |
Images
Nearby Streets
| Name | Average Price | Average Sqft | Distance |
|---|---|---|---|
| Town Fields Avenue | £ 0 | 0 | 0.00 KM |
| St Michaels Close | £ 0 | 0 | 0.00 KM |
| Linden Court | £ 220,000 | 0 | 0.00 KM |
| St. Wandrilles Close | £ 0 | 0 | 0.00 KM |
| Lindsay Drive | £ 159,950 | 0 | 0.00 KM |
Nearby Transport
| Name | NLC | TLC | Distance |
|---|---|---|---|
| Chapeltown (South Yorkshire) | 6664 | CLN | 2.86 KM |
| Meadowhall | 6663 | MHS | 5.63 KM |
| Sheffield | 6691 | SHF | 6.61 KM |
| Elsecar | 6667 | ELR | 7.68 KM |
| Darnall | 6729 | DAN | 7.86 KM |
Nearby Listings
| Address | Price | Type | Score | Distance |
|---|---|---|---|---|
| 170 High Street, Ecclesfield, Sheffield, South Yorkshire, S35 9XF | £ 100,000 | BUY | 6 / 10 | 0.00 KM |
| High Street, Ecclesfield | £ 150,000 | BUY | 5 / 10 | 0.01 KM |
| St. Michaels Road, Ecclesfield, Sheffield, South Yorkshire, S35 | £ 290,000 | BUY | 7 / 10 | 0.04 KM |
| St Michaels Road, Ecclesfield | £ 190,000 | BUY | 5 / 10 | 0.08 KM |
| Cross Hill, Ecclesfield, S35 | £ 279,950 | BUY | 7 / 10 | 0.10 KM |
Nearby Properties
| Address | Price | Distance |
|---|---|---|
| 210 High Street | £ 85,000 | 0.01 KM |
| 194 High Street | £ 143,250 | 0.01 KM |
| 188 High Street | £ 99,950 | 0.01 KM |
| 206 High Street | £ 121,000 | 0.02 KM |
| 180 High Street | £ 115,000 | 0.02 KM |