Gilson Bailey says ..
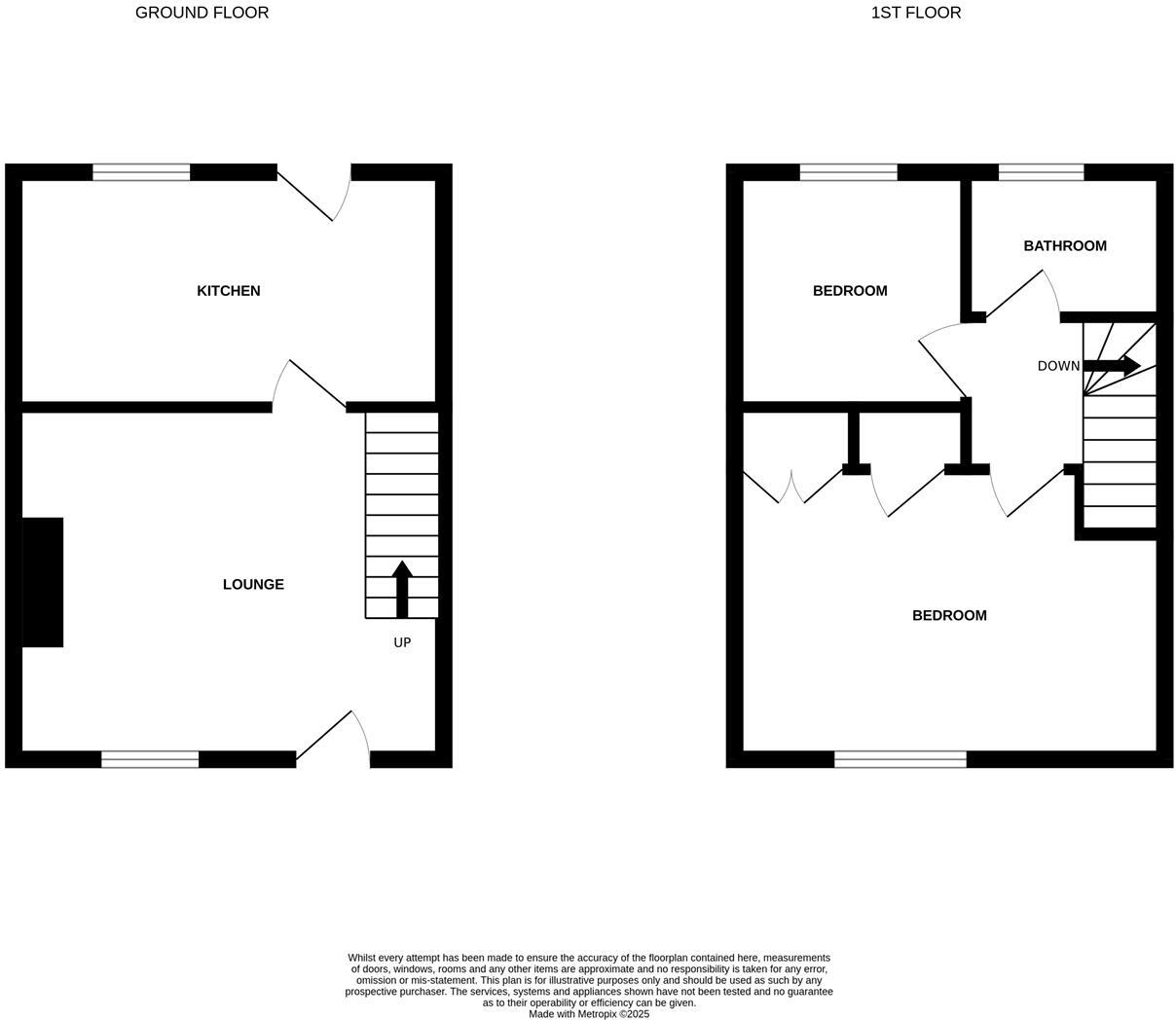
**CHARMING COTTAGE WITH ORIGINAL FEATURES AND CONTEMPORARY APPEAL** Nestled in a peaceful cul-de-sac within the highly desirable market town of Wymondham, this enchanting two-bedroom mid-terrace cottage offers the perfect blend of period charm and modern convenience, making it an ideal choice for...
Property Oracle says ..
Therefore, we give this property 6 / 10. *Disclaimer: This is our option and does constitute a recommendation or financial advice. Do your own research. *
- Price
- 4
- Condition
- 7
- Location
- 7
- Land
- 6
- Bedrooms
- 2
- Bathrooms
- 1
- Sqft (est)
- 270.39
The heatmap indicates the level of crime in the area. The color of the heatmap indicates the crime severity and recency.
Metrics Year-on-Year
- Average area value
- 346,250.00 £Increased by 11.21 %
- Est sale value
- 80,305.83 £Increased by 3.13 %
- Average area rental value
- 1,105.00 £/moDecreased by 1.78 %
- Est letting value
- 0.00 £/moDecreased by 100.00 %
- Est rental Yield
- 3.83 %Decreased by 11.75 %
- Crime Rate
- 3.00 %Unchanged by 0.00 %
from 311,337.00 £
from 77,872.32 £
from 1,125.00 £/mo
from 270.39 £/mo
from 4.34 %
from 3.00 %
Agent Activity
Gilson Bailey created the listing.
Nearby Schools
| Name | Type | Ofsted | Distance |
|---|---|---|---|
| Ashleigh Primary School And Nursery, Wymondham | Community School | Outstanding | 2.11 KM |
| Wymondham Area Children'S Centre | Children's Centre | 2.16 KM | |
| Wymondham High Academy | Academy Converter | Good | 3.02 KM |
| Robert Kett Primary School | Foundation School | Requires improvement | 3.19 KM |
| Browick Road Primary And Nursery School | Community School | Outstanding | 3.26 KM |
Images
Nearby Streets
| Name | Average Price | Average Sqft | Distance |
|---|---|---|---|
| Croft Way | £ 0 | 0 | 0.00 KM |
| Granger Close | £ 0 | 0 | 0.00 KM |
| Barnes Close | £ 0 | 0 | 0.00 KM |
| Briggs Mead | £ 0 | 0 | 0.00 KM |
| Wisteria Drive | £ 441,667 | 0 | 0.00 KM |
Nearby Transport
| Name | NLC | TLC | Distance |
|---|---|---|---|
| Wymondham | 7383 | WMD | 3.48 KM |
| Spooner Row | 7379 | SPN | 8.32 KM |
Nearby Listings
| Address | Price | Type | Score | Distance |
|---|---|---|---|---|
| Skipping Block Row, Wymondham | £ 230,000 | BUY | 6 / 10 | 0.00 KM |
| Blazey Drive, Wymondham, Norfolk, NR18 | £ 425,000 | BUY | Unknown | 0.14 KM |
| Blazey Drive, Wymondham | £ 300,000 | BUY | 6 / 10 | 0.14 KM |
| Albini Way, Wymondham, NR18 | £ 270,000 | BUY | 7 / 10 | 0.19 KM |
| Norwich Common, Wymondham, Norfolk, NR18 | £ 595,000 | BUY | 7 / 10 | 0.20 KM |
Nearby Properties
| Address | Price | Distance |
|---|---|---|
| 9 Skipping Block Row | £ 231,500 | 0.02 KM |
| 2 Skipping Block Row | £ 153,500 | 0.02 KM |
| 1 Skipping Block Row | £ 246,510 | 0.02 KM |
| 4 Skipping Block Row | £ 138,500 | 0.02 KM |
| 5 Skipping Block Row | £ 170,000 | 0.02 KM |