Golden Park Avenue, Watcombe Park, Torquay, Devon
By Bradleys
£ 315,000
Reviews
3 out of 5 stars
Bradleys says ..
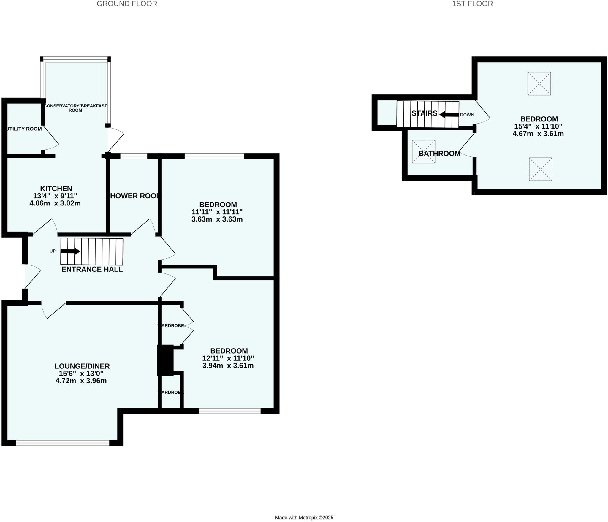
A THREE BEDROOM DORMER STYLE BUNGALOW This well presented three bedroom dormer style bungalow is being offered to the market with no onward chain and viewing comes highly recommended and located in the popular area of Watcombe Park. There are local shops, bus routes and access to the Br...
Property Oracle says ..
The property is located in Watcombe Park, Torquay, Devon. While the provided data doesn’t offer detailed insights into the immediate vicinity’s amenities, the proximity to several schools (Barton Hill Academy, The Burton Academy, and Watcombe Primary School) is a positive factor for families. The presence of railway stations within a reasonable distance (Torre, Torquay, and others) suggests good transport links. More information on local shops and other amenities would be needed for a complete assessment. Based on the provided images, the property appears to be in good condition. The interior is presented in a clean and well-maintained state, with modern fixtures and fittings in the kitchen and bathrooms. There is no visible evidence of significant repairs or renovations needed. The property includes a garden, which is visible in the provided images. While the exact size is not specified (plot size listed as 0.00), it appears to be of a reasonable size for a bungalow of this type, offering outdoor space. The list price of £315,000 is slightly higher than the average price of £284,653 for the area. However, considering the property’s size (1,049.26 sqft), which is slightly larger than the average (1,005 sqft), and its apparent good condition, the price seems relatively reasonable. The average price per sqft in the area is £283.00. A more detailed comparison with similar properties in the immediate vicinity would be beneficial to provide a more precise evaluation. The nearby listings show a range of prices, with some properties being more expensive and others less expensive than the subject property. This suggests that the list price is within the range of market values for the area, although further analysis of comparable properties is needed for a definitive conclusion.
Therefore, we give this property 7 / 10. *Disclaimer: This is our option and does constitute a recommendation or financial advice. Do your own research. *
- Price
- 7
- Condition
- 9
- Location
- 7
- Land
- 7
- Bedrooms
- 3
- Bathrooms
- 2
- Sqft (est)
- 1,049.26
The heatmap indicates the level of crime in the area. The color of the heatmap indicates the crime severity and recency.
Metrics Year-on-Year
- Average area value
- 271,992.00 £Decreased by 13.54 %
- Est sale value
- 295,891.32 £Decreased by 3.42 %
- Average area rental value
- 992.00 £/moDecreased by 5.88 %
- Est letting value
- 1,049.26 £/mo
- Est rental Yield
- 4.38 %Increased by 8.96 %
- Crime Rate
- 4.00 %Unchanged by 0.00 %
Agent Activity
Bradleys created the listing.
Nearby Schools
| Name | Type | Ofsted | Distance |
|---|---|---|---|
| Barton Hill Academy | Academy Sponsor Led | Good | 0.84 KM |
| The Burton Academy | Academy Alternative Provision Sponsor Led | Requires improvement | 1.03 KM |
| Phoenix Bay School | Other Independent Special School | 1.14 KM | |
| Watcombe Children'S Centre | Children's Centre Linked Site | 1.20 KM | |
| Watcombe Primary School | Community School | Good | 1.31 KM |
Images
Nearby Streets
| Name | Average Price | Average Sqft | Distance |
|---|---|---|---|
| Broom Park | £ 650,000 | 0 | 0.00 KM |
| Pengelly Court | £ 0 | 0 | 0.00 KM |
| Rue Orchard Lodge | £ 250,000 | 0 | 0.00 KM |
| Lea Road | £ 300,000 | 0 | 0.00 KM |
| Footland Lane | £ 0 | 0 | 0.00 KM |
Nearby Transport
| Name | NLC | TLC | Distance |
|---|---|---|---|
| Torre | 3432 | TRR | 2.78 KM |
| Torquay | 3434 | TQY | 4.05 KM |
| Newton Abbot | 3426 | NTA | 7.39 KM |
| Paignton | 3427 | PGN | 7.47 KM |
| Teignmouth | 3430 | TGM | 7.57 KM |
Nearby Listings
| Address | Price | Type | Score | Distance |
|---|---|---|---|---|
| Golden Park Avenue, Watcombe Park, Torquay, Devon | £ 315,000 | BUY | 7 / 10 | 0.00 KM |
| Golden Park Avenue, Torquay, TQ2 | £ 260,000 | BUY | 5 / 10 | 0.05 KM |
| Golden Park Avenue, Torquay, TQ2 8LD | £ 340,000 | BUY | 5 / 10 | 0.10 KM |
| Golden Park Avenue, Watcombe Park, Torquay, Devon | £ 260,000 | BUY | Unknown | 0.10 KM |
| Bowerland Avenue, Watcombe Park, Torquay, Devon | £ 285,000 | BUY | 6 / 10 | 0.12 KM |
Nearby Properties
| Address | Price | Distance |
|---|---|---|
| 20 Golden Park Avenue | £ 250,000 | 0.06 KM |
| 27 Golden Park Avenue | £ 229,000 | 0.06 KM |
| 23 Golden Park Avenue | £ 215,000 | 0.06 KM |
| 16 Golden Park Avenue | £ 240,000 | 0.06 KM |
| 19 Golden Park Avenue | £ 230,000 | 0.06 KM |