Swinchiard Walk, Flint, Flintshire, CH6
WI

Swinchiard Walk, Flint, Flintshire, CH6

By William Gleave

£ 180,000

Reviews

3 out of 5 stars

William Gleave says ..

A MUST VIEW | THREE DOUBLE BEDROOMS | BEAUTIFULLY PRESENTED THROUGHOUT Nestled in the sought-after location of Swinchiard Walk, Flint, this stunning three-bedroom terraced property boasts a stylish and well-maintained interior, perfect for modern living. Upon entering, you a...

Property Oracle says ..

Therefore, we give this property 6 / 10. *Disclaimer: This is our option and does constitute a recommendation or financial advice. Do your own research. *

Price
7
Condition
7
Location
7
Land
6
Bedrooms
3
Bathrooms
2
Sqft (est)
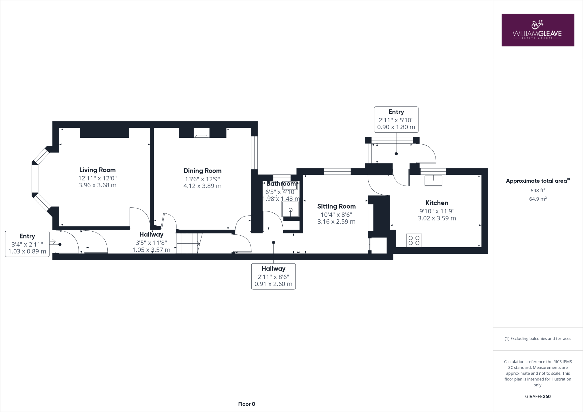
698.58

The heatmap indicates the level of crime in the area. The color of the heatmap indicates the crime severity and recency.

Metrics Year-on-Year

Average area value
267,500.00 £
Decreased by 0.99 %
from 270,182.00 £
Est sale value
179,535.06 £
Increased by 5.33 %
from 170,453.52 £
Average area rental value
1,107.00 £/mo
Decreased by 6.11 %
from 1,179.00 £/mo
Est letting value
698.58 £/mo
Unchanged by 0.00 %
from 698.58 £/mo
Est rental Yield
4.97 %
Decreased by 5.15 %
from 5.24 %
Crime Rate
13.00 %
Unchanged by 0.00 %
from 13.00 %

Agent Activity

  • William Gleave marked this listing as sold.

  • William Gleave created the listing.

Nearby Schools

NameTypeOfstedDistance
Gwynedd C.P. SchoolWelsh Establishment0.45 KM
Flint High SchoolWelsh Establishment0.93 KM
Cornist Park C.P. SchoolWelsh Establishment1.17 KM
St Mary'S R.C. Primary SchoolWelsh Establishment1.22 KM
Ysgol Gymraeg Croes AttiWelsh Establishment1.40 KM

Images

Picture No. 40 Picture No. 09 Picture No. 25 Picture No. 22 Picture No. 23 Picture No. 24 Picture No. 19 Picture No. 18 Picture No. 21 Picture No. 20 Picture No. 11 Picture No. 15 Picture No. 13 Picture No. 03 Picture No. 01 Picture No. 04 Picture No. 17 Picture No. 30 Picture No. 33 Picture No. 34 Picture No. 35 Picture No. 31 Picture No. 27 Picture No. 32 Picture No. 28 Picture No. 29 Picture No. 06 Picture No. 07 Picture No. 10

Nearby Streets

NameAverage PriceAverage SqftDistance
Heol-yr-Eglwys / Church Street £ 000.00 KM
Sydney Street £ 000.00 KM
Holywell Street £ 000.00 KM
Swan Street £ 000.00 KM
Lower Sydney Street £ 000.00 KM

Nearby Transport

NameNLCTLCDistance
Flint2513FLN0.69 KM
Neston2139NES9.73 KM

Nearby Listings

AddressPriceTypeScoreDistance
Swinchiard Walk, Flint, Flintshire, CH6 £ 180,000BUY6 / 100.00 KM
Swinchiard Walk, Flint £ 175,000BUY7 / 100.03 KM
Church Street, Flint, Flintshire, CH6 5AF £ 330,000BUYUnknown0.05 KM
The Meadows, Flint £ 155,000BUY6 / 100.09 KM
Church Street, Flint, Flintshire, CH6 £ 395,000BUY5 / 100.10 KM

Nearby Properties

AddressPriceDistance
34 Swinchiard Walk £ 115,0000.01 KM
12 Swinchiard Walk £ 138,5000.01 KM
18 Swinchiard Walk £ 125,0000.01 KM
10 Swinchiard Walk £ 95,0000.01 KM
32 Swinchiard Walk £ 132,0000.01 KM