Milton Road, Croydon
JA

Milton Road, Croydon

By James Chiltern

£ 300,000

Reviews

3 out of 5 stars

James Chiltern says ..

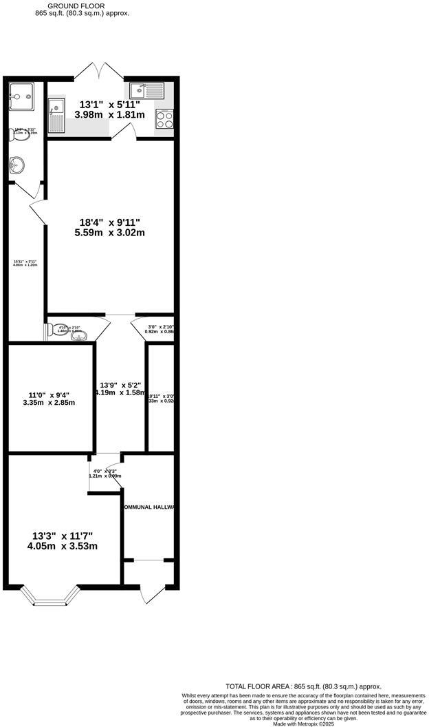
James Chiltern are delighted to present this generously sized ground floor two-bedroom flat, ideally situated in a popular residential area and offered with a share of freehold. The property boasts a large through-lounge offering versatile living and dining space, which flows into a well...

Property Oracle says ..

Therefore, we give this property 6 / 10. *Disclaimer: This is our option and does constitute a recommendation or financial advice. Do your own research. *

Price
6
Condition
6
Location
7
Land
7
Bedrooms
2
Bathrooms
1
Sqft (est)
865.00

The heatmap indicates the level of crime in the area. The color of the heatmap indicates the crime severity and recency.

Metrics Year-on-Year

Average area value
299,286.00 £
Decreased by 12.95 %
from 343,794.00 £
Est sale value
373,680.00 £
Increased by 3.60 %
from 360,705.00 £
Average area rental value
1,709.00 £/mo
Decreased by 4.68 %
from 1,793.00 £/mo
Est letting value
1,730.00 £/mo
Unchanged by 0.00 %
from 1,730.00 £/mo
Est rental Yield
6.85 %
Increased by 9.42 %
from 6.26 %
Crime Rate
6.00 %
Unchanged by 0.00 %
from 6.00 %

Agent Activity

  • James Chiltern created the listing.

Nearby Schools

NameTypeOfstedDistance
Chestnut Park Primary SchoolAcademy Sponsor LedOutstanding0.25 KM
Elmwood Junior SchoolCommunity SchoolGood0.30 KM
Elmwood Infant SchoolCommunity SchoolGood0.30 KM
Harris Invictus Academy CroydonFree SchoolsOutstanding0.57 KM
Ecclesbourne Children'S CentreChildren's Centre Linked Site0.64 KM

Images

WhatsApp Image 2025-07-19 at 7.32.15 PM (1).jpeg WhatsApp Image 2025-07-19 at 7.32.16 PM (3).jpeg WhatsApp Image 2025-07-19 at 7.32.16 PM (4).jpeg WhatsApp Image 2025-07-19 at 7.32.16 PM (2).jpeg WhatsApp Image 2025-07-19 at 7.32.16 PM (1).jpeg WhatsApp Image 2025-07-19 at 7.32.18 PM (1).jpeg WhatsApp Image 2025-07-19 at 7.32.18 PM.jpeg WhatsApp Image 2025-07-19 at 7.32.17 PM.jpeg WhatsApp Image 2025-07-19 at 7.32.18 PM (2).jpeg WhatsApp Image 2025-07-19 at 7.32.16 PM (6).jpeg WhatsApp Image 2025-07-19 at 7.32.16 PM (7).jpeg WhatsApp Image 2025-07-19 at 7.32.15 PM.jpeg WhatsApp Image 2025-07-19 at 7.32.16 PM (5).jpeg

Nearby Streets

NameAverage PriceAverage SqftDistance
Hartley Road £ 275,00000.00 KM
Greenwood Road £ 000.00 KM
Elmwood Road £ 355,00000.00 KM
Lodge Road £ 000.00 KM
Stanton Road £ 000.00 KM

Nearby Transport

NameNLCTLCDistance
West Croydon5411WCY0.78 KM
Thornton Heath5388TTH1.53 KM
East Croydon5355ECR1.60 KM
Selhurst5434SRS1.81 KM
Waddon5392WDO2.53 KM

Nearby Listings

AddressPriceTypeScoreDistance
Hartley Road, Croydon £ 300,000BUY6 / 100.00 KM
Hartley Road, Croydon, CR0 £ 270,000BUY6 / 100.02 KM
Hartley Road, Croydon, CR0 £ 500,000BUYUnknown0.04 KM
Hartley Road, Croydon £ 475,000BUY6 / 100.06 KM
Windmill Road, Croydon, CR0 £ 280,000BUY6 / 100.08 KM

Nearby Properties

AddressPriceDistance
7 Hartley Road £ 233,0000.04 KM
49b Hartley Road £ 74,0000.04 KM
57 Hartley Road £ 302,0000.04 KM
59 Hartley Road £ 62,0000.04 KM
15 Hartley Road £ 246,0000.04 KM