Manor Road, Stechford, Birmingham, West Midlands, B33
YO

Manor Road, Stechford, Birmingham, West Midlands, B33

By YOUR MOVE Murray Rogers

£ 240,000

Reviews

2 out of 5 stars

YOUR MOVE Murray Rogers says ..

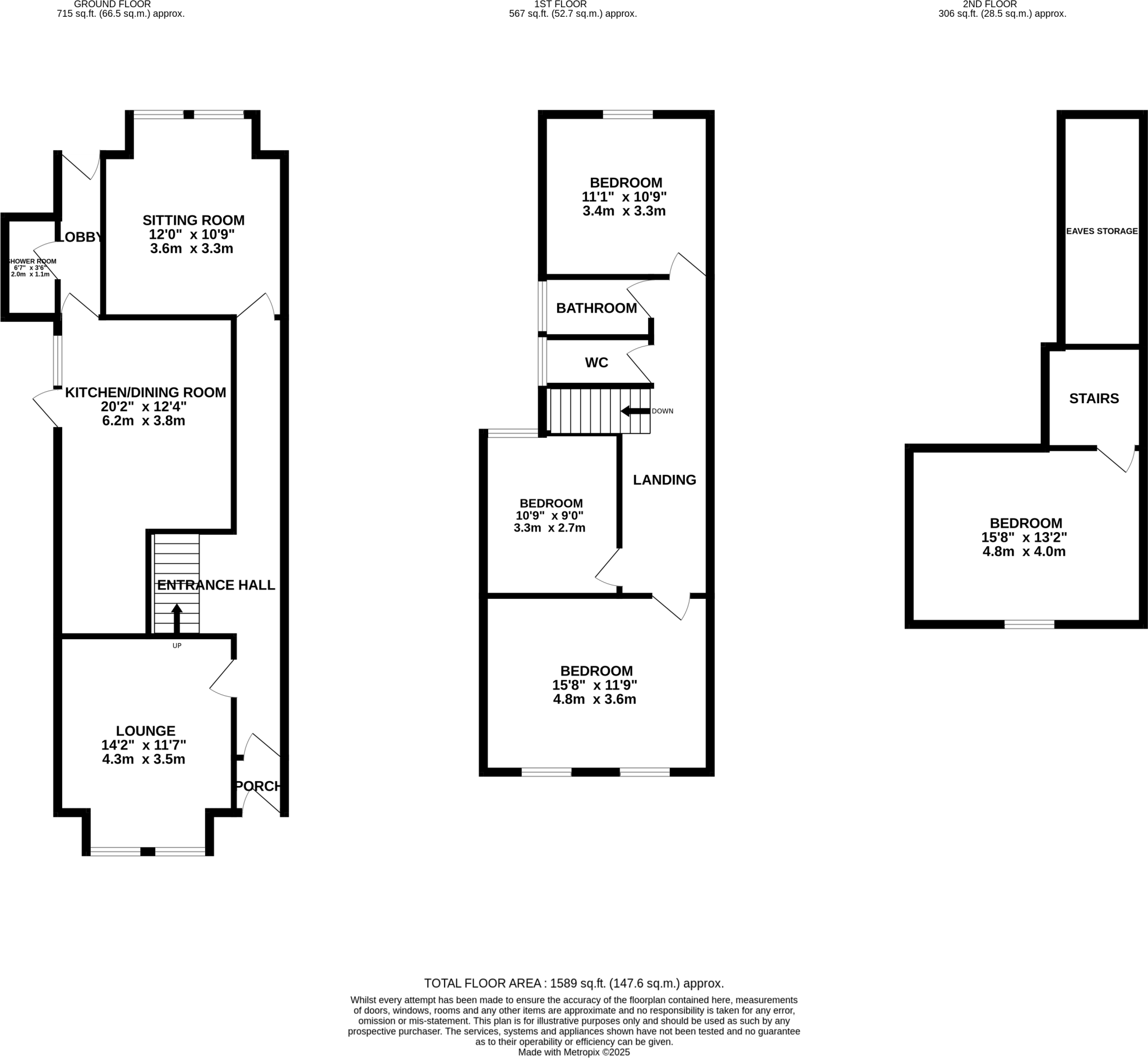
Ideal for a large A generous size FOUR bedroom semi detached in need of some modernisation. The property is well laid out with TWO reception rooms, good sized dining kitchen, ground floor wet room on the ground floor. The first floor consists of three bedrooms, WC and a family bathroo...

Property Oracle says ..

This property is a four-bedroom semi-detached house located on Manor Road in Stechford, Birmingham. The property is in need of significant renovation, as evidenced by the numerous images showing damaged walls, ceilings, and flooring. The kitchen and bathrooms are also outdated and require modernisation. While the property has a garden, it is currently overgrown and unkempt. The location is convenient, with nearby schools and transportation links. However, the condition of the property significantly impacts its overall value. The list price of £240,000 is higher than the average price for the area (£170,811), and given the extensive renovations needed, it may not represent good value for money. Further investigation into comparable properties in similar conditions would be beneficial to determine a more accurate valuation.

Therefore, we give this property 4 / 10. *Disclaimer: This is our option and does constitute a recommendation or financial advice. Do your own research. *

Price
4
Condition
3
Location
7
Land
4
Bedrooms
4
Bathrooms
2
Sqft (est)
1,589.00

The heatmap indicates the level of crime in the area. The color of the heatmap indicates the crime severity and recency.

Metrics Year-on-Year

Average area value
210,398.00 £
Decreased by 9.64 %
from 232,840.00 £
Est sale value
398,839.00 £
Increased by 22.44 %
from 325,745.00 £
Average area rental value
1,204.00 £/mo
Increased by 43.33 %
from 840.00 £/mo
Est letting value
1,589.00 £/mo
from 0.00 £/mo
Est rental Yield
6.87 %
Increased by 58.66 %
from 4.33 %
Crime Rate
6.00 %
Unchanged by 0.00 %
from 6.00 %

Agent Activity

  • YOUR MOVE Murray Rogers created the listing.

Nearby Schools

NameTypeOfstedDistance
The Oval SchoolAcademy ConverterGood0.78 KM
Audley Primary SchoolAcademy ConverterRequires improvement0.97 KM
Colebourne Primary SchoolCommunity SchoolGood1.19 KM
Corpus Christi Catholic Primary SchoolVoluntary Aided SchoolGood1.20 KM
Beaufort SchoolCommunity Special SchoolOutstanding1.25 KM

Images

Picture No. 01 Picture No. 02 Picture No. 04 Picture No. 15 Picture No. 14 Picture No. 09 Picture No. 07 Picture No. 11 Picture No. 12 Picture No. 08 Picture No. 10 Picture No. 13 Picture No. 20 Picture No. 18 Picture No. 19 Picture No. 22 Picture No. 26 Picture No. 27 Picture No. 24 Picture No. 25 Picture No. 32 Picture No. 29 Picture No. 30 Picture No. 28 Picture No. 16

Nearby Streets

NameAverage PriceAverage SqftDistance
Flaxley Close £ 110,00000.00 KM
Avocet Close £ 122,50000.00 KM
Rosemary Road £ 147,50000.00 KM
Cuckoo Close £ 000.00 KM
Shaw Drive £ 210,00000.00 KM

Nearby Transport

NameNLCTLCDistance
Stechford1043SCF0.99 KM
Lea Hall1133LEH1.82 KM
Acocks Green4529ACG4.25 KM
Olton4533OLT5.03 KM
Tyseley4518TYS5.24 KM

Nearby Listings

AddressPriceTypeScoreDistance
Manor Road, Stechford, Birmingham, West Midlands, B33 £ 240,000BUY5 / 100.00 KM
Manor Road, Stechford, Birmingham, West Midlands, B33 £ 240,000BUY4 / 100.00 KM
Manor Road, Stechford, Birmingham, West Midlands, B33 £ 280,000BUYUnknown0.07 KM
Manor Road, Stechford, Birmingham, B33 £ 270,000BUY7 / 100.10 KM
Manor Road, Stechford, Birmingham £ 280,000BUY7 / 100.11 KM

Nearby Properties

AddressPriceDistance
34 Bagshaw Road £ 68,0000.07 KM
11 Bagshaw Road £ 148,0000.07 KM
32 Bagshaw Road £ 112,5000.07 KM
9 Bagshaw Road £ 116,0000.07 KM
107 Manor Road £ 145,0000.11 KM