Shafto Terrace, Washington, Tyne and Wear, NE37
By YOUR MOVE Chris Stonock
£ 75,000
Reviews
2 out of 5 stars
YOUR MOVE Chris Stonock says ..
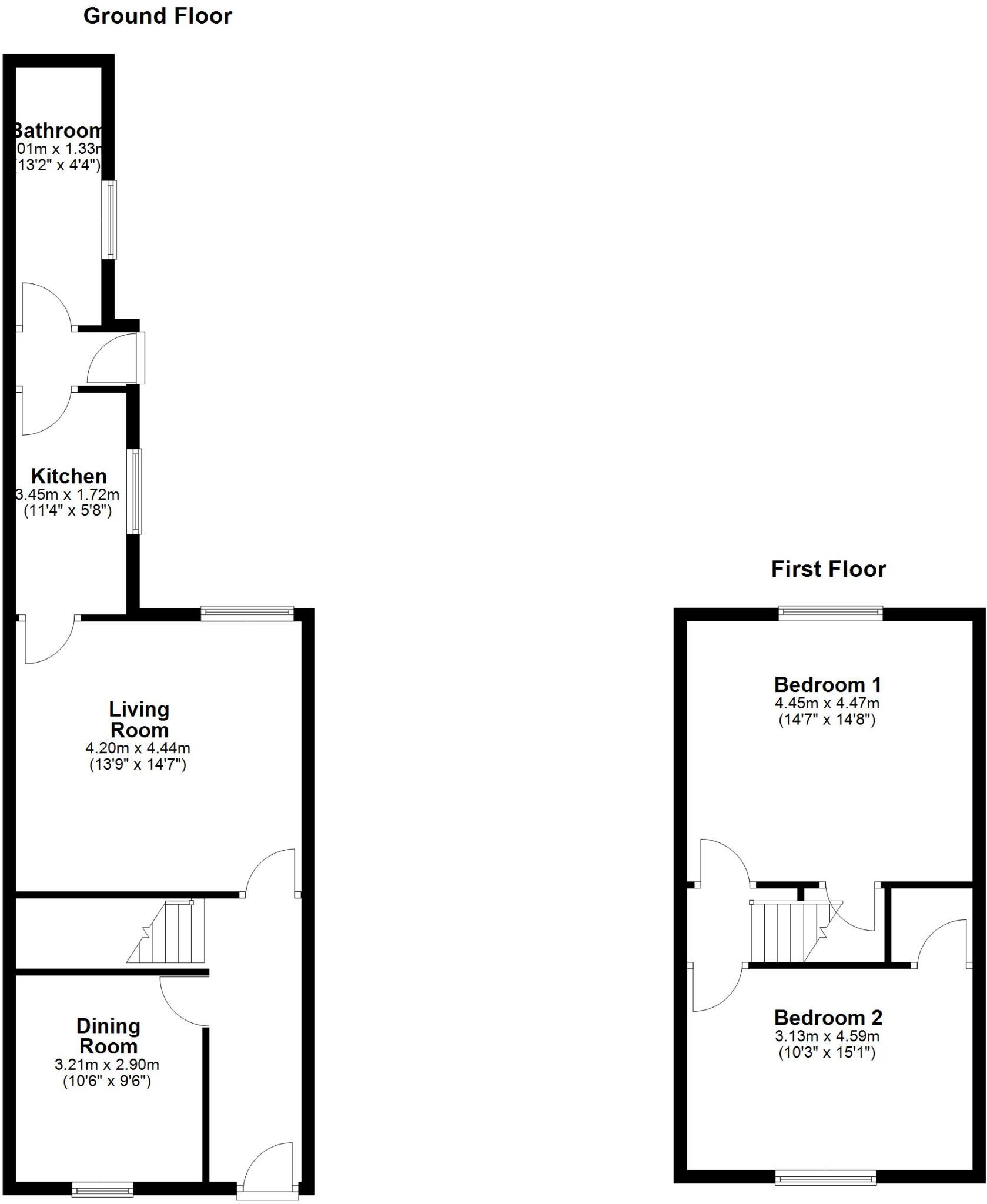
We welcome to the market this spacious two-bedroom semi-detached home, offered with no onward chain. Ideally situated within easy walking distance of local shops, amenities, and excellent transport links.
Property Oracle says ..
This two-bedroom semi-detached property in Washington North, Sunderland, presents a compelling opportunity for buyers willing to undertake renovation work. While the property requires updating, its attractive list price of £75,000, well below the local average, makes it an appealing investment. The location offers reasonable access to schools and transport links, enhancing its desirability. The property’s compact size and need for modernization are balanced by its potential for increased value through refurbishment.
Therefore, we give this property 5 / 10. *Disclaimer: This is our option and does constitute a recommendation or financial advice. Do your own research. *
- Price
- 8
- Condition
- 4
- Location
- 6
- Land
- 3
- Bedrooms
- 2
- Bathrooms
- 1
- Sqft (est)
- 209.36
The heatmap indicates the level of crime in the area. The color of the heatmap indicates the crime severity and recency.
Metrics Year-on-Year
- Average area value
- 122,035.00 £Decreased by 20.38 %
- Est sale value
- 36,638.00 £Decreased by 3.85 %
- Average area rental value
- 631.00 £/moDecreased by 15.30 %
- Est letting value
- 0.00 £/mo
- Est rental Yield
- 6.20 %Increased by 6.35 %
- Crime Rate
- 0.00 %
Agent Activity
YOUR MOVE Chris Stonock created the listing.
Nearby Schools
| Name | Type | Ofsted | Distance |
|---|---|---|---|
| Washington Academy | Academy Converter | Requires improvement | 0.18 KM |
| Sunderland Children'S Centre Washington | Children's Centre | 0.68 KM | |
| St Joseph'S Catholic Primary School | Academy Converter | 0.77 KM | |
| Usworth Colliery Nursery School | Local Authority Nursery School | Good | 0.93 KM |
| Usworth Colliery Primary School | Community School | Good | 0.93 KM |
Images
Nearby Streets
| Name | Average Price | Average Sqft | Distance |
|---|---|---|---|
| Western Terrace | £ 0 | 0 | 0.00 KM |
| Sunflower Court | £ 0 | 0 | 0.00 KM |
| Manor Park | £ 145,000 | 0 | 0.00 KM |
| Vernon Street | £ 0 | 0 | 0.00 KM |
| Park Avenue | £ 75,000 | 0 | 0.00 KM |
Nearby Transport
| Name | NLC | TLC | Distance |
|---|---|---|---|
| Heworth | 7766 | HEW | 6.05 KM |
| Chester-Le-Street | 7736 | CLS | 8.83 KM |
Nearby Listings
| Address | Price | Type | Score | Distance |
|---|---|---|---|---|
| Shafto Terrace, Washington, Tyne and Wear, NE37 | £ 75,000 | BUY | 5 / 10 | 0.00 KM |
| 46 Shafto Terrace, Washington, Tyne and Wear NE37 2DX | £ 65,000 | BUY | 5 / 10 | 0.01 KM |
| Beverley Court, Washington, Tyne And Wear, NE37 | £ 115,000 | BUY | 6 / 10 | 0.08 KM |
| Wessington Terrace, Concord, Washington | £ 94,950 | BUY | 6 / 10 | 0.09 KM |
| Beverley Court, Washington, Tyne And Wear, NE37 | £ 115,000 | BUY | 5 / 10 | 0.10 KM |
Nearby Properties
| Address | Price | Distance |
|---|---|---|
| 2 Wessington Terrace | £ 72,000 | 0.08 KM |
| 13 Wessington Terrace | £ 115,000 | 0.08 KM |
| 47 Beverley Court | £ 46,000 | 0.16 KM |
| 46 Beverley Court | £ 31,595 | 0.16 KM |
| 42 Beverley Court | £ 68,500 | 0.16 KM |