Forest Avenue, Forest Hall, North Tyneside
By Sanderson Young
£ 585,000
Reviews
3 out of 5 stars
Sanderson Young says ..
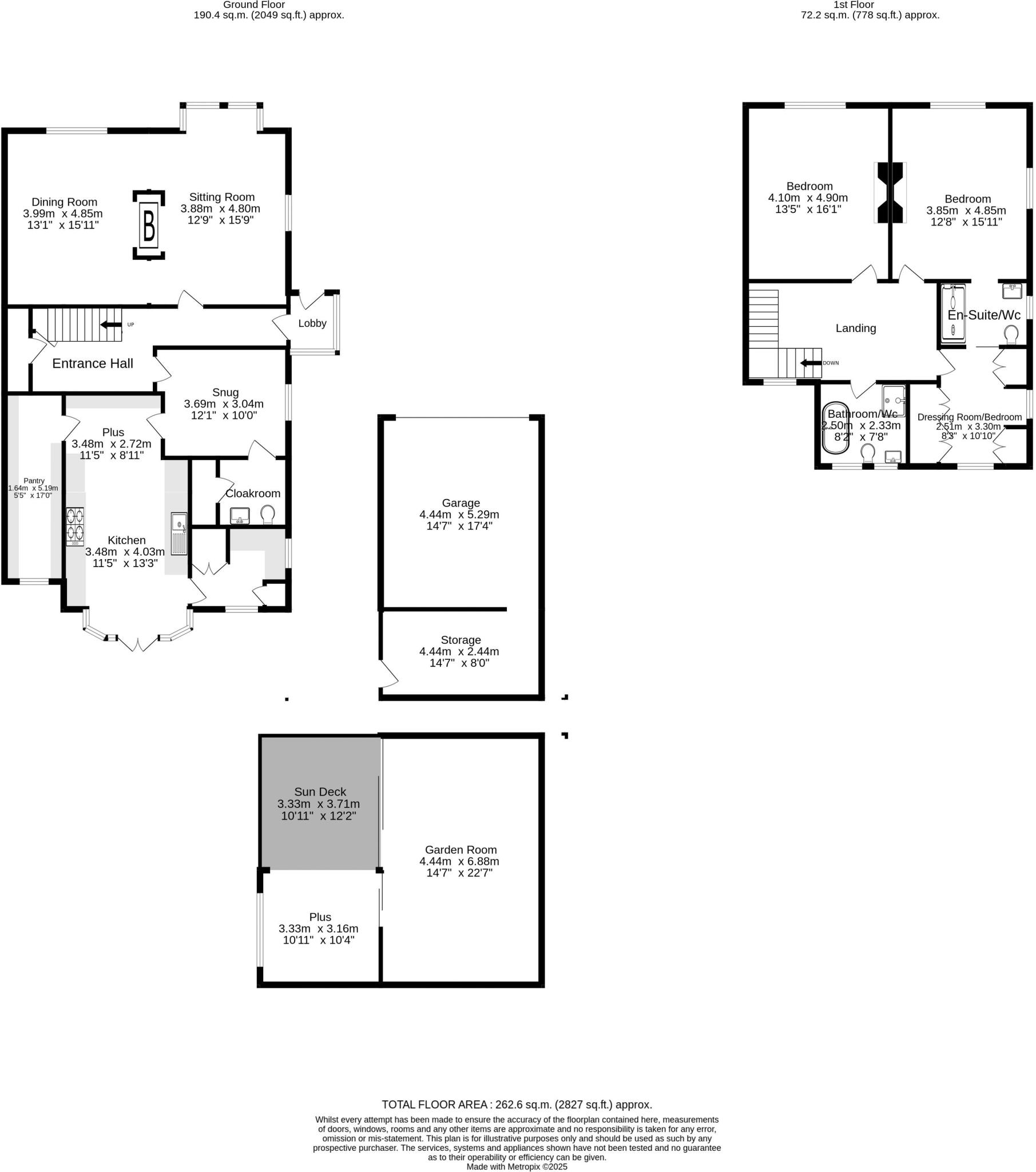
Stunning Period Semi Detached Family Home Boasting Three Reception Rooms, Generous Kitchen, Three Bedrooms, Two Bathrooms, Detached Double Garage, Separate Garden Room & Occupying a Substantial Plot! The property enjoys a prime position on the beautiful tree lined street of Forest Avenue, Fore...
Property Oracle says ..
This is a three-bedroom semi-detached property located on Forest Avenue, Forest Hall, North Tyneside. The property is listed with Sanderson Young for £585,000. It features two bathrooms, a well-maintained garden with a summer house, and off-street parking with a garage. Nearby schools include Forest Hall Primary School and Ivy Road Primary School, both with ‘Good’ Ofsted ratings. The property is located over 7km from the nearest train station. While generally in good condition, some of the interior decor may benefit from updating. The price seems reasonable for the area and property type, although a precise comparison is difficult without the square footage.
Therefore, we give this property 7 / 10. *Disclaimer: This is our option and does constitute a recommendation or financial advice. Do your own research. *
- Price
- 6
- Condition
- 7
- Location
- 7
- Land
- 8
- Bedrooms
- 3
- Bathrooms
- 2
The heatmap indicates the level of crime in the area. The color of the heatmap indicates the crime severity and recency.
Metrics Year-on-Year
- Average area value
- 911,990.00 £Increased by 52.54 %
- Average area rental value
- 1,200.00 £/moDecreased by 18.81 %
- Est rental Yield
- 1.58 %Decreased by 46.80 %
- Crime Rate
- 3.00 %Unchanged by 0.00 %
Agent Activity
Sanderson Young created the listing.
Nearby Schools
| Name | Type | Ofsted | Distance |
|---|---|---|---|
| Forest Hall Primary School | Foundation School | Good | 0.63 KM |
| Ivy Road Primary School | Foundation School | Good | 0.69 KM |
| Percy Hedley Hedleys College | Special Post 16 Institution | Good | 0.72 KM |
| Percy Hedley School | Non-maintained Special School | Outstanding | 1.18 KM |
| Benton Dene School | Foundation Special School | Good | 1.18 KM |
Images
Nearby Streets
| Name | Average Price | Average Sqft | Distance |
|---|---|---|---|
| Croft Avenue | £ 0 | 0 | 0.00 KM |
| Springfield Park | £ 0 | 0 | 0.00 KM |
| Delaval Court | £ 0 | 0 | 0.00 KM |
| Ivy Road | £ 150,000 | 0 | 0.00 KM |
| Highfield Avenue | £ 0 | 0 | 0.00 KM |
Nearby Transport
| Name | NLC | TLC | Distance |
|---|---|---|---|
| Manors | 7603 | MAS | 7.04 KM |
| Heworth | 7766 | HEW | 7.65 KM |
| Newcastle | 7728 | NCL | 8.36 KM |
| Cramlington | 7579 | CRM | 8.54 KM |
Nearby Listings
| Address | Price | Type | Score | Distance |
|---|---|---|---|---|
| Forest Avenue, Forest Hall, North Tyneside | £ 585,000 | BUY | 7 / 10 | 0.00 KM |
| Forest Avenue, Forest Hall, Newcastle upon Tyne | £ 695,000 | BUY | 8 / 10 | 0.03 KM |
| Forest Avenue, Forest Hall, NE12 | £ 550,000 | BUY | 7 / 10 | 0.12 KM |
| West Croft Road, Forest Hall, NE12 | £ 450,000 | BUY | 8 / 10 | 0.14 KM |
| Park Drive, Forest Hall, Newcastle upon Tyne | £ 150,000 | BUY | Unknown | 0.21 KM |
Nearby Properties
| Address | Price | Distance |
|---|---|---|
| 6 Forest Avenue | £ 328,000 | 0.01 KM |
| 32 Forest Avenue | £ 207,500 | 0.01 KM |
| 28 Forest Avenue | £ 195,000 | 0.01 KM |
| 42 Forest Avenue | £ 220,000 | 0.01 KM |
| 9 Forest Avenue | £ 560,000 | 0.01 KM |