Peter Clarke & Co says ..
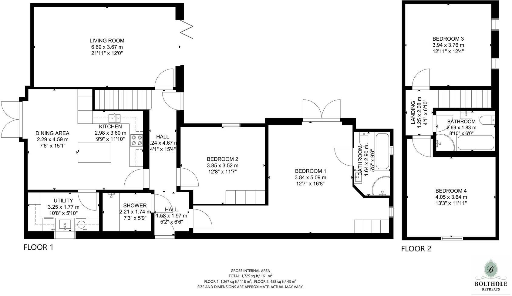
Beautifully presented 4 bedroom house, with driveway parking. The accommodation comprises; shower room, breakfast kitchen, utility room, living room, two double bedrooms with en-suite bathroom and two further first floor double bedrooms with a family bathroom. Enclosed rear garden and countrysi...
Property Oracle says ..
This is a well-presented, modern property in a desirable Cotswold village. The property has four bedrooms, two bathrooms, a good-sized garden, and is in excellent condition. While the price is above average for the area, the property’s condition and location justify the premium.
Therefore, we give this property 7 / 10. *Disclaimer: This is our option and does constitute a recommendation or financial advice. Do your own research. *
- Price
- 6
- Condition
- 9
- Location
- 7
- Land
- 7
- Bedrooms
- 4
- Bathrooms
- 2
- Sqft (est)
- 1,447.85
The heatmap indicates the level of crime in the area. The color of the heatmap indicates the crime severity and recency.
Metrics Year-on-Year
- Average area value
- 241,538.00 £Decreased by 4.18 %
- Est sale value
- 401,054.45 £Increased by 2.97 %
- Average area rental value
- 846.00 £/moIncreased by 4.19 %
- Est letting value
- 0.00 £/mo
- Est rental Yield
- 4.20 %Increased by 8.53 %
- Crime Rate
- 20.00 %Unchanged by 0.00 %
Agent Activity
Peter Clarke & Co created the listing.
Nearby Schools
| Name | Type | Ofsted | Distance |
|---|---|---|---|
| Chipping Campden School | Academy Converter | Outstanding | 4.83 KM |
| St James And Ebrington Church Of England Primary School | Voluntary Aided School | Requires improvement | 5.41 KM |
| Ilmington Cofe Primary School | Voluntary Controlled School | Outstanding | 5.48 KM |
| Mickleton Primary School | Community School | Good | 5.57 KM |
| St Catharine'S Catholic Primary School | Voluntary Aided School | Good | 5.79 KM |
Images
Nearby Streets
| Name | Average Price | Average Sqft | Distance |
|---|---|---|---|
| Keytes Acre | £ 0 | 0 | 0.00 KM |
| Saxon Fields | £ 0 | 0 | 0.00 KM |
Nearby Transport
| Name | NLC | TLC | Distance |
|---|---|---|---|
| Moreton-In-Marsh | 4814 | MIM | 8.10 KM |
Nearby Listings
| Address | Price | Type | Score | Distance |
|---|---|---|---|---|
| May Lane, Ebrington | £ 775,000 | BUY | 7 / 10 | 0.00 KM |
| Victoria Terrace, May Lane, Ebrington, GL55 | £ 575,000 | BUY | 6 / 10 | 0.03 KM |
| May Lane, Ebrington | £ 595,000 | BUY | 7 / 10 | 0.08 KM |
| Pages Piece, Ebrington | £ 845,000 | BUY | 7 / 10 | 0.09 KM |
| Pages Piece, Ebrington | £ 495,000 | BUY | Unknown | 0.13 KM |
Nearby Properties
| Address | Price | Distance |
|---|---|---|
| 46 Church Steps | £ 487,500 | 0.08 KM |
| Troy House | £ 810,000 | 0.18 KM |
| 2 May Lane | £ 740,000 | 0.18 KM |
| 5 Keyts Acre | £ 425,000 | 0.20 KM |
| 4 Keyts Acre | £ 606,000 | 0.20 KM |