Lot 3, Sharplaw Road, Jedburgh, Scottish Borders, TD8
By Paton & Co
£ 110,000
Reviews
2 out of 5 stars
Paton & Co says ..
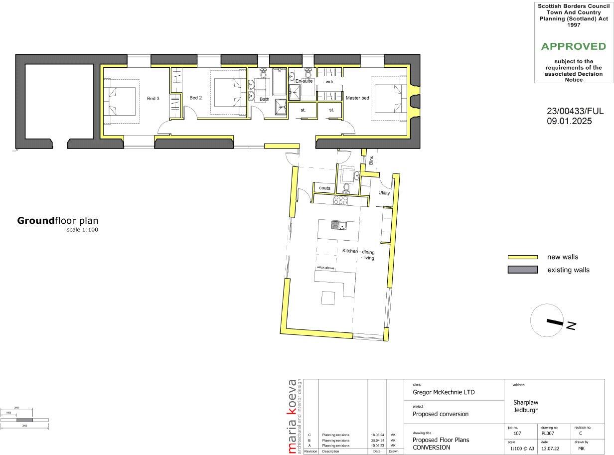
A charming single-storey barn with full planning permission for conversion and extension into a well-proportioned 3-bedroom home. The approved layout includes a spacious open-plan living area, principal bedroom with en suite, two further bedrooms, family bathroom, and utility room. With private g...
Property Oracle says ..
This is a plot of land with existing stone buildings requiring significant renovation. Located near Jedburgh in the Scottish Borders, it offers a rural setting. The asking price appears reasonable, but potential buyers should carefully consider the costs associated with renovating or rebuilding on the plot. The location provides a balance of rural tranquility and accessibility to local amenities.
Therefore, we give this property 5 / 10. *Disclaimer: This is our option and does constitute a recommendation or financial advice. Do your own research. *
- Price
- 7
- Condition
- 3
- Location
- 6
- Land
- 7
- Bedrooms
- 0
- Bathrooms
- 0
The heatmap indicates the level of crime in the area. The color of the heatmap indicates the crime severity and recency.
Metrics Year-on-Year
- Average area value
- 376,133.00 £Increased by 50.19 %
- Average area rental value
- 1,250.00 £/moIncreased by 20.42 %
- Est rental Yield
- 3.99 %Decreased by 19.72 %
- Crime Rate
- 0.00 %
Agent Activity
Paton & Co created the listing.
Images
Nearby Streets
| Name | Average Price | Average Sqft | Distance |
|---|---|---|---|
| Jedbank Drive | £ 0 | 0 | 0.00 KM |
| Bongate Gardens | £ 80,000 | 0 | 0.00 KM |
| Bongate View | £ 0 | 0 | 0.00 KM |
| Forthill Avenue | £ 0 | 0 | 0.00 KM |
| Hartrigge Road | £ 0 | 0 | 0.00 KM |
Nearby Listings
| Address | Price | Type | Score | Distance |
|---|---|---|---|---|
| Lot 3, Sharplaw Road, Jedburgh, Scottish Borders, TD8 | £ 110,000 | BUY | 5 / 10 | 0.00 KM |
| Sharplaw Development Site, Sharplaw Road, Jedburgh, Scottish Borders, TD8 | £ 470,000 | BUY | Unknown | 0.03 KM |
| Lot 1, Sharplaw Road, Jedburgh, Scottish Borders, TD8 | £ 240,000 | BUY | Unknown | 0.03 KM |
| Lot 2, Sharplaw Road, Jedburgh, Scottish Borders, TD8 | £ 120,000 | BUY | Unknown | 0.07 KM |
| Birkhill, Sharplaw Road, Jedburgh, Scottish Borders | £ 649,000 | BUY | Unknown | 0.54 KM |