Rendells says ..
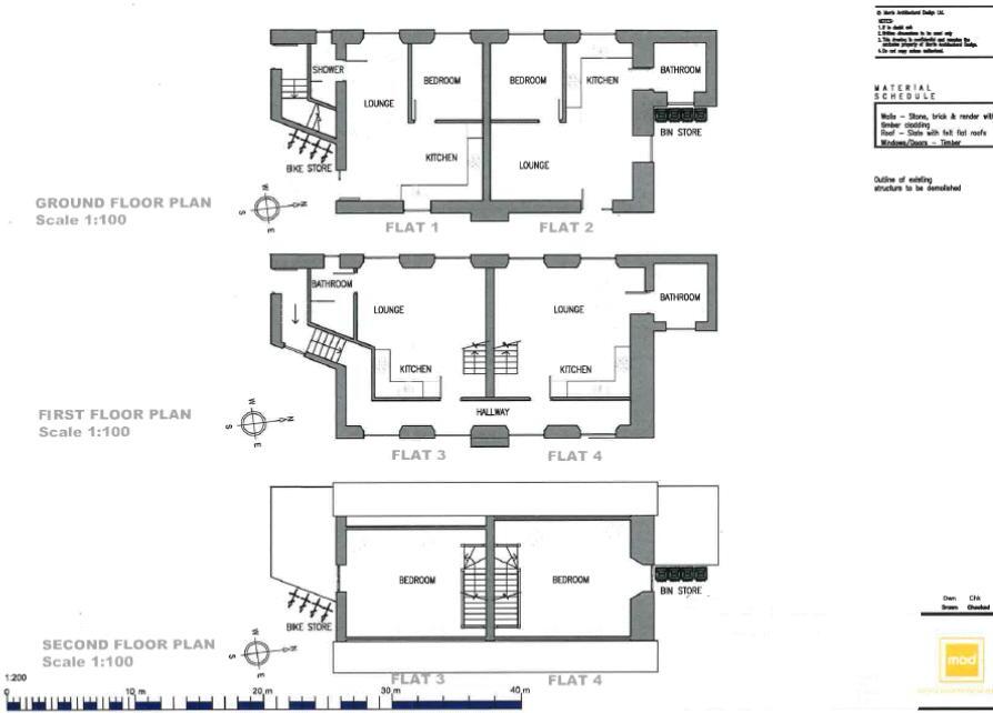
A substantial detached character building situated in the town centre and which was formerly used a as local parish meeting rooms. The building now has full planning consent to convert into four one bedroom flats, two of of which offer mezzanine levels. The property is offered with full vacant po...
Property Oracle says ..
The property is a two-bedroom property located in Newton Abbot, Devon. The property is in poor condition and requires complete renovation. The property has a garden. The property is located 0.87KM from Newton Abbot train station and has a number of schools located within 1km.
Therefore, we give this property 5 / 10. *Disclaimer: This is our option and does constitute a recommendation or financial advice. Do your own research. *
- Price
- 8
- Condition
- 1
- Location
- 6
- Land
- 6
- Bedrooms
- 2
- Bathrooms
- 1
The heatmap indicates the level of crime in the area. The color of the heatmap indicates the crime severity and recency.
Metrics Year-on-Year
- Average area value
- 365,000.00 £Increased by 34.08 %
- Average area rental value
- 850.00 £/moIncreased by 5.20 %
- Est rental Yield
- 2.79 %Decreased by 21.63 %
- Crime Rate
- 24.00 %Unchanged by 0.00 %
Agent Activity
Rendells created the listing.
Nearby Schools
| Name | Type | Ofsted | Distance |
|---|---|---|---|
| Bearnes Voluntary Primary School | Academy Converter | Good | 0.25 KM |
| Wolborough Church Of England (Aided) Nursery And Primary School | Voluntary Aided School | Good | 0.28 KM |
| South Devon Utc | University Technical College | Good | 0.53 KM |
| All Saints Marsh Cofe Academy | Academy Converter | Good | 0.61 KM |
| Newton Abbot College | Academy Converter | Good | 0.97 KM |
Images
Nearby Streets
| Name | Average Price | Average Sqft | Distance |
|---|---|---|---|
| Cricket Field Road | £ 0 | 0 | 0.00 KM |
| Alexandra Road | £ 0 | 0 | 0.00 KM |
| Baker's Hill | £ 280,000 | 0 | 0.00 KM |
| Osborne Street | £ 200,000 | 0 | 0.00 KM |
| Bank Street | £ 0 | 0 | 0.00 KM |
Nearby Transport
| Name | NLC | TLC | Distance |
|---|---|---|---|
| Newton Abbot | 3426 | NTA | 0.87 KM |
| Torre | 3432 | TRR | 9.13 KM |
Nearby Listings
| Address | Price | Type | Score | Distance |
|---|---|---|---|---|
| Newton Abbot | £ 170,000 | BUY | 5 / 10 | 0.00 KM |
| East Street, Newton Abbot, TQ12 2LD | £ 90,000 | BUY | Unknown | 0.06 KM |
| East Street, Newton Abbot, TQ12 2LD | £ 125,000 | BUY | Unknown | 0.06 KM |
| King Street, Newton Abbot, Devon, TQ12 | £ 180,000 | BUY | 6 / 10 | 0.07 KM |
| King Street, Newton Abbot, Devon, TQ12 | £ 130,000 | BUY | 6 / 10 | 0.07 KM |
Nearby Properties
| Address | Price | Distance |
|---|---|---|
| 121 East Street | £ 142,000 | 0.06 KM |
| 125 East Street | £ 153,000 | 0.06 KM |
| 127 East Street | £ 88,000 | 0.06 KM |
| 125a East Street | £ 101,500 | 0.06 KM |
| 119 East Street | £ 24,000 | 0.06 KM |