Tenniswood Road, Enfield
By Barnfields Estate Agents
£ 650,000
Reviews
3 out of 5 stars
Barnfields Estate Agents says ..
Well-presented four bedroom 1930s semi-detached family house situated in this quiet residential location on the ever popular Willow Estate within close proximity of good schools and local shops and within easy access of Enfield Town shopping facilities and rail station (Liverpool Street Line).
Property Oracle says ..
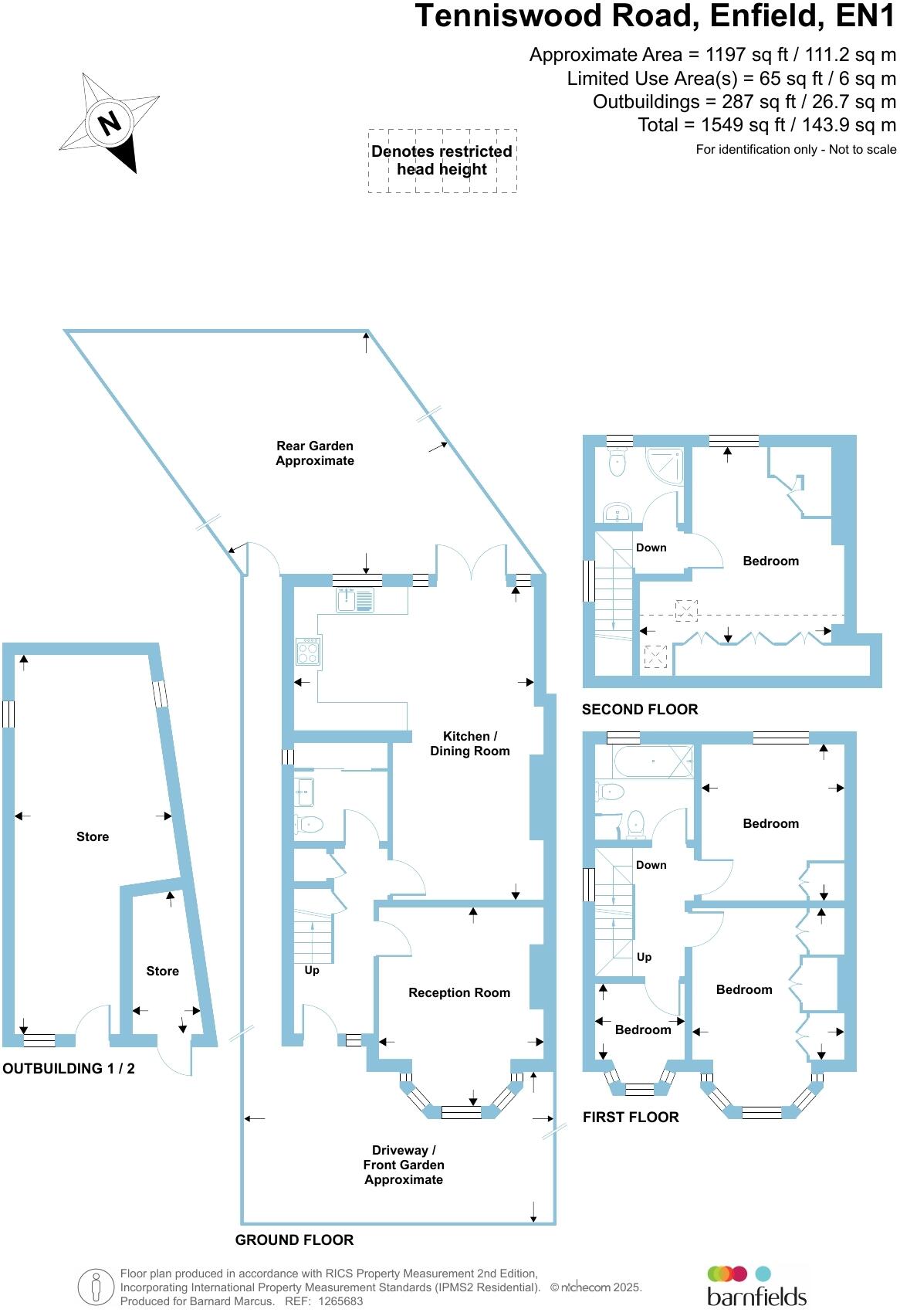
The property located at Tenniswood Road, Enfield, EN1 3LX is a four-bedroom semi-detached house with two bathrooms, listed at £650,000. The property has a plot size of 1,197 sqft and an internal area of 725 sqft.
The property appears to be in good condition, with a well-maintained interior and exterior. The kitchen and bathrooms look recently updated or well-maintained. The garden is of a reasonable size.
The location is in Enfield, Greater London, which benefits from good transport links via the London Overground and Govia Thameslink Railway, with several stations within a reasonable distance. There are also several well-regarded schools nearby, including St Andrew’s Cofe Primary School and George Spicer Primary School, both rated as ‘Good’ by Ofsted.
Considering the average house price in the area is £417,357 and the average price per sqft is £446, the asking price of £650,000 for this property seems slightly high, especially given its relatively small size of 725 sqft. However, the property’s good condition, the inclusion of a garden, and its location in a desirable area of Enfield could justify a higher price than the average. Nearby comparable properties support this, with several semi-detached houses on Tenniswood Road selling for prices ranging from £456,000 to £700,000.
Therefore, we give this property 7 / 10. *Disclaimer: This is our option and does constitute a recommendation or financial advice. Do your own research. *
- Price
- 6
- Condition
- 8
- Location
- 8
- Land
- 7
- Bedrooms
- 4
- Bathrooms
- 2
- Sqft (est)
- 725.00
- Lot (est)
- 1,197.00
The heatmap indicates the level of crime in the area. The color of the heatmap indicates the crime severity and recency.
Metrics Year-on-Year
- Average area value
- 371,130.00 £Increased by 2.62 %
- Est sale value
- 310,300.00 £Increased by 32.10 %
- Average area rental value
- 1,597.00 £/moIncreased by 9.08 %
- Est letting value
- 725.00 £/moUnchanged by 0.00 %
- Est rental Yield
- 5.16 %Increased by 6.17 %
- Crime Rate
- 2.00 %Unchanged by 0.00 %
Agent Activity
Barnfields Estate Agents created the listing.
Nearby Schools
| Name | Type | Ofsted | Distance |
|---|---|---|---|
| Chace Community School | Community School | Requires improvement | 0.82 KM |
| St Andrew'S Cofe Primary School | Voluntary Aided School | Good | 0.92 KM |
| George Spicer Primary School | Community School | Good | 0.99 KM |
| Worcesters Primary School | Academy Converter | 1.00 KM | |
| Lavender Primary School | Academy Converter | Good | 1.15 KM |
Images
Nearby Streets
| Name | Average Price | Average Sqft | Distance |
|---|---|---|---|
| Adelaide Close | £ 0 | 0 | 0.00 KM |
| Holbrook Close | £ 0 | 0 | 0.00 KM |
| Mafeking Road | £ 500,000 | 0 | 0.00 KM |
| Pemberton Court | £ 340,000 | 0 | 0.00 KM |
| Clydach Road | £ 0 | 0 | 0.00 KM |
Nearby Transport
| Name | NLC | TLC | Distance |
|---|---|---|---|
| Enfield Town | 6959 | ENF | 1.44 KM |
| Bush Hill Park | 6913 | BHK | 2.07 KM |
| Southbury | 6947 | SBU | 2.24 KM |
| Enfield Chase | 6010 | ENC | 2.50 KM |
| Turkey Street | 6952 | TUR | 2.80 KM |
Nearby Listings
| Address | Price | Type | Score | Distance |
|---|---|---|---|---|
| Tenniswood Road, Enfield | £ 650,000 | BUY | 7 / 10 | 0.00 KM |
| Tenniswood Road, Enfield | £ 600,000 | BUY | 7 / 10 | 0.03 KM |
| Carisbrook Close, Enfield, EN1 | £ 585,000 | BUY | Unknown | 0.10 KM |
| Carisbrook Close, Enfield | £ 475,000 | BUY | 7 / 10 | 0.14 KM |
| Carisbrook Close, Enfield | £ 550,000 | BUY | 6 / 10 | 0.17 KM |
Nearby Properties
| Address | Price | Distance |
|---|---|---|
| 197 Tenniswood Road | £ 482,500 | 0.00 KM |
| 185 Tenniswood Road | £ 456,000 | 0.00 KM |
| 177 Tenniswood Road | £ 284,000 | 0.00 KM |
| 141 Tenniswood Road | £ 560,000 | 0.00 KM |
| 193 Tenniswood Road | £ 567,500 | 0.00 KM |