Bramblebury Road, Plumstead, SE18
By Robinson Jackson
£ 525,000
Reviews
3 out of 5 stars
Robinson Jackson says ..
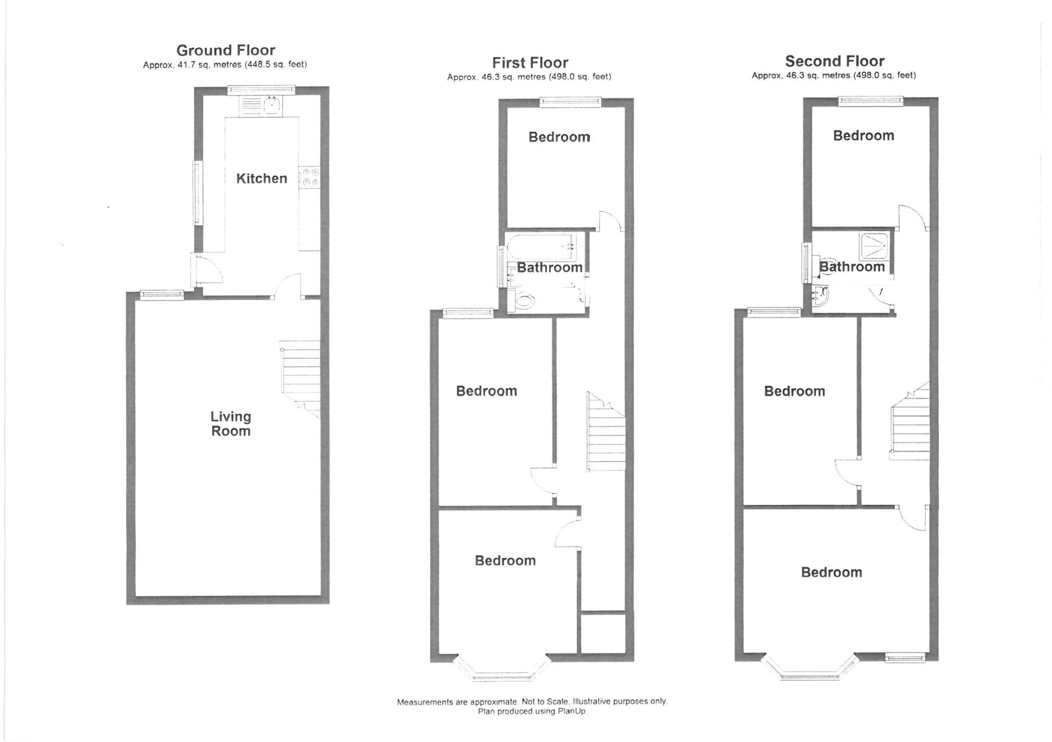
*** Guide Price £525,000 - £550,000 *** Set over three floors is this six bedroom, period style house which is convenient for Plumstead station and access into Woolwich for the Elizabeth line.
Property Oracle says ..
The property is a 6-bedroom terraced house in Plumstead, London. It is located near schools and transportation. The property is in need of renovation. The asking price is significantly below the average price per square foot for the area.
Therefore, we give this property 7 / 10. *Disclaimer: This is our option and does constitute a recommendation or financial advice. Do your own research. *
- Price
- 9
- Condition
- 4
- Location
- 8
- Land
- 7
- Bedrooms
- 6
- Bathrooms
- 2
- Sqft (est)
- 1,444.50
The heatmap indicates the level of crime in the area. The color of the heatmap indicates the crime severity and recency.
Metrics Year-on-Year
- Average area value
- 430,413.00 £Increased by 9.68 %
- Est sale value
- 858,033.00 £Increased by 36.87 %
- Average area rental value
- 1,340.00 £/moDecreased by 32.05 %
- Est letting value
- 1,444.50 £/moDecreased by 50.00 %
- Est rental Yield
- 3.74 %Decreased by 37.98 %
- Crime Rate
- 7.00 %Unchanged by 0.00 %
Agent Activity
Robinson Jackson created the listing.
Nearby Schools
| Name | Type | Ofsted | Distance |
|---|---|---|---|
| St Margaret'S Church Of England Primary School | Voluntary Aided School | Good | 0.33 KM |
| Waterside School | Community Special School | Good | 0.38 KM |
| South Rise Primary School | Academy Converter | Good | 0.47 KM |
| Plumstead Manor School | Community School | Good | 0.58 KM |
| Foxfield Primary School | Academy Converter | Outstanding | 0.62 KM |
Images
Nearby Streets
| Name | Average Price | Average Sqft | Distance |
|---|---|---|---|
| Swetenham Walk | £ 0 | 0 | 0.00 KM |
| Richmond Place | £ 0 | 0 | 0.00 KM |
| Wrekin Road | £ 0 | 0 | 0.00 KM |
| Ivermore Place | £ 230,000 | 0 | 0.00 KM |
| St. Margaret's Grove | £ 340,000 | 0 | 0.00 KM |
Nearby Transport
| Name | NLC | TLC | Distance |
|---|---|---|---|
| Plumstead | 5208 | PLU | 0.85 KM |
| Woolwich Arsenal | 5152 | WWA | 1.29 KM |
| Falconwood | 5137 | FCN | 2.77 KM |
| Woolwich Dockyard | 5153 | WWD | 2.83 KM |
| Welling | 5128 | WLI | 3.28 KM |
Nearby Listings
| Address | Price | Type | Score | Distance |
|---|---|---|---|---|
| Bramblebury Road, Plumstead, SE18 | £ 525,000 | BUY | 7 / 10 | 0.00 KM |
| Bramblebury Road, Plumstead, SE18 | £ 500,000 | BUY | 6 / 10 | 0.00 KM |
| Bramblebury Road, London, SE18 | £ 389,995 | BUY | 5 / 10 | 0.04 KM |
| Bramblebury Road, Plumstead, London, SE18 7TG | £ 475,000 | BUY | 6 / 10 | 0.07 KM |
| Bramblebury Road, Plumstead | £ 365,000 | BUY | 7 / 10 | 0.09 KM |
Nearby Properties
| Address | Price | Distance |
|---|---|---|
| 82 Bramblebury Road | £ 175,000 | 0.00 KM |
| 58 Bramblebury Road | £ 392,000 | 0.00 KM |
| 38 Bramblebury Road | £ 430,000 | 0.00 KM |
| 18 Bramblebury Road | £ 170,000 | 0.00 KM |
| 50 Bramblebury Road | £ 460,000 | 0.00 KM |