47 Noneley Road, Loppington, Shrewsbury, SY4 5SQ
By Halls Estate Agents
£ 270,000
Reviews
3 out of 5 stars
Halls Estate Agents says ..
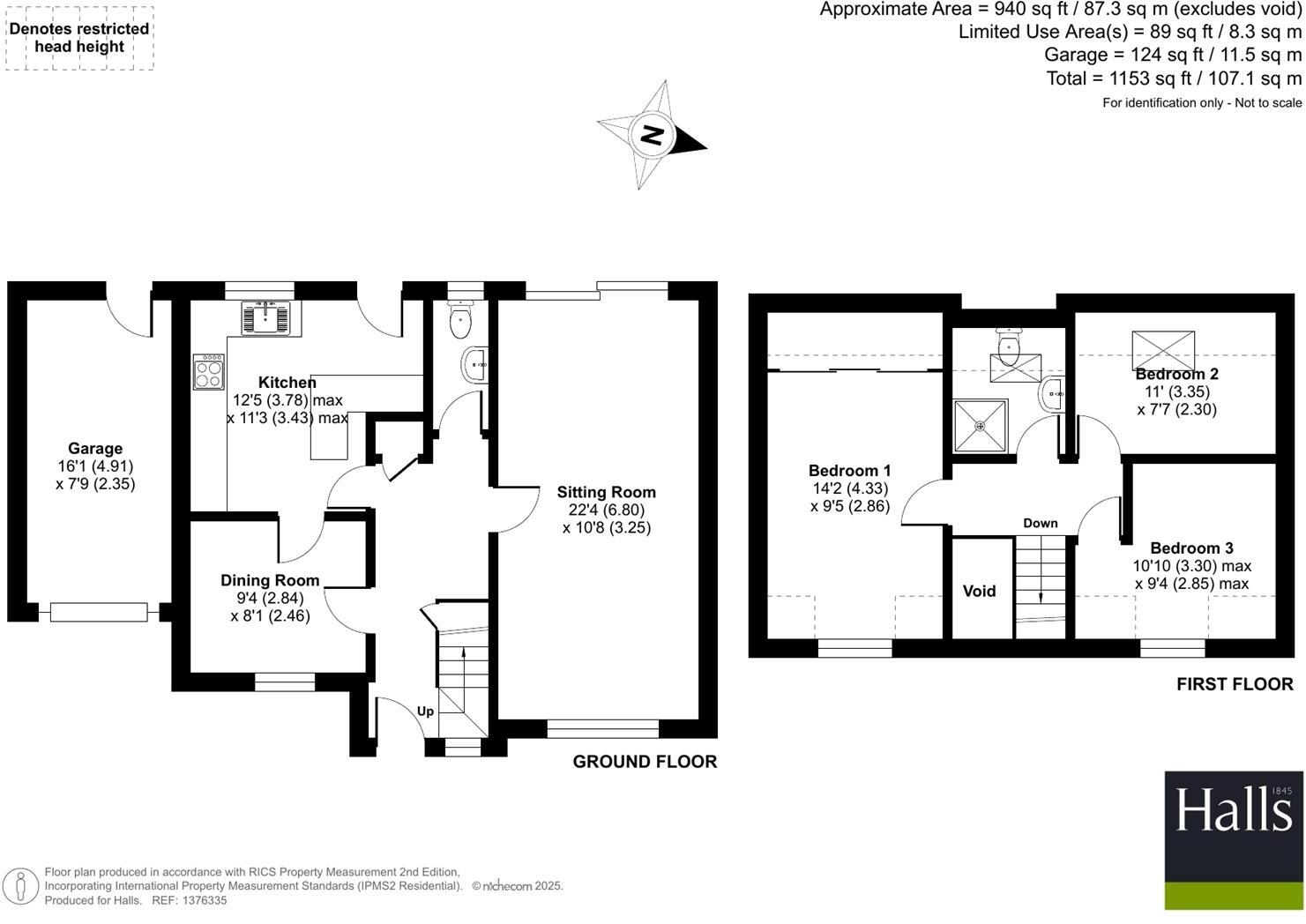
A spaciously proportioned and attractive semi-detached house with garage and generous sized gardens backing onto farmland with an unspoilt view.
Property Oracle says ..
This is a three-bedroom semi-detached property located in the rural village of Loppington, Shropshire. The property offers a good-sized garden and is situated in a quiet, countryside setting. While the property is in reasonable condition, it would benefit from some modernization, particularly in the kitchen and bathroom. The location is somewhat remote, with limited access to public transportation. However, there is a primary school nearby. Considering these factors, the list price of £270,000 appears to be a fair reflection of the property’s value.
Therefore, we give this property 6 / 10. *Disclaimer: This is our option and does constitute a recommendation or financial advice. Do your own research. *
- Price
- 7
- Condition
- 6
- Location
- 6
- Land
- 7
- Bedrooms
- 3
- Bathrooms
- 1
- Sqft (est)
- 93.25
The heatmap indicates the level of crime in the area. The color of the heatmap indicates the crime severity and recency.
Metrics Year-on-Year
- Average area value
- 476,667.00 £Increased by 9.79 %
- Est sale value
- 41,030.00 £Increased by 53.85 %
- Average area rental value
- 1,188.00 £/moDecreased by 20.80 %
- Est letting value
- 93.25 £/mo
- Est rental Yield
- 2.99 %Decreased by 27.95 %
- Crime Rate
- 0.00 %
Agent Activity
Halls Estate Agents created the listing.
Nearby Schools
| Name | Type | Ofsted | Distance |
|---|---|---|---|
| Loppington House Fe Unit | Miscellaneous | 1.13 KM | |
| Newtown Cofe Primary School | Voluntary Controlled School | Outstanding | 2.74 KM |
| Smallbrook School | Other Independent Special School | Good | 3.46 KM |
| Myddle Cofe Primary School | Voluntary Controlled School | Good | 5.27 KM |
| The Thomas Adams School | Academy Converter | 5.93 KM |
Images
Nearby Streets
| Name | Average Price | Average Sqft | Distance |
|---|---|---|---|
| Noneley Hall Barns | £ 775,000 | 0 | 0.00 KM |
| Grafton Farm Barns | £ 0 | 0 | 0.00 KM |
Nearby Transport
| Name | NLC | TLC | Distance |
|---|---|---|---|
| Wem | 1347 | WEM | 7.23 KM |
| Yorton | 1351 | YRT | 7.44 KM |
Nearby Listings
| Address | Price | Type | Score | Distance |
|---|---|---|---|---|
| Noneley Road, Loppington, SY4 5SQ | £ 310,000 | BUY | Unknown | 0.00 KM |
| Noneley Road, Loppington, Shrewsbury | £ 300,000 | BUY | 7 / 10 | 0.00 KM |
| 47 Noneley Road, Loppington, Shrewsbury, SY4 5SQ | £ 270,000 | BUY | 6 / 10 | 0.00 KM |
| Noneley Road, Loppington, Shrewsbury, Shropshire, SY4 | £ 265,000 | BUY | 7 / 10 | 0.00 KM |
| Noneley Road, Loppington, Shrewsbury | £ 275,000 | BUY | 7 / 10 | 0.04 KM |
Nearby Properties
| Address | Price | Distance |
|---|---|---|
| Cottismore | £ 150,000 | 0.18 KM |
| 23 Charleston Way | £ 410,000 | 0.33 KM |
| 2 Charleston Way | £ 225,000 | 0.33 KM |
| 10 Melrose Crescent | £ 186,995 | 0.40 KM |
| 6 Melrose Crescent | £ 150,000 | 0.40 KM |