Broadway Hill, St Thomas, EX2
By Fraser & Wheeler
£ 290,000
Reviews
3 out of 5 stars
Fraser & Wheeler says ..
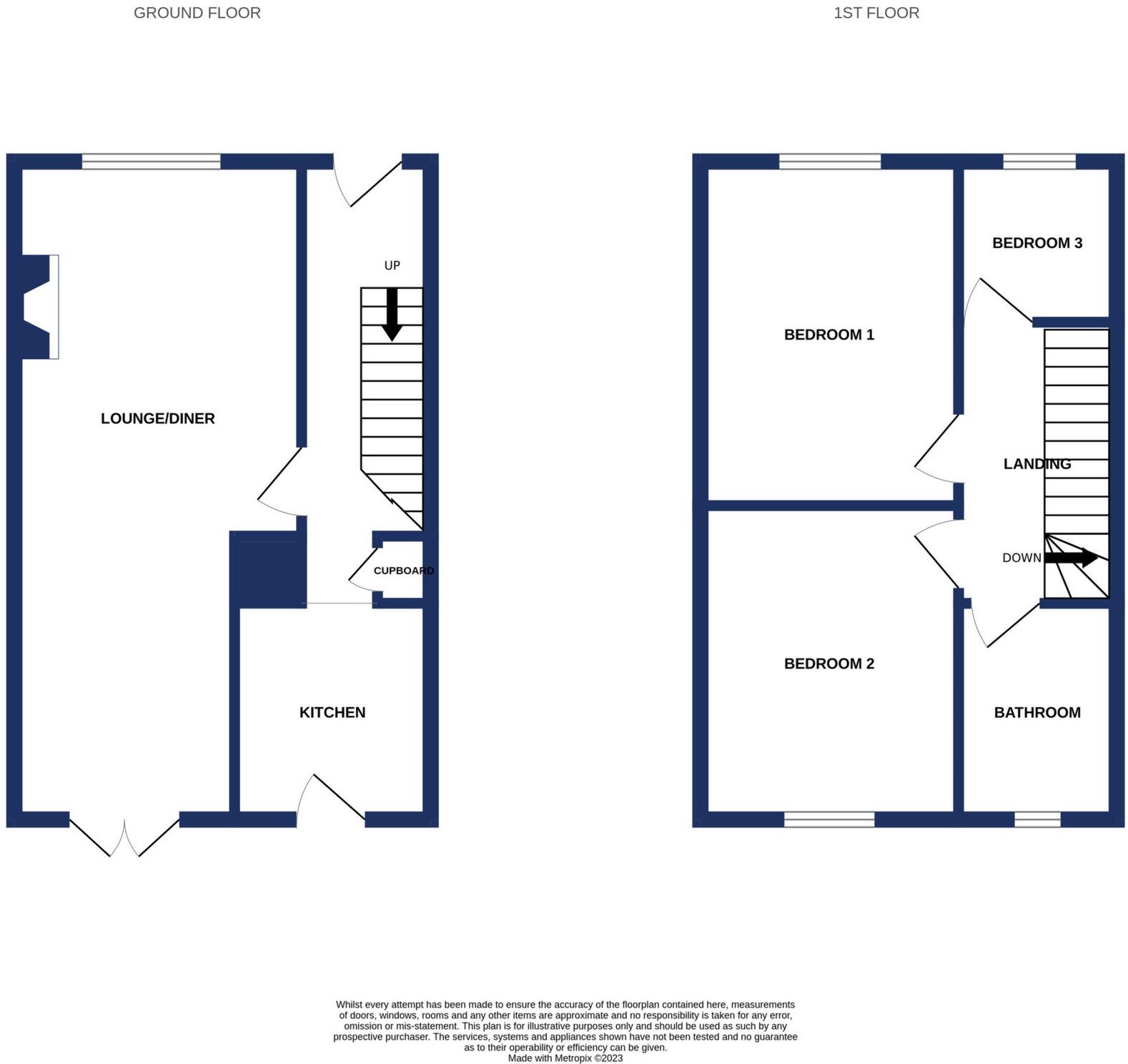
Far reaching views can be enjoyed from this three bedroom semi detached property which is situated in a popular residential area with good size living accommdation, off road parking and enclosed rear garden. The property is within close proximity to local schools, shop and post office and main co...
Property Oracle says ..
Therefore, we give this property 7 / 10. *Disclaimer: This is our option and does constitute a recommendation or financial advice. Do your own research. *
- Price
- 7
- Condition
- 6
- Location
- 8
- Land
- 7
- Bedrooms
- 3
- Bathrooms
- 1
- Sqft (est)
- 659.00
The heatmap indicates the level of crime in the area. The color of the heatmap indicates the crime severity and recency.
Metrics Year-on-Year
- Average area value
- 298,045.00 £Decreased by 18.28 %
- Est sale value
- 218,129.00 £Decreased by 4.61 %
- Average area rental value
- 1,425.00 £/moIncreased by 1.79 %
- Est letting value
- 659.00 £/moUnchanged by 0.00 %
- Est rental Yield
- 5.74 %Increased by 24.51 %
- Crime Rate
- 5.00 %Unchanged by 0.00 %
from 364,698.00 £
from 228,673.00 £
from 1,400.00 £/mo
from 659.00 £/mo
from 4.61 %
from 5.00 %
Agent Activity
Fraser & Wheeler created the listing.
Nearby Schools
| Name | Type | Ofsted | Distance |
|---|---|---|---|
| Bowhill Primary School | Academy Converter | Good | 0.73 KM |
| Barley Lane School | Foundation Special School | Good | 0.77 KM |
| Torlands Academy | Academy Alternative Provision Converter | 0.81 KM | |
| West Exe Children'S Centre | Children's Centre | 0.89 KM | |
| Ide Primary School | Academy Converter | 0.92 KM |
Images
Nearby Streets
| Name | Average Price | Average Sqft | Distance |
|---|---|---|---|
| Somerset Avenue | £ 400,000 | 0 | 0.00 KM |
| Wiltshire Close | £ 595,000 | 0 | 0.00 KM |
| Franklyn Close | £ 295,000 | 0 | 0.00 KM |
| Ide Village Road | £ 0 | 0 | 0.00 KM |
| Isleworth Road | £ 0 | 0 | 0.00 KM |
Nearby Transport
| Name | NLC | TLC | Distance |
|---|---|---|---|
| Exeter St Thomas | 3414 | EXT | 1.80 KM |
| Exeter St David'S | 3410 | EXD | 2.37 KM |
| Exeter Central | 5755 | EXC | 2.87 KM |
| St James Park (Exeter) | 5751 | SJP | 4.19 KM |
| Polsloe Bridge | 3422 | POL | 6.17 KM |
Nearby Listings
| Address | Price | Type | Score | Distance |
|---|---|---|---|---|
| Broadway Hill, St Thomas, EX2 | £ 375,000 | BUY | 7 / 10 | 0.00 KM |
| Broadway Hill, St Thomas, EX2 | £ 290,000 | BUY | 7 / 10 | 0.00 KM |
| Vuefield Hill, St Thomas, EX2 | £ 425,000 | BUY | 7 / 10 | 0.09 KM |
| Cowick Hill, Exeter, EX2 | £ 425,000 | BUY | 8 / 10 | 0.09 KM |
| Cowick Hill, St Thomas, EX2 | £ 260,000 | BUY | 5 / 10 | 0.09 KM |
Nearby Properties
| Address | Price | Distance |
|---|---|---|
| 3 Broadway Hill | £ 158,000 | 0.01 KM |
| 6 Vuefield Hill | £ 400,000 | 0.09 KM |
| 12 Vuefield Hill | £ 235,000 | 0.09 KM |
| 23 Vuefield Hill | £ 199,000 | 0.09 KM |
| 25 Vuefield Hill | £ 169,000 | 0.09 KM |