Goundrys says ..
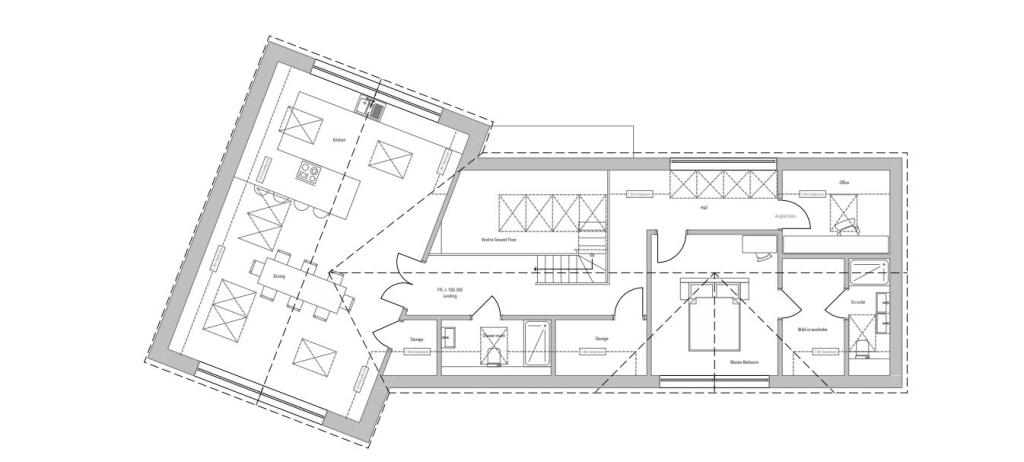
DEVELOPMENT OPPORTUNITY. A rare opportunity to acquire a partly built new home. This large detached property is available to purchase in it's current state to be finished to the buyers own specification. Plans are for a large 4/5 bedroom house with a quadruple garage.
Property Oracle says ..
The property is currently under construction, located in Wheal Rose, Redruth, Cornwall. The surrounding area includes several park homes and other residential properties. The proximity to Redruth offers access to transportation via Great Western Railway, which is approximately 3.91 km away. There are also several schools within a reasonable distance, including Mount Hawke Academy (Outstanding Ofsted rating, 2.35 km), Treleigh Community Primary School (Outstanding Ofsted rating, 2.35 km), and others. The images show a modern, angular design with a substantial plot size. However, the lack of information regarding square footage and plot size in the provided data prevents a precise evaluation of land size and price per square foot. The list price of £550,000 requires further context to assess its reasonableness in comparison to similar properties in the area. More information is needed to provide a comprehensive analysis of the property.
Therefore, we give this property 6 / 10. *Disclaimer: This is our option and does constitute a recommendation or financial advice. Do your own research. *
- Price
- 5
- Condition
- 5
- Location
- 7
- Land
- 7
- Bedrooms
- 4
- Bathrooms
- 5
The heatmap indicates the level of crime in the area. The color of the heatmap indicates the crime severity and recency.
Metrics Year-on-Year
- Average area value
- 592,492.00 £Increased by 21.25 %
- Average area rental value
- 900.00 £/moDecreased by 24.56 %
- Est rental Yield
- 1.82 %Decreased by 37.88 %
- Crime Rate
- 63.00 %Unchanged by 0.00 %
Agent Activity
Goundrys created the listing.
Nearby Schools
| Name | Type | Ofsted | Distance |
|---|---|---|---|
| Mount Hawke Academy | Academy Converter | Outstanding | 2.35 KM |
| Treleigh Community Primary School | Foundation School | Outstanding | 2.35 KM |
| Blackwater Community Primary School | Academy Converter | Good | 2.86 KM |
| Pennoweth Primary School | Academy Converter | 3.56 KM | |
| Redruth Children'S Centre | Children's Centre | 3.56 KM |
Images
Nearby Streets
| Name | Average Price | Average Sqft | Distance |
|---|---|---|---|
| Westway | £ 0 | 0 | 0.00 KM |
| Gwel Gwarthe | £ 0 | 0 | 0.00 KM |
| Treven Noweth | £ 209,875 | 0 | 0.00 KM |
| Beechtree Close | £ 0 | 0 | 0.00 KM |
| Homefield | £ 0 | 0 | 0.00 KM |
Nearby Transport
| Name | NLC | TLC | Distance |
|---|---|---|---|
| Redruth | 3530 | RED | 3.91 KM |
Nearby Listings
| Address | Price | Type | Score | Distance |
|---|---|---|---|---|
| Wheal Rose, Redruth, TR16 5DF | £ 550,000 | BUY | 6 / 10 | 0.00 KM |
| Wheal Rose, Redruth, TR16 5DF | £ 950,000 | BUY | 7 / 10 | 0.00 KM |
| Wheal Rose, Scorrier, Redruth, Cornwall, TR16 | £ 735,000 | BUY | 7 / 10 | 0.06 KM |
| Wheal Rose, Scorrier, Redruth | £ 650,000 | BUY | 8 / 10 | 0.16 KM |
| Wheal Rose, Scorrier | £ 250,000 | BUY | 7 / 10 | 0.18 KM |
Nearby Properties
| Address | Price | Distance |
|---|---|---|
| Tregaron | £ 327,500 | 0.01 KM |
| Goonearl Cottage | £ 500,000 | 0.01 KM |
| Westway | £ 391,000 | 0.01 KM |
| Kittiwake Cottage | £ 75,000 | 0.01 KM |
| 3 Green Lane | £ 249,999 | 0.01 KM |