Acorn says ..
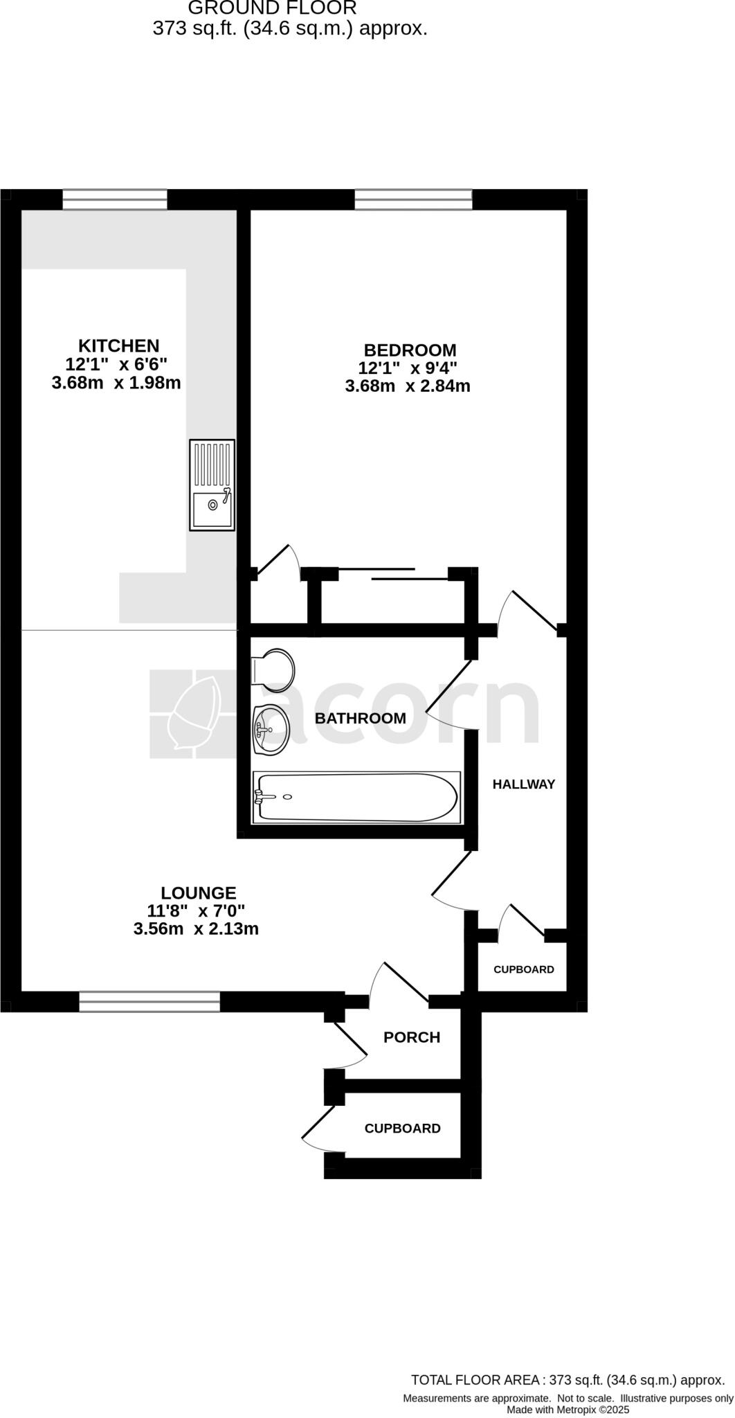
** CASH BUYERS ONLY - due to a 60-year lease ** Purpose built ground floor one bedroom maisonette located in the ever-popular Parkwood area, with great local shops amenities and transport links. Boasting your own front door, once inside, you will see form the photos that t...
Property Oracle says ..
This maisonette in Gillingham, Kent is located in a convenient area with nearby schools and transportation links. The property is in need of significant renovation, as evidenced by the photos. The current list price of £120,000 is considerably lower than the average price for the area (£409,091), but this is likely due to the property’s condition. The small plot size of 373 sqft is also a factor to consider. While the location is positive, the extensive renovation needed significantly impacts the overall value.
Therefore, we give this property 4 / 10. *Disclaimer: This is our option and does constitute a recommendation or financial advice. Do your own research. *
- Price
- 4
- Condition
- 2
- Location
- 7
- Land
- 3
- Bedrooms
- 1
- Bathrooms
- 1
- Sqft (est)
- 339.60
- Lot (est)
- 373.00
The heatmap indicates the level of crime in the area. The color of the heatmap indicates the crime severity and recency.
Metrics Year-on-Year
- Average area value
- 405,000.00 £Increased by 14.70 %
- Est sale value
- 134,821.20 £Increased by 5.03 %
- Average area rental value
- 1,825.00 £/moIncreased by 1.45 %
- Est letting value
- 339.60 £/moUnchanged by 0.00 %
- Est rental Yield
- 5.41 %Decreased by 11.46 %
- Crime Rate
- 4.00 %Unchanged by 0.00 %
Agent Activity
Acorn created the listing.
Nearby Schools
| Name | Type | Ofsted | Distance |
|---|---|---|---|
| Parkwood Primary School | Community School | Good | 0.28 KM |
| St Augustine Of Canterbury Catholic Primary School | Voluntary Aided School | Good | 1.00 KM |
| Miers Court Children'S Centre | Children's Centre | 1.09 KM | |
| Miers Court Primary School | Academy Converter | 1.13 KM | |
| Deanwood Primary School | Academy Converter | Good | 1.23 KM |
Images
Nearby Streets
| Name | Average Price | Average Sqft | Distance |
|---|---|---|---|
| Honeybee Glade | £ 275,000 | 0 | 0.00 KM |
| Sunningdale Close | £ 375,000 | 0 | 0.00 KM |
| Wentworth Drive | £ 400,000 | 0 | 0.00 KM |
| Tavistock Close | £ 400,000 | 0 | 0.00 KM |
| M2 | £ 0 | 0 | 0.00 KM |
Nearby Transport
| Name | NLC | TLC | Distance |
|---|---|---|---|
| Rainham (Kent) | 5177 | RAI | 2.29 KM |
| Gillingham (Kent) | 5169 | GLM | 7.13 KM |
| Newington | 5175 | NGT | 7.44 KM |
| Bearsted | 5091 | BSD | 8.48 KM |
| Chatham | 5199 | CTM | 9.58 KM |
Nearby Listings
| Address | Price | Type | Score | Distance |
|---|---|---|---|---|
| Goodall Close, Gillingham, Kent | £ 120,000 | BUY | 4 / 10 | 0.00 KM |
| Parker Close, Parkwood, Gillingham, ME8 | £ 475,000 | BUY | 6 / 10 | 0.06 KM |
| Parker Close, Parkwood, Gillingham, ME8 9NQ | £ 425,000 | BUY | 7 / 10 | 0.06 KM |
| Sinclair Close, Rainham, Kent, ME8 | £ 325,000 | BUY | 7 / 10 | 0.12 KM |
| Barlow Close, Gillingham, ME8 | £ 575,000 | BUY | Unknown | 0.16 KM |
Nearby Properties
| Address | Price | Distance |
|---|---|---|
| 6 Goodall Close | £ 85,000 | 0.01 KM |
| 1 Goodall Close | £ 392,500 | 0.01 KM |
| 17 Goodall Close | £ 103,000 | 0.01 KM |
| 5 Goodall Close | £ 130,000 | 0.01 KM |
| 19 Goodall Close | £ 76,000 | 0.01 KM |