Fairfield Road, Eastbourne
By Emslie & Tarrant
£ 495,000
Reviews
3 out of 5 stars
Emslie & Tarrant says ..
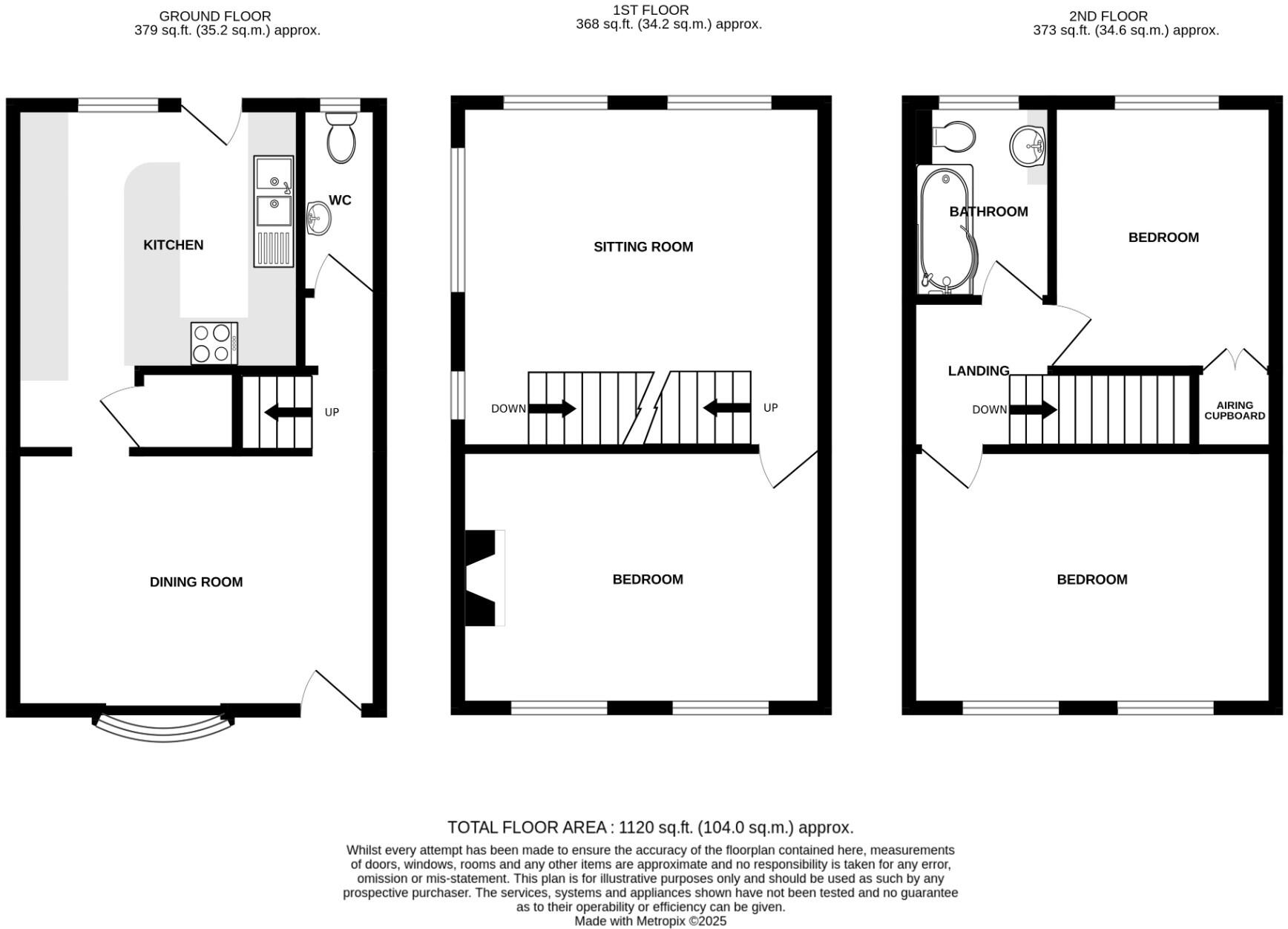
Forming part of a select residential close within the exclusive area of Meads - A remarkably spacious 3 bedroom Georgian style semi-detached town house set within beautifully established mature gardens of good size with the benefit of a garage and an allocated car parking space.
Property Oracle says ..
This property is a 3-bedroom, 1-bathroom semi-detached house located on Fairfield Road in the Meads area of Eastbourne, East Sussex. The list price is £495,000, and the property has a total area of 710 sqft. The property benefits from a garden. The average price for properties in the area is £365,378, with an average size of 975 sqft and an average price per sqft of £374. While this property is smaller than average, its location in Meads, proximity to local amenities, and the inclusion of a garden could justify a higher price per sqft. However, the lack of information regarding the property’s condition and the limited details on nearby comparable properties make a definitive assessment of value challenging. More information is needed to accurately determine if the list price is reasonable.
Therefore, we give this property 7 / 10. *Disclaimer: This is our option and does constitute a recommendation or financial advice. Do your own research. *
- Price
- 6
- Condition
- 7
- Location
- 8
- Land
- 7
- Bedrooms
- 3
- Bathrooms
- 1
- Sqft (est)
- 710.00
The heatmap indicates the level of crime in the area. The color of the heatmap indicates the crime severity and recency.
Metrics Year-on-Year
- Average area value
- 377,300.00 £Increased by 2.31 %
- Est sale value
- 286,130.00 £Increased by 9.51 %
- Average area rental value
- 1,214.00 £/moDecreased by 5.45 %
- Est letting value
- 710.00 £/moUnchanged by 0.00 %
- Est rental Yield
- 3.86 %Decreased by 7.66 %
- Crime Rate
- 2.00 %Unchanged by 0.00 %
Agent Activity
Emslie & Tarrant marked this listing as sold.
Emslie & Tarrant created the listing.
Nearby Schools
| Name | Type | Ofsted | Distance |
|---|---|---|---|
| St Andrew'S Prep | Other Independent School | 0.77 KM | |
| Bede'S Prep School | Other Independent School | 0.93 KM | |
| Eastbourne College | Other Independent School | 1.00 KM | |
| Gildredge House | Free Schools | Good | 1.13 KM |
| St John'S Meads Church Of England Primary School | Academy Converter | 1.32 KM |
Images
Nearby Streets
| Name | Average Price | Average Sqft | Distance |
|---|---|---|---|
| Saint John's Road | £ 0 | 0 | 0.00 KM |
| Upper Duke's Drive | £ 0 | 0 | 0.00 KM |
| St. Mary's Cottages | £ 0 | 0 | 0.00 KM |
| St. Mary's Corner | £ 0 | 0 | 0.00 KM |
| Baker's Road | £ 169,950 | 0 | 0.00 KM |
Nearby Transport
| Name | NLC | TLC | Distance |
|---|---|---|---|
| Eastbourne | 5448 | EBN | 1.56 KM |
| Hampden Park (Sussex) | 5450 | HMD | 4.20 KM |
| Polegate | 5455 | PLG | 7.44 KM |
| Pevensey And Westham | 5461 | PEV | 8.62 KM |
Nearby Listings
| Address | Price | Type | Score | Distance |
|---|---|---|---|---|
| Fairfield Road, Eastbourne | £ 495,000 | BUY | 7 / 10 | 0.00 KM |
| Fairfield Road, Eastbourne | £ 875,000 | BUY | 7 / 10 | 0.00 KM |
| Fairfield Road, Eastbourne | £ 132,950 | BUY | 7 / 10 | 0.08 KM |
| Fairfield Road, Eastbourne | £ 145,000 | BUY | 6 / 10 | 0.08 KM |
| Fairfield Road, Fairfield Lodge, BN20 | £ 119,950 | BUY | 5 / 10 | 0.10 KM |
Nearby Properties
| Address | Price | Distance |
|---|---|---|
| 36 Fairfield Road | £ 263,495 | 0.01 KM |
| 26 Fairfield Road | £ 275,000 | 0.01 KM |
| 20 Fairfield Road | £ 595,000 | 0.01 KM |
| 34 Fairfield Road | £ 330,000 | 0.01 KM |
| 42 Fairfield Road | £ 304,000 | 0.01 KM |