Alfred Street, Gloucester
By Murdock & Wasley Estate Agents
£ 175,000
Reviews
3 out of 5 stars
Murdock & Wasley Estate Agents says ..
** Two Bedroom Semi Detached House with No Onward Chain ** Murdock & Wasley Estate Agents are pleased to present to the market this well presented, two bedroom semi-detached house. Conveniently situated in a central and popular area, it is just a short walk from the city centre, offering...
Property Oracle says ..
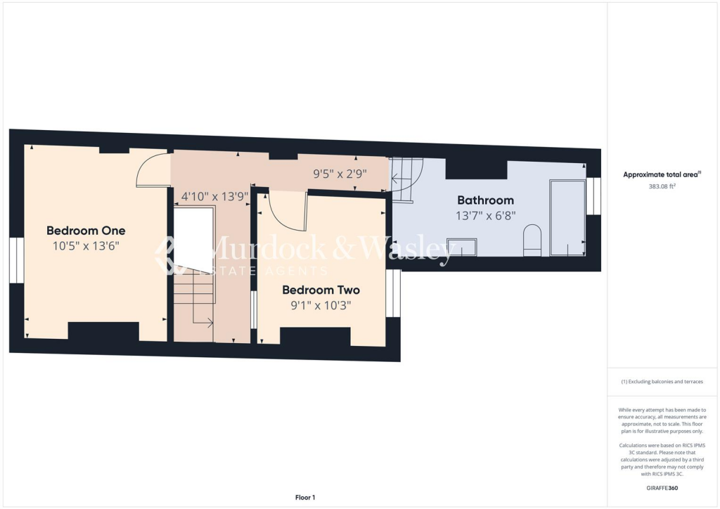
The property is a 2-bedroom semi-detached house located on Alfred Street in Gloucester. The asking price is £175,000. Based on the provided images, the property appears to be in good condition, recently decorated in neutral colours. The kitchen and bathroom look to have been recently updated. There is a small garden to the rear of the property. The location is close to several schools, with Al Ashraf Primary School and Al-Ashraf Secondary School for Girls receiving a “Good” Ofsted rating. Gloucester train station is within reasonable distance. The average house price in the area is £171,328, with an average price per square foot of £217. Given the property’s size (793.40 sqft), its updated condition, and its proximity to schools and transport links, the asking price of £175,000 appears to be in line with the local market. However, the lack of plot size information and the limited information on comparable properties makes it difficult to give a definitive price assessment.
Therefore, we give this property 6 / 10. *Disclaimer: This is our option and does constitute a recommendation or financial advice. Do your own research. *
- Price
- 7
- Condition
- 8
- Location
- 7
- Land
- 4
- Bedrooms
- 2
- Bathrooms
- 1
- Sqft (est)
- 793.40
The heatmap indicates the level of crime in the area. The color of the heatmap indicates the crime severity and recency.
Metrics Year-on-Year
- Average area value
- 187,273.00 £Decreased by 3.50 %
- Est sale value
- 169,787.60 £Increased by 4.39 %
- Average area rental value
- 784.00 £/moDecreased by 3.80 %
- Est letting value
- 0.00 £/mo
- Est rental Yield
- 5.02 %Decreased by 0.40 %
- Crime Rate
- 6.00 %Unchanged by 0.00 %
Agent Activity
Murdock & Wasley Estate Agents created the listing.
Nearby Schools
| Name | Type | Ofsted | Distance |
|---|---|---|---|
| St James Church Of England Junior School | Voluntary Controlled School | Requires improvement | 0.24 KM |
| Al Ashraf Primary School | Other Independent School | Good | 0.48 KM |
| Hatherley Infant School | Community School | Requires improvement | 0.53 KM |
| Bartongate Children'S Centre | Children's Centre | 0.64 KM | |
| Al-Ashraf Secondary School For Girls | Other Independent School | Good | 0.67 KM |
Images
Nearby Streets
| Name | Average Price | Average Sqft | Distance |
|---|---|---|---|
| Alington Close | £ 210,000 | 0 | 0.00 KM |
| Ayland Gardens | £ 0 | 0 | 0.00 KM |
| Millbrook Close | £ 0 | 0 | 0.00 KM |
| Barton Street | £ 0 | 0 | 0.00 KM |
| The Laurels | £ 0 | 0 | 0.00 KM |
Nearby Transport
| Name | NLC | TLC | Distance |
|---|---|---|---|
| Gloucester | 4760 | GCR | 1.17 KM |
Nearby Listings
| Address | Price | Type | Score | Distance |
|---|---|---|---|---|
| Alfred Street, Gloucester | £ 175,000 | BUY | 6 / 10 | 0.00 KM |
| India Road, Gloucester, Gloucestershire, GL1 | £ 85,000 | BUY | Unknown | 0.05 KM |
| India Road, Gloucester | £ 170,000 | BUY | Unknown | 0.14 KM |
| Clement Street, Gloucester | £ 189,950 | BUY | Unknown | 0.15 KM |
| Hethersett Road, Gloucester, Gloucestershire, GL1 | £ 220,000 | BUY | Unknown | 0.18 KM |
Nearby Properties
| Address | Price | Distance |
|---|---|---|
| 14 Alfred Street | £ 95,000 | 0.04 KM |
| 38 Alfred Street | £ 150,000 | 0.04 KM |
| 32 Alfred Street | £ 150,000 | 0.04 KM |
| 16 Alfred Street | £ 121,000 | 0.04 KM |
| 24 Alfred Street | £ 40,000 | 0.04 KM |