Sterling Road, Enfield
By Barnfields Estate Agents
£ 440,000
Reviews
3 out of 5 stars
Barnfields Estate Agents says ..
Delightful two bedroom character cottage in this popular residential turning, just minutes from local shops, parks, schools and Gordon Hill Rail Station with Hillyfields country park close at hand and within easy access of Enfield Town with its multiple shopping facilities, the M25 and A10.
Property Oracle says ..
Therefore, we give this property 6 / 10. *Disclaimer: This is our option and does constitute a recommendation or financial advice. Do your own research. *
- Price
- 6
- Condition
- 7
- Location
- 7
- Land
- 7
- Bedrooms
- 2
- Bathrooms
- 1
- Sqft (est)
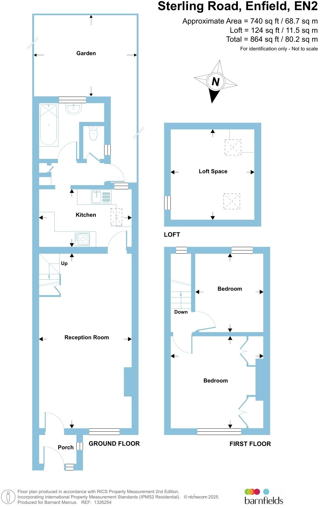
- 864.00
The heatmap indicates the level of crime in the area. The color of the heatmap indicates the crime severity and recency.
Metrics Year-on-Year
- Average area value
- 477,500.00 £Increased by 6.21 %
- Est sale value
- 374,112.00 £Increased by 15.16 %
- Average area rental value
- 1,740.00 £/moDecreased by 3.23 %
- Est letting value
- 864.00 £/moUnchanged by 0.00 %
- Est rental Yield
- 4.37 %Decreased by 8.96 %
- Crime Rate
- 7.00 %Unchanged by 0.00 %
from 449,601.00 £
from 324,864.00 £
from 1,798.00 £/mo
from 864.00 £/mo
from 4.80 %
from 7.00 %
Agent Activity
Barnfields Estate Agents created the listing.
Nearby Schools
| Name | Type | Ofsted | Distance |
|---|---|---|---|
| St Michael'S Cofe Primary School | Voluntary Aided School | Good | 0.50 KM |
| Lavender Children'S Centre | Children's Centre | 0.60 KM | |
| Lavender Primary School | Academy Converter | Good | 0.60 KM |
| St George'S Catholic Primary School | Voluntary Aided School | Good | 0.74 KM |
| Chase Side Children'S Centre | Children's Centre | 0.93 KM |
Images
Nearby Streets
| Name | Average Price | Average Sqft | Distance |
|---|---|---|---|
| St Luke's Avenue | £ 550,000 | 0 | 0.00 KM |
| White House Lane | £ 500,000 | 0 | 0.00 KM |
| Borrowdale Court | £ 174,998 | 0 | 0.00 KM |
| The Drive | £ 0 | 0 | 0.00 KM |
| Weston Road | £ 325,000 | 0 | 0.00 KM |
Nearby Transport
| Name | NLC | TLC | Distance |
|---|---|---|---|
| Gordon Hill | 6028 | GDH | 1.21 KM |
| Enfield Chase | 6010 | ENC | 1.53 KM |
| Enfield Town | 6959 | ENF | 1.55 KM |
| Grange Park | 6029 | GPK | 2.93 KM |
| Bush Hill Park | 6913 | BHK | 3.10 KM |
Nearby Listings
| Address | Price | Type | Score | Distance |
|---|---|---|---|---|
| Sterling Road, Enfield, EN2 | £ 440,000 | BUY | 6 / 10 | 0.00 KM |
| Sterling Road, Enfield | £ 440,000 | BUY | 6 / 10 | 0.00 KM |
| 22 Sterling Road, Enfield, Middlesex, EN2 0LN | £ 265,000 | BUY | Unknown | 0.01 KM |
| Sterling Road, EN2 | £ 525,000 | BUY | 7 / 10 | 0.03 KM |
| Sterling Road, Enfield, Middlesex, EN2 | £ 500,000 | BUY | 6 / 10 | 0.03 KM |
Nearby Properties
| Address | Price | Distance |
|---|---|---|
| 46 Sterling Road | £ 620,000 | 0.00 KM |
| 10 Sterling Road | £ 250,000 | 0.00 KM |
| 23 Sterling Road | £ 262,500 | 0.00 KM |
| 17 Sterling Road | £ 440,000 | 0.00 KM |
| 27 Sterling Road | £ 440,000 | 0.00 KM |