Wilkinson Byrne says ..
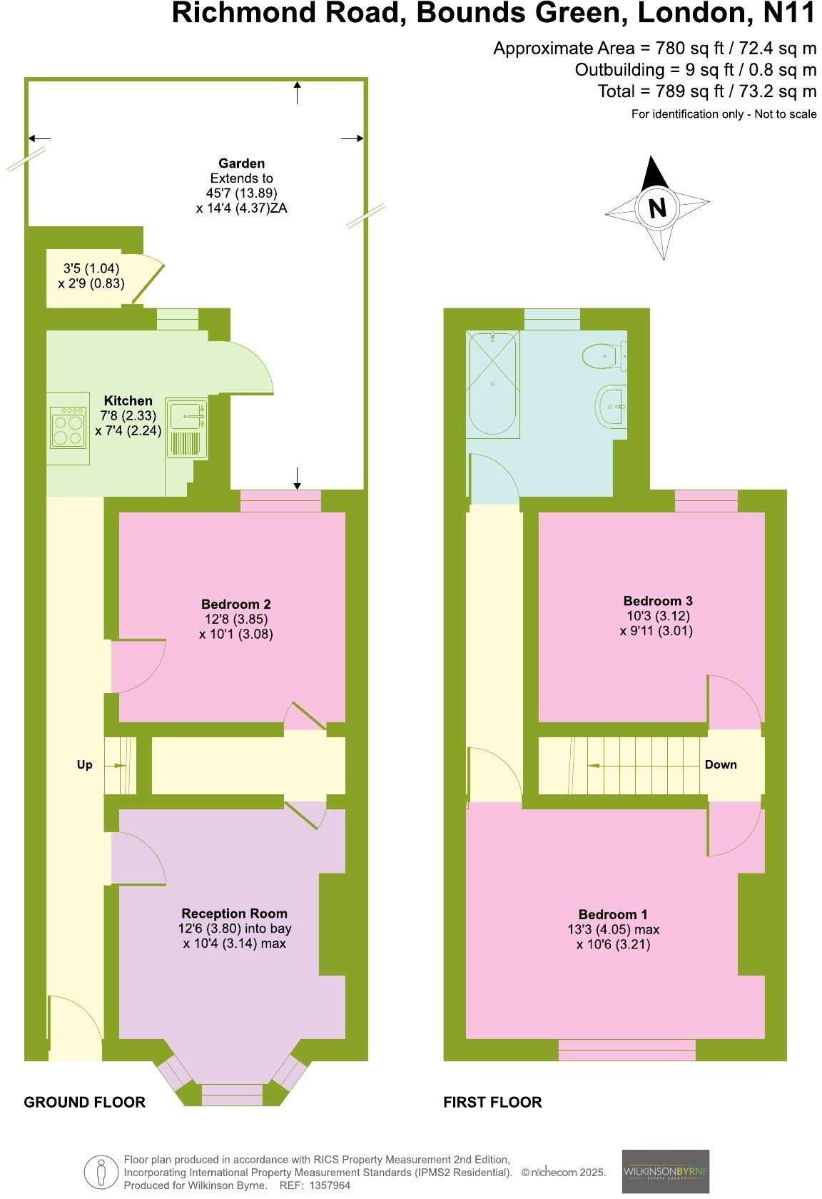
Located on the ever-popular Richmond Road, this well-presented two-bedroom house offers well proportioned accommodation in a highly desirable residential area. The property comprises two bright reception room, a fitted kitchen, two well-proportioned bedrooms, and a contemporary bathroom. Further ...
Property Oracle says ..
This is a two-bedroom terraced house located on Richmond Road in Bounds Green, Haringey. The property is listed with Wilkinson Byrne and has a list price of £549,995. The house benefits from its location, being close to transportation links and schools. While the property requires some modernisation, it offers a garden and has the potential to be a comfortable home. The price appears competitive compared to other properties in the area.
Therefore, we give this property 6 / 10. *Disclaimer: This is our option and does constitute a recommendation or financial advice. Do your own research. *
- Price
- 7
- Condition
- 5
- Location
- 7
- Land
- 6
- Bedrooms
- 2
- Bathrooms
- 1
The heatmap indicates the level of crime in the area. The color of the heatmap indicates the crime severity and recency.
Metrics Year-on-Year
- Average area value
- 422,000.00 £Decreased by 23.27 %
- Average area rental value
- 1,795.00 £/moDecreased by 7.81 %
- Est rental Yield
- 5.10 %Increased by 20.00 %
- Crime Rate
- 4.00 %Unchanged by 0.00 %
Agent Activity
Wilkinson Byrne created the listing.
Nearby Schools
| Name | Type | Ofsted | Distance |
|---|---|---|---|
| Bounds Green Junior School | Community School | Good | 0.36 KM |
| Bounds Green Children'S Centre | Children's Centre | 0.36 KM | |
| Bounds Green Infant School | Community School | Outstanding | 0.36 KM |
| Bowes Primary School | Academy Converter | 0.85 KM | |
| Bowes Children'S Centre | Children's Centre Linked Site | 0.85 KM |
Images
Nearby Streets
| Name | Average Price | Average Sqft | Distance |
|---|---|---|---|
| Eleanor Road | £ 634,000 | 0 | 0.00 KM |
| Alesia Close | £ 432,000 | 0 | 0.00 KM |
| Pottery Gate | £ 474,000 | 0 | 0.00 KM |
| Broomfield Road | £ 160,000 | 0 | 0.00 KM |
| Lloyd Thomas Court | £ 0 | 0 | 0.00 KM |
Nearby Transport
| Name | NLC | TLC | Distance |
|---|---|---|---|
| Bowes Park | 6027 | BOP | 0.08 KM |
| Alexandra Palace | 6025 | AAP | 1.08 KM |
| Palmers Green | 6021 | PAL | 1.68 KM |
| New Southgate | 6019 | NSG | 2.54 KM |
| Hornsey | 6015 | HRN | 2.56 KM |
Nearby Listings
| Address | Price | Type | Score | Distance |
|---|---|---|---|---|
| Richmond Road | £ 549,995 | BUY | 6 / 10 | 0.00 KM |
| Herbert Road, London, N11 | £ 675,000 | BUY | 7 / 10 | 0.06 KM |
| Queens Road, London, N11 | £ 635,000 | BUY | 7 / 10 | 0.08 KM |
| Queens Road, London, N11 | £ 650,000 | BUY | 7 / 10 | 0.09 KM |
| Queens Road, London | £ 650,000 | BUY | 7 / 10 | 0.09 KM |
Nearby Properties
| Address | Price | Distance |
|---|---|---|
| 32 Richmond Road | £ 618,000 | 0.00 KM |
| 8 Richmond Road | £ 85,500 | 0.00 KM |
| 23 Richmond Road | £ 135,000 | 0.00 KM |
| 40 Richmond Road | £ 320,000 | 0.00 KM |
| 37 Richmond Road | £ 560,000 | 0.00 KM |