Roach Grange Avenue, Kippax, Leeds
By Clubleys
£ 1,230,000
Reviews
2 out of 5 stars
Clubleys says ..
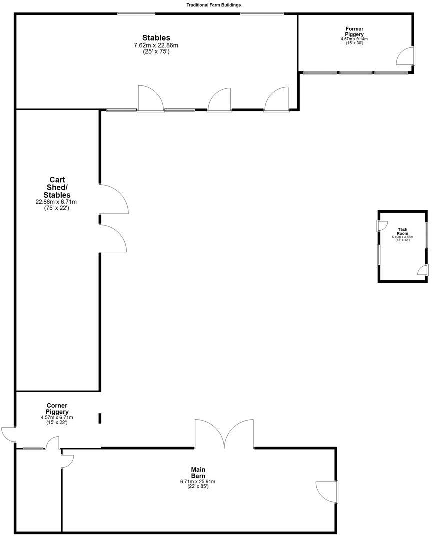
Roach Grange Farm includes a substantial 18th century farmhouse, a range of traditional and conventional buildings with planning potential, and grassland and woodland extending to 30.39 acres (12.30 hectares) in total. An imposing three-storey residence, set within 10.20 acres of ground...
Property Oracle says ..
This is a substantial country house located in Kippax, Leeds. The property offers a blend of traditional living with the potential for modernization and development. The main house appears to be in fair condition, while the outbuildings require significant renovation. The expansive land provides opportunities for various uses. However, the list price seems disproportionately high compared to local market values, warranting careful consideration and negotiation.
Therefore, we give this property 5 / 10. *Disclaimer: This is our option and does constitute a recommendation or financial advice. Do your own research. *
- Price
- 1
- Condition
- 5
- Location
- 6
- Land
- 9
- Bedrooms
- 5
- Bathrooms
- 1
The heatmap indicates the level of crime in the area. The color of the heatmap indicates the crime severity and recency.
Metrics Year-on-Year
- Average area value
- 488,600.00 £Decreased by 6.01 %
- Average area rental value
- 1,814.00 £/moIncreased by 6.02 %
- Est rental Yield
- 4.46 %Increased by 12.91 %
- Crime Rate
- 4.00 %Unchanged by 0.00 %
Agent Activity
Clubleys created the listing.
Nearby Schools
| Name | Type | Ofsted | Distance |
|---|---|---|---|
| Kippax Greenfield Primary School | Academy Converter | Requires improvement | 0.72 KM |
| Kippax Children'S Centre | Children's Centre | 0.72 KM | |
| Kippax North Primary School | Academy Converter | Good | 0.76 KM |
| Kippax Ash Tree Primary School | Academy Converter | Requires improvement | 1.23 KM |
| Ninelands Primary School | Foundation School | Good | 1.42 KM |
Images
Nearby Streets
| Name | Average Price | Average Sqft | Distance |
|---|---|---|---|
| Ash Grove Mount | £ 0 | 0 | 0.00 KM |
| Birch Road | £ 0 | 0 | 0.00 KM |
| Grange Lane | £ 0 | 0 | 0.00 KM |
| Windsor Close | £ 0 | 0 | 0.00 KM |
| Roach Hills | £ 200,000 | 0 | 0.00 KM |
Nearby Transport
| Name | NLC | TLC | Distance |
|---|---|---|---|
| East Garforth | 8472 | EGF | 1.73 KM |
| Garforth | 8474 | GRF | 2.39 KM |
| Micklefield | 8477 | MIK | 5.38 KM |
| Castleford | 8359 | CFD | 6.24 KM |
| Woodlesford | 8578 | WDS | 7.95 KM |
Nearby Listings
| Address | Price | Type | Score | Distance |
|---|---|---|---|---|
| Roach Grange Avenue, Kippax, Leeds | £ 1,230,000 | BUY | 5 / 10 | 0.00 KM |
| Moorgate Road, Kippax, Leeds | £ 250,000 | BUY | 7 / 10 | 0.10 KM |
| Moorgate Road, Leeds, LS25 | £ 250,000 | BUY | 6 / 10 | 0.21 KM |
| Calvert Close, Kippax, Leeds | £ 225,000 | BUY | 5 / 10 | 0.23 KM |
| Leeds Road, Kippax, Leeds | £ 265,000 | BUY | 8 / 10 | 0.24 KM |
Nearby Properties
| Address | Price | Distance |
|---|---|---|
| 10 Moorgate Road | £ 74,000 | 0.14 KM |
| 20 Moorgate Road | £ 130,000 | 0.14 KM |
| 14 Moorgate Road | £ 131,500 | 0.14 KM |
| 87 Moorgate Road | £ 155,000 | 0.17 KM |
| 143 Moorgate Road | £ 209,995 | 0.17 KM |