Garden Plot 2, Wellnage, Station Road, Duns, Berwickshire, TD11
By EDWIN THOMPSON
£ 110,000
Reviews
2 out of 5 stars
EDWIN THOMPSON says ..
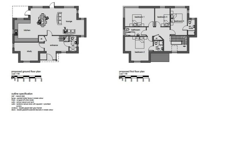
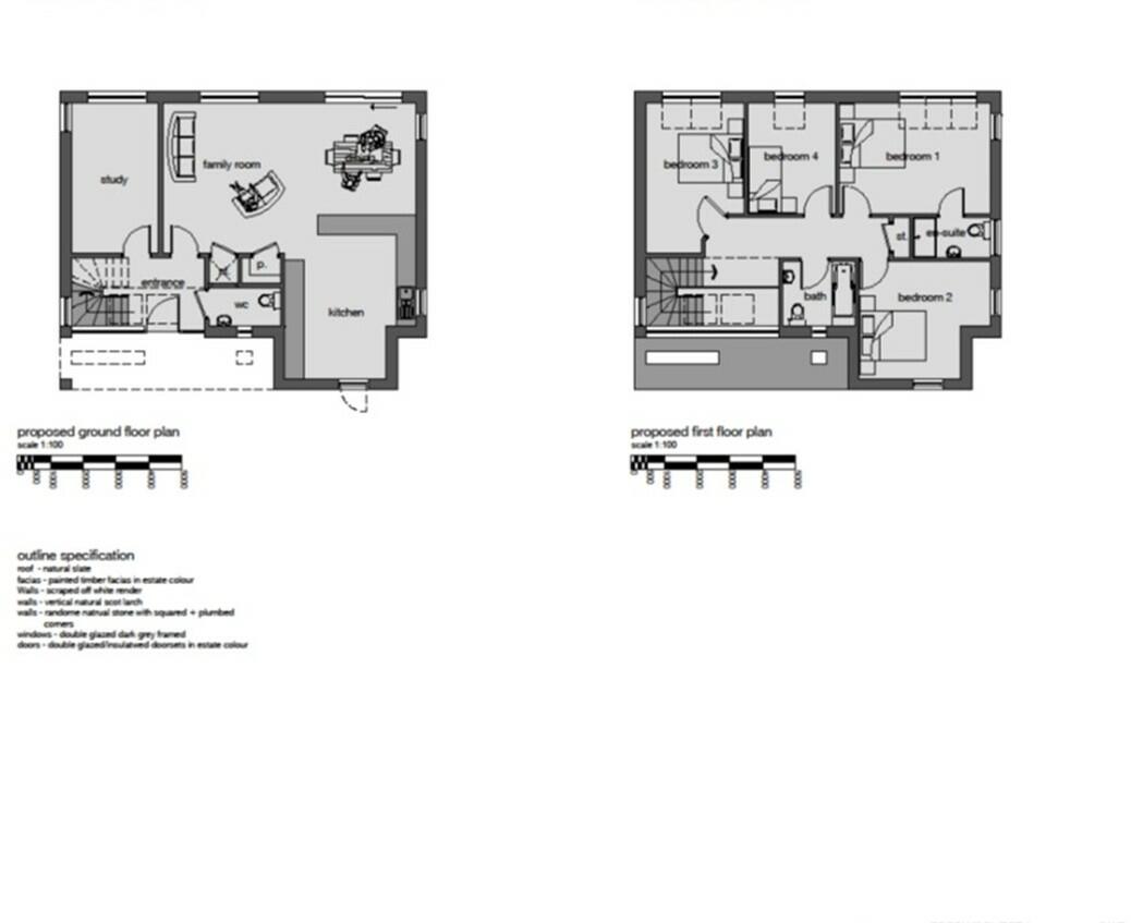
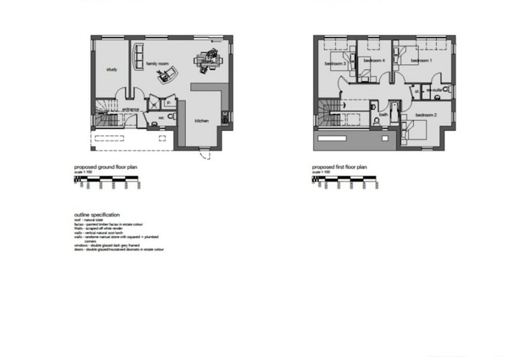
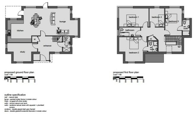
For Sale: Residential Building Plot - Garden Plot 2, Wellnage, Station Road, Duns, TD11 3EJEast Facing Position, Tarmacadam Access, In Situ Views Toward Parkland, Generous Plot Size.Offers Over £110,000
Property Oracle says ..
This listing presents a building plot in Duns, Scottish Borders. The property is undeveloped land, ready for the construction of a new house. The site plans and architectural drawings provide details of a proposed two-story home, with multiple bedrooms, a family room, and a study. The images show a relatively large plot of land, situated on Station Road, offering an east-facing position with views of parkland. The surrounding area appears established, with existing houses of varying styles. A lack of explicit details regarding the plot’s exact square footage prevents precise calculation of price per square foot, making direct comparisons with nearby properties challenging. However, the listed price of £110,000 is consistent with other building plots in the area. The proximity to other streets with higher average property values adds to the desirability of this location, suggesting a reasonable price for a development project. The images suggest a tranquil, parkland setting with a convenient road access. Buyers should independently verify the plot’s precise size, access rights, and any planning permissions before proceeding with a purchase.
Therefore, we give this property 5 / 10. *Disclaimer: This is our option and does constitute a recommendation or financial advice. Do your own research. *
- Price
- 7
- Condition
- 1
- Location
- 6
- Land
- 7
- Bedrooms
- 0
- Bathrooms
- 0
- Sqft (est)
- 1,100.00
The heatmap indicates the level of crime in the area. The color of the heatmap indicates the crime severity and recency.
Metrics Year-on-Year
- Average area value
- 376,133.00 £Increased by 50.19 %
- Est sale value
- 701,800.00 £Increased by 131.16 %
- Average area rental value
- 1,250.00 £/moIncreased by 20.42 %
- Est letting value
- 2,200.00 £/moIncreased by 100.00 %
- Est rental Yield
- 3.99 %Decreased by 19.72 %
- Crime Rate
- 0.00 %
Agent Activity
EDWIN THOMPSON created the listing.
Images
Nearby Streets
| Name | Average Price | Average Sqft | Distance |
|---|---|---|---|
| Trinity Lane | £ 0 | 0 | 0.00 KM |
| Murray Crescent | £ 0 | 0 | 0.00 KM |
| Malt Wynd | £ 132,000 | 0 | 0.00 KM |
| Golden Square | £ 165,000 | 0 | 0.00 KM |
| Norris Close | £ 105,000 | 0 | 0.00 KM |
Nearby Listings
| Address | Price | Type | Score | Distance |
|---|---|---|---|---|
| Garden Plot 1, Wellnage, Station Road, Duns, Berwickshire, TD11 | £ 110,000 | BUY | 5 / 10 | 0.00 KM |
| Garden Plot 2, Wellnage, Station Road, Duns, Berwickshire, TD11 | £ 110,000 | BUY | 5 / 10 | 0.00 KM |
| 2 Wellnage Myre, Station Road, Duns, TD11 3FP | £ 485,000 | BUY | 8 / 10 | 0.15 KM |
| Trinity Park, Duns, Berwickshire, TD11 | £ 255,000 | BUY | Unknown | 0.24 KM |
| 18/3 Bridgend, Duns TD11 3ER | £ 110,000 | BUY | 5 / 10 | 0.41 KM |