Eastbrook Road, Waltham Abbey, EN9
By Coultons
£ 410,000
Reviews
3 out of 5 stars
Coultons says ..
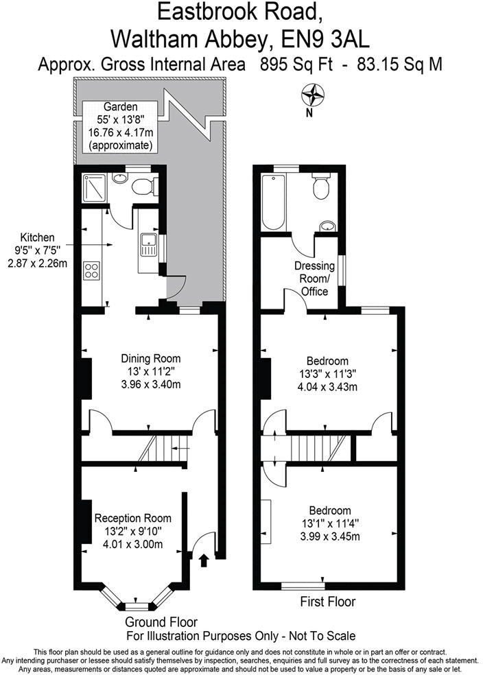
Nestled on the charming Eastbrook Road in Waltham Abbey, this delightful Victorian terraced house offers a perfect blend of character and modern living. The property benefits from two double bedrooms, two receptions rooms, a new modern fitted kitchen and a ground floor shower room. From the rear ...
Property Oracle says ..
This property is a 2 bedroom, 1 bathroom terraced house located in Waltham Abbey, Essex. The property has recently been renovated to a good standard, with a modern kitchen and bathroom. The flooring appears new throughout. The property benefits from a small rear garden. While the list price is slightly above the average price per square foot for the area, the recent renovations and good condition may justify this. The location is convenient, with several schools and transportation links nearby.
Therefore, we give this property 6 / 10. *Disclaimer: This is our option and does constitute a recommendation or financial advice. Do your own research. *
- Price
- 7
- Condition
- 9
- Location
- 7
- Land
- 4
- Bedrooms
- 2
- Bathrooms
- 1
- Sqft (est)
- 895.02
The heatmap indicates the level of crime in the area. The color of the heatmap indicates the crime severity and recency.
Metrics Year-on-Year
- Average area value
- 416,740.00 £Increased by 13.45 %
- Est sale value
- 420,659.40 £Increased by 37.03 %
- Average area rental value
- 1,435.00 £/moDecreased by 27.89 %
- Est letting value
- 895.02 £/moUnchanged by 0.00 %
- Est rental Yield
- 4.13 %Decreased by 36.46 %
- Crime Rate
- 1.00 %Unchanged by 0.00 %
Agent Activity
Coultons created the listing.
Nearby Schools
| Name | Type | Ofsted | Distance |
|---|---|---|---|
| Waltham Holy Cross Primary Academy | Academy Sponsor Led | 0.57 KM | |
| King Harold Business & Enterprise Academy | Academy Converter | Good | 0.58 KM |
| Leverton Primary School | Foundation School | Good | 1.03 KM |
| Epp1 Hazelwood Family Hub Delivery Site | Children's Centre Linked Site | 1.27 KM | |
| Hillhouse Cofe Primary School | Academy Converter | 1.37 KM |
Images
Nearby Streets
| Name | Average Price | Average Sqft | Distance |
|---|---|---|---|
| Cypress Close | £ 0 | 0 | 0.00 KM |
| Drayson Close | £ 475,000 | 0 | 0.00 KM |
| Elm Close | £ 525,000 | 0 | 0.00 KM |
| Manor Road | £ 450,000 | 0 | 0.00 KM |
| Brookside | £ 0 | 0 | 0.00 KM |
Nearby Transport
| Name | NLC | TLC | Distance |
|---|---|---|---|
| Waltham Cross | 6823 | WLC | 4.08 KM |
| Cheshunt | 6814 | CHN | 4.17 KM |
| Enfield Lock | 6815 | ENL | 4.66 KM |
| Theobalds Grove | 6949 | TEO | 5.02 KM |
| Brimsdown | 6810 | BMD | 5.75 KM |
Nearby Listings
| Address | Price | Type | Score | Distance |
|---|---|---|---|---|
| Eastbrook Road, Waltham Abbey, Essex, EN9 | £ 395,000 | BUY | 7 / 10 | 0.04 KM |
| Waltham Abbey, Loughton, EN9 | £ 280,000 | BUY | 7 / 10 | 0.06 KM |
| Eastbrook Road, Essex, EN9 | £ 380,000 | BUY | Unknown | 0.08 KM |
| Eastbrook Road, Waltham Abbey, EN9 | £ 385,000 | BUY | 7 / 10 | 0.08 KM |
| Eastbrook Road, Waltham Abbey, EN9 | £ 399,995 | BUY | 6 / 10 | 0.08 KM |
Nearby Properties
| Address | Price | Distance |
|---|---|---|
| 4 Broomstick Hall Road | £ 160,000 | 0.06 KM |
| 2 Broomstick Hall Road | £ 350,000 | 0.06 KM |
| 13 Honey Lane | £ 220,000 | 0.06 KM |
| 7 Honey Lane | £ 340,000 | 0.06 KM |
| 5a Honey Lane | £ 255,000 | 0.06 KM |