Holland Road, London NW10
MI

Holland Road, London NW10

By mile...

£ 600,000

Reviews

4 out of 5 stars

mile... says ..

Welcome to Holland Road; stunning two bedroom garden apartment on this great road

Property Oracle says ..

The property is located in Kensal Green, Brent, which is a desirable area in North West London. The area benefits from being relatively close to several transport links including Willesden Junction (London Overground) and Kensal Green (London Underground), making it convenient for commuters. The presence of several well-regarded schools nearby, such as Capital City Academy and Newman Catholic College, adds to the area’s family-friendly appeal.

Based on the provided photos, the property appears to be in good condition. The interior has been recently renovated or updated, featuring a modern kitchen and bathroom. The finishes are of good quality and the property presents well.

The property includes a garden, which is a significant advantage in a densely populated urban area like London. The garden appears to be of a reasonable size for a property of this type.

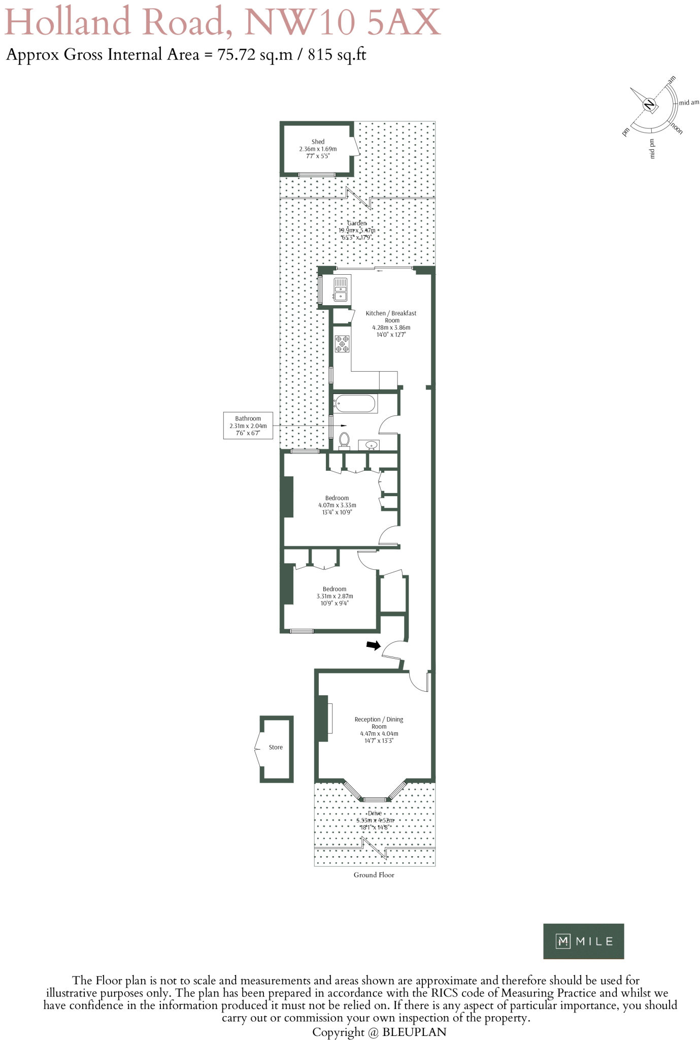
The list price of £600,000 is slightly below the average price for the area (£690,826). However, the average property size in the area is 1,079 sqft, significantly larger than the 815.04 sqft of this property. Considering the smaller size and the fact that the average price per sqft in the area is £640, the list price appears to be reasonably priced, especially given the property’s renovated condition and inclusion of a garden. Further analysis would benefit from more information on comparable properties in the immediate vicinity. The lack of plot size information in the listing also hinders a full assessment of the land value.

Therefore, we give this property 8 / 10. *Disclaimer: This is our option and does constitute a recommendation or financial advice. Do your own research. *

Price
8
Condition
8
Location
9
Land
7
Bedrooms
2
Bathrooms
1
Sqft (est)
815.04

The heatmap indicates the level of crime in the area. The color of the heatmap indicates the crime severity and recency.

Metrics Year-on-Year

Average area value
745,000.00 £
Decreased by 11.71 %
from 843,775.00 £
Est sale value
623,505.60 £
Decreased by 15.09 %
from 734,351.04 £
Average area rental value
2,378.00 £/mo
Increased by 14.49 %
from 2,077.00 £/mo
Est letting value
1,630.08 £/mo
Unchanged by 0.00 %
from 1,630.08 £/mo
Est rental Yield
3.83 %
Increased by 29.83 %
from 2.95 %
Crime Rate
2.00 %
Unchanged by 0.00 %
from 2.00 %

Agent Activity

  • mile... created the listing.

Nearby Schools

NameTypeOfstedDistance
Capital City AcademyAcademy Sponsor LedGood0.24 KM
Newman Catholic CollegeVoluntary Aided SchoolGood0.37 KM
Treetops Children'S CentreChildren's Centre0.39 KM
Furness Primary SchoolAcademy ConverterGood0.50 KM
Roundwood School And Community CentreFree Schools Alternative Provision0.55 KM

Images

157a Holland Road... 157a Holland Road... 157a Holland Road... 157a Holland Road... 157a Holland Road... 157a Holland Road... 157a Holland Road... 157a Holland Road... 157a Holland Road... 157a Holland Road... 157a Holland Road... 157a Holland Road... 157a Holland Road... 157a Holland Road... 157a Holland Road... 157a Holland Road... 157a Holland Road...

Nearby Streets

NameAverage PriceAverage SqftDistance
Wrottesley Road £ 000.00 KM
Wrottesley Road £ 000.00 KM
Wrottesley Road £ 000.00 KM
Wrottesley Road £ 000.00 KM
Wrottesley Road £ 000.00 KM

Nearby Transport

NameNLCTLCDistance
Willesden Junction1457WIJ1.10 KM
Kensal Green1447KNL1.40 KM
Kensal Rise1448KNR1.78 KM
Harlesden1521HDN2.42 KM
Brondesbury Park1438BSP2.87 KM

Nearby Listings

AddressPriceTypeScoreDistance
Holland Road, London NW10 £ 600,000BUY8 / 100.00 KM
Holland Road, Queen's Park £ 650,000BUY6 / 100.03 KM
Holland Road, London, NW10 £ 290,000BUYUnknown0.04 KM
Holland Road, London, NW10 £ 1,100,000BUY6 / 100.06 KM
Holland Road, Kensal Heights NW10 £ 415,000BUY5 / 100.06 KM

Nearby Properties

AddressPriceDistance
191 Holland Road £ 378,0000.04 KM
175a Holland Road £ 190,0000.04 KM
145b Holland Road £ 60,0000.04 KM
181 Holland Road £ 1,350,0000.04 KM
163b Holland Road £ 490,0000.04 KM