Harcourt Road, Bracknell, Berkshire, RG12
By Hat and Home
£ 415,000
Reviews
3 out of 5 stars
Hat and Home says ..
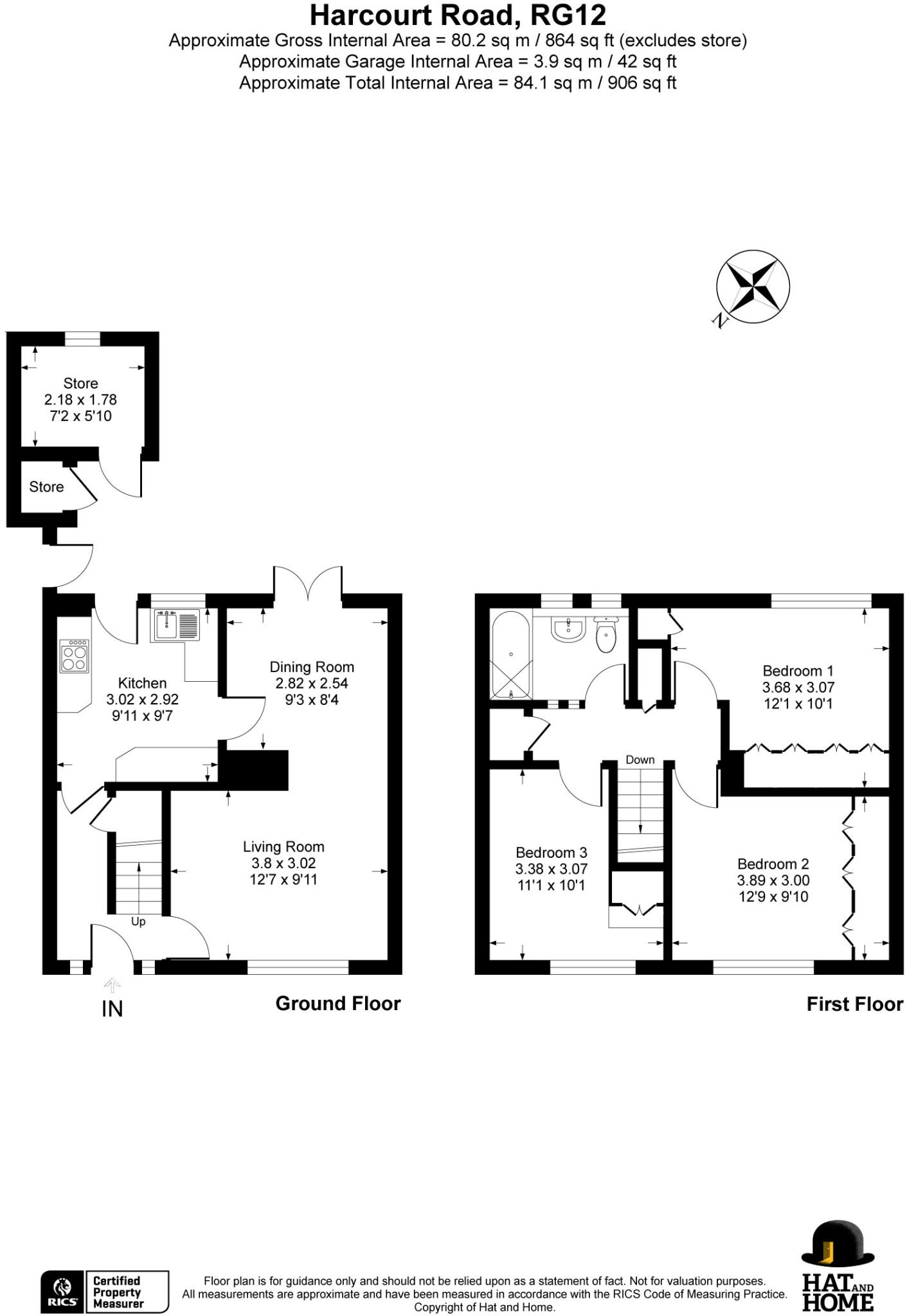
A spacious three bedroom, family home located in a quiet position. This property benefits from great sized bedrooms, open plan kitchen diner and private garden.
Property Oracle says ..
This three-bedroom terraced house in Bracknell is listed at £415,000. The property benefits from a good location, close to local schools and transportation links. The average house price in the area is £378,333, and the average price per square foot is £385. While the property itself appears to be in good condition and has a garden, the lack of plot size information in the listing prevents a precise land assessment. The list price is slightly above the average for the area, but comparable properties on Harcourt Road are similarly priced. More information on the property size would be beneficial to fully assess the value for money.
Therefore, we give this property 7 / 10. *Disclaimer: This is our option and does constitute a recommendation or financial advice. Do your own research. *
- Price
- 7
- Condition
- 8
- Location
- 9
- Land
- 7
- Bedrooms
- 3
- Bathrooms
- 1
- Sqft (est)
- 863.27
The heatmap indicates the level of crime in the area. The color of the heatmap indicates the crime severity and recency.
Metrics Year-on-Year
- Average area value
- 260,000.00 £Decreased by 33.37 %
- Est sale value
- 429,045.19 £Increased by 19.47 %
- Average area rental value
- 1,598.00 £/moDecreased by 1.84 %
- Est letting value
- 2,589.81 £/moIncreased by 200.00 %
- Est rental Yield
- 7.38 %Increased by 47.31 %
- Crime Rate
- 4.00 %Unchanged by 0.00 %
Agent Activity
Hat and Home marked this listing as sold.
Hat and Home created the listing.
Nearby Schools
| Name | Type | Ofsted | Distance |
|---|---|---|---|
| Fox Hill Primary School | Community School | Good | 0.32 KM |
| Rowans And Sycamores Children'S Centre | Children's Centre | 0.39 KM | |
| The Brakenhale School | Academy Sponsor Led | Good | 0.78 KM |
| St Michael'S Easthampstead Church Of England Voluntary Aided Primary School | Voluntary Aided School | Good | 0.94 KM |
| Birch Hill Primary School | Community School | Good | 1.09 KM |
Images
Nearby Streets
| Name | Average Price | Average Sqft | Distance |
|---|---|---|---|
| Rainforest Walk | £ 0 | 0 | 0.00 KM |
| Bagshot Road | £ 296,000 | 0 | 0.00 KM |
| Bagshot Road | £ 0 | 0 | 0.00 KM |
| Sports Centre Roundabout | £ 0 | 0 | 0.00 KM |
| A322 | £ 0 | 0 | 0.00 KM |
Nearby Transport
| Name | NLC | TLC | Distance |
|---|---|---|---|
| Bracknell | 5693 | BCE | 1.43 KM |
| Martins Heron | 5692 | MAO | 3.06 KM |
| Camberley | 5682 | CAM | 7.16 KM |
| Bagshot | 5681 | BAG | 7.99 KM |
| Blackwater | 5625 | BAW | 8.15 KM |
Nearby Listings
| Address | Price | Type | Score | Distance |
|---|---|---|---|---|
| Harcourt Road, Bracknell, Berkshire, RG12 | £ 415,000 | BUY | 7 / 10 | 0.00 KM |
| Harcourt Road, Bracknell, Berkshire, RG12 | £ 475,000 | BUY | 7 / 10 | 0.05 KM |
| Balfour Crescent, Bracknell, Berkshire | £ 400,000 | BUY | 6 / 10 | 0.11 KM |
| Lemington Grove, Bracknell, Berkshire, RG12 | £ 465,000 | BUY | 7 / 10 | 0.14 KM |
| Manston Drive, Bracknell, Berkshire | £ 350,000 | BUY | 6 / 10 | 0.15 KM |
Nearby Properties
| Address | Price | Distance |
|---|---|---|
| 11 Harcourt Road | £ 385,000 | 0.03 KM |
| 19 Harcourt Road | £ 297,500 | 0.03 KM |
| 21 Harcourt Road | £ 308,000 | 0.03 KM |
| 1 Harcourt Road | £ 282,000 | 0.03 KM |
| 11 Jackson Close | £ 310,000 | 0.04 KM |