Cumnor Village, Oxford, OX2
CH

Cumnor Village, Oxford, OX2

By Chancellors

£ 700,000

Reviews

3 out of 5 stars

Chancellors says ..

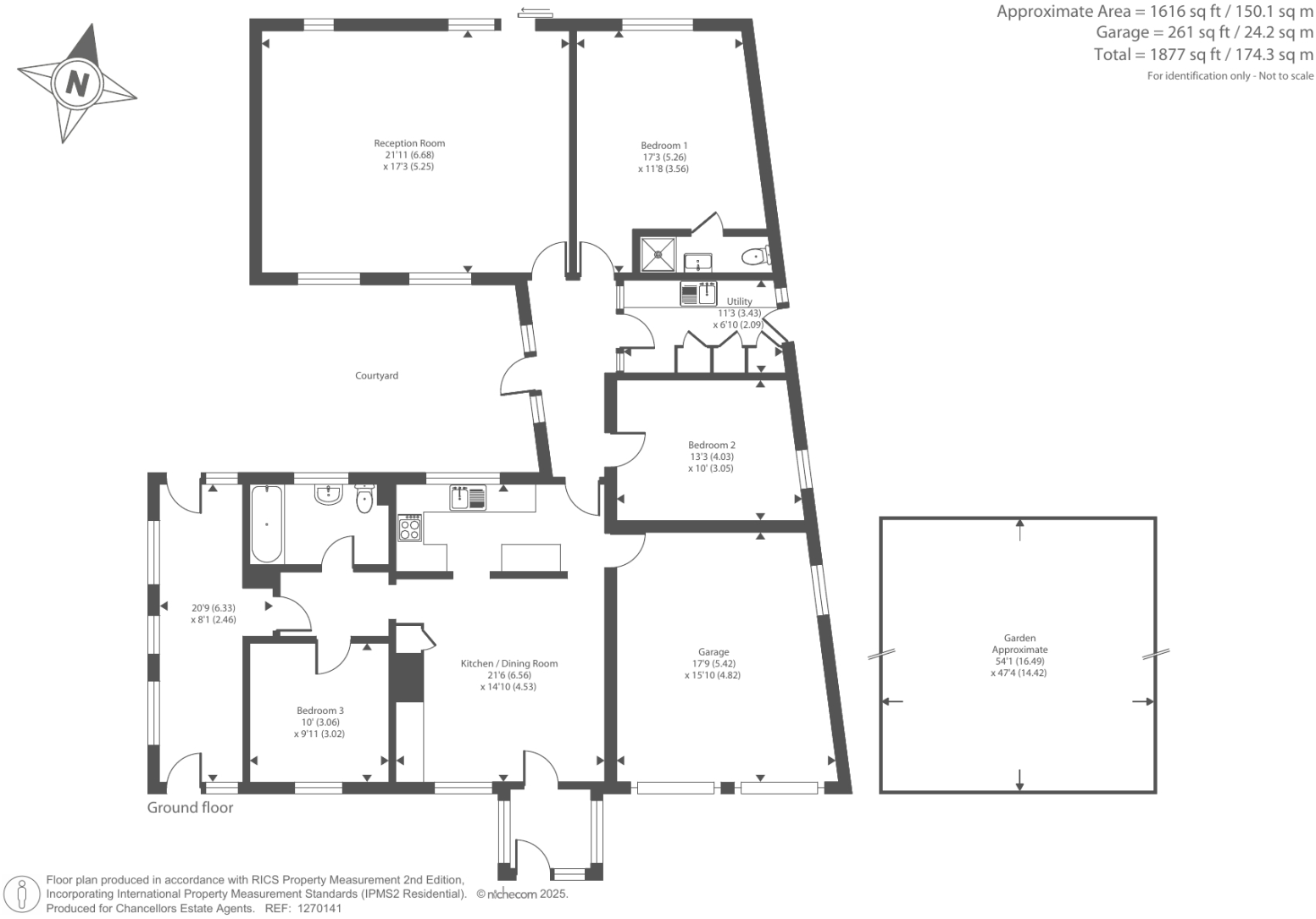
An opportunity to purchase a detached bungalow offering approximately 1,900 sq ft of lateral accommodation. The property would benefit from cosmetic improvement and offers the buyer the scope to create a spectacular home.

Property Oracle says ..

Cumnor is a desirable village location close to Oxford, benefiting from good schools and transport links. The property itself is a detached bungalow offering a good amount of space at 4,107.10 sqft. The plot size of 1,877 sqft provides a garden area, though the images suggest it requires some attention. The interior appears dated and in need of modernisation. While the list price of £700,000 is below the average price for the area (£739,211), the average price per sqft is significantly higher (£286) than what this property offers given its condition. The lack of sqft data for comparable properties makes a precise price comparison difficult, however, several nearby properties are listed at a higher price point, suggesting the property may be underpriced, especially considering the size of the property. However, the need for modernisation should be factored into any valuation.

Therefore, we give this property 6 / 10. *Disclaimer: This is our option and does constitute a recommendation or financial advice. Do your own research. *

Price
7
Condition
4
Location
9
Land
6
Bedrooms
3
Bathrooms
2
Sqft (est)
4,107.10
Lot (est)
1,877.00

The heatmap indicates the level of crime in the area. The color of the heatmap indicates the crime severity and recency.

Metrics Year-on-Year

Average area value
642,136.00 £
Increased by 1.16 %
from 634,779.00 £
Est sale value
1,934,444.10 £
Increased by 3.29 %
from 1,872,837.60 £
Average area rental value
1,750.00 £/mo
Decreased by 17.26 %
from 2,115.00 £/mo
Est letting value
4,107.10 £/mo
Unchanged by 0.00 %
from 4,107.10 £/mo
Est rental Yield
3.27 %
Decreased by 18.25 %
from 4.00 %
Crime Rate
51.00 %
Unchanged by 0.00 %
from 51.00 %

Agent Activity

  • Chancellors created the listing.

Nearby Schools

NameTypeOfstedDistance
Cumnor Church Of England School (Voluntary Controlled)Voluntary Controlled SchoolGood0.83 KM
Appleton Church Of England (A) Primary SchoolVoluntary Aided SchoolOutstanding3.64 KM
Matthew Arnold SchoolAcademy ConverterGood3.98 KM
Wootton St Peter'S Church Of England Primary SchoolVoluntary Aided SchoolGood3.99 KM
Dry Sandford Primary SchoolCommunity SchoolGood4.24 KM

Images

External Front Reception Room Reception Room Reception Room Dining Room Dining Room Dining Room Kitchen Utility Room Bedroom Bedroom Bedroom Bedroom Bedroom Bedroom Bathroom Bathroom External Grounds Inner Courtyard Garden External Rear External Rear

Nearby Streets

NameAverage PriceAverage SqftDistance
High Street £ 575,00000.00 KM
Denman's Lane £ 000.00 KM
The Park £ 000.00 KM
Abingdon Road £ 1,645,00000.00 KM
Caps Lodge £ 000.00 KM

Nearby Transport

NameNLCTLCDistance
Oxford3115OXF7.75 KM

Nearby Listings

AddressPriceTypeScoreDistance
Cumnor Village, Oxford, OX2 £ 700,000BUY6 / 100.00 KM
Tumbledown, Cumnor, OX2 £ 1,450,000BUY7 / 100.26 KM
Appleton Road, Cumnor, OX2 £ 450,000BUY6 / 100.37 KM
Cumnor Village, Oxford, OX2 £ 1,250,000BUYUnknown0.40 KM
Appleton Road, Cumnor, OX2 £ 575,000BUY6 / 100.43 KM

Nearby Properties

AddressPriceDistance
62 High Street £ 650,0000.12 KM
38 Leys Road £ 810,0000.29 KM
16 Leys Road £ 164,9500.29 KM
40 Leys Road £ 390,0000.33 KM
18 Leys Road £ 1,150,0000.33 KM