Millers Road, Brighton, BN1 5NQ
By Jacobs Steel
£ 350,000
Reviews
3 out of 5 stars
Jacobs Steel says ..
New Lease l Close to Mainline Stations l No Chain l Bay Fronted Living Room l Kitchen / Diner l Two Double Bedrooms l Maisonette l Great Views
Property Oracle says ..
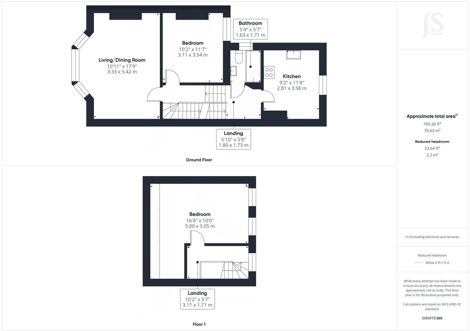
The property is a 2-bedroom flat with 1 bathroom, spanning 760.26 sqft. It is located in the Withdean area of Brighton, East Sussex, close to well-regarded schools and convenient transport links. The interior appears recently renovated or modern, clean, bright, and in good condition. However, the asking price of £350,000 seems relatively low compared to the area average of £726,796 and average price per sqft of £556, possibly due to the lack of outdoor space or the fact it is a flat. Further investigation into comparable properties is needed to fully assess the value.
Therefore, we give this property 6 / 10. *Disclaimer: This is our option and does constitute a recommendation or financial advice. Do your own research. *
- Price
- 7
- Condition
- 9
- Location
- 8
- Land
- 1
- Bedrooms
- 2
- Bathrooms
- 1
- Sqft (est)
- 760.26
The heatmap indicates the level of crime in the area. The color of the heatmap indicates the crime severity and recency.
Metrics Year-on-Year
- Average area value
- 564,925.00 £Decreased by 12.97 %
- Est sale value
- 518,497.32 £Increased by 65.53 %
- Average area rental value
- 1,752.00 £/moIncreased by 7.35 %
- Est letting value
- 1,520.52 £/moIncreased by 100.00 %
- Est rental Yield
- 3.72 %Increased by 23.18 %
- Crime Rate
- 1.00 %Unchanged by 0.00 %
Agent Activity
Jacobs Steel created the listing.
Nearby Schools
| Name | Type | Ofsted | Distance |
|---|---|---|---|
| Stanford Infant School | Community School | Outstanding | 0.32 KM |
| Windlesham School | Other Independent School | 0.42 KM | |
| Cardinal Newman Catholic School | Voluntary Aided School | Good | 0.61 KM |
| Lancing College Preparatory School At Hove | Other Independent School | 0.73 KM | |
| Brighton Hove And Sussex Sixth Form College | Further Education | Outstanding | 0.74 KM |
Images
Nearby Streets
| Name | Average Price | Average Sqft | Distance |
|---|---|---|---|
| Front Road | £ 0 | 0 | 0.00 KM |
| Dyke Road | £ 900,000 | 0 | 0.00 KM |
| Burton Walk | £ 0 | 0 | 0.00 KM |
| Belmont | £ 220,000 | 0 | 0.00 KM |
| The Approach | £ 0 | 0 | 0.00 KM |
Nearby Transport
| Name | NLC | TLC | Distance |
|---|---|---|---|
| Preston Park | 5285 | PRP | 0.65 KM |
| Brighton | 5268 | BTN | 1.85 KM |
| London Road (Brighton) | 5281 | LRB | 1.92 KM |
| Hove | 5273 | HOV | 1.99 KM |
| Aldrington | 5280 | AGT | 3.38 KM |
Nearby Listings
| Address | Price | Type | Score | Distance |
|---|---|---|---|---|
| Millers Road, Brighton, BN1 5NQ | £ 350,000 | BUY | 6 / 10 | 0.00 KM |
| Millers Road, Brighton, BN1 | £ 700,000 | BUY | 8 / 10 | 0.00 KM |
| Millers Road, Brighton, East Sussex | £ 290,000 | BUY | Unknown | 0.01 KM |
| Millers Road, Brighton | £ 225,000 | BUY | Unknown | 0.02 KM |
| Millers Road, Brighton, BN1 | £ 300,000 | BUY | 6 / 10 | 0.03 KM |
Nearby Properties
| Address | Price | Distance |
|---|---|---|
| 79 Millers Road | £ 237,300 | 0.02 KM |
| 73a Millers Road | £ 218,750 | 0.02 KM |
| 67 Millers Road | £ 232,000 | 0.02 KM |
| 91 Millers Road | £ 133,000 | 0.02 KM |
| 97 Millers Road | £ 455,000 | 0.02 KM |