Willesden Lane, London, NW6
By Charles David Casson
£ 450,000
Reviews
3 out of 5 stars
Charles David Casson says ..
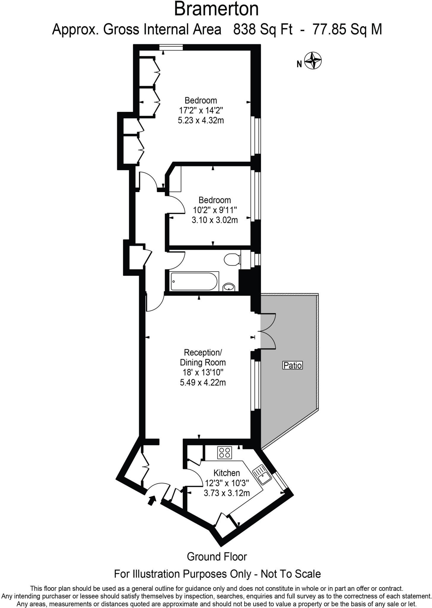
Inviting and generous in size, this two-bedroom ground floor apartment boasts great lateral living space with direct access to a private patio and peaceful communal gardens
Property Oracle says ..
This is a two-bedroom apartment located on Willesden Lane in Brondesbury Park, London. The property is in good condition, with a modern kitchen and bathroom. It benefits from a communal garden. The location is convenient, with access to local amenities, schools, and transportation links. The asking price of £450,000 appears reasonable for the area and the property’s characteristics. The apartment would suit a small family or a professional couple.
Therefore, we give this property 7 / 10. *Disclaimer: This is our option and does constitute a recommendation or financial advice. Do your own research. *
- Price
- 7
- Condition
- 8
- Location
- 7
- Land
- 6
- Bedrooms
- 2
- Bathrooms
- 1
- Sqft (est)
- 701.65
The heatmap indicates the level of crime in the area. The color of the heatmap indicates the crime severity and recency.
Metrics Year-on-Year
- Average area value
- 1,271,106.00 £Increased by 17.70 %
- Est sale value
- 531,850.70 £Decreased by 2.32 %
- Average area rental value
- 2,659.00 £/moDecreased by 6.47 %
- Est letting value
- 701.65 £/moDecreased by 50.00 %
- Est rental Yield
- 2.51 %Decreased by 20.57 %
- Crime Rate
- 3.00 %Unchanged by 0.00 %
Agent Activity
Charles David Casson created the listing.
Nearby Schools
| Name | Type | Ofsted | Distance |
|---|---|---|---|
| Malorees Junior School | Foundation School | Good | 0.42 KM |
| Brondesbury College London | Other Independent School | Outstanding | 0.45 KM |
| North West London Jewish Day School | Academy Converter | Good | 0.46 KM |
| Malorees Infant School | Community School | Good | 0.47 KM |
| Queens Park Community School | Academy Converter | Good | 0.66 KM |
Images
Nearby Streets
| Name | Average Price | Average Sqft | Distance |
|---|---|---|---|
| Brondesbury Park | £ 0 | 0 | 0.00 KM |
| Brondesbury Park | £ 2,583,333 | 0 | 0.00 KM |
| Clovelly Court | £ 0 | 0 | 0.00 KM |
| Mapesbury Road | £ 0 | 0 | 0.00 KM |
| Carlisle Road | £ 0 | 0 | 0.00 KM |
Nearby Transport
| Name | NLC | TLC | Distance |
|---|---|---|---|
| Brondesbury Park | 1438 | BSP | 0.78 KM |
| Kensal Rise | 1448 | KNR | 1.31 KM |
| Brondesbury | 1437 | BSY | 1.44 KM |
| Cricklewood | 1519 | CRI | 1.48 KM |
| Queens Park (London) | 1419 | QPW | 1.71 KM |
Nearby Listings
| Address | Price | Type | Score | Distance |
|---|---|---|---|---|
| Willesden Lane, NW6 | £ 465,000 | BUY | 7 / 10 | 0.00 KM |
| Willesden Lane, London, NW6 | £ 450,000 | BUY | 7 / 10 | 0.00 KM |
| Willesden Lane, NW6 | £ 450,000 | BUY | 7 / 10 | 0.00 KM |
| Willesden Lane, Brondesbury Park | £ 500,000 | BUY | Unknown | 0.02 KM |
| The Octave, Willesden Lane, Brondesbury, NW6 | £ 1,025,000 | BUY | 8 / 10 | 0.08 KM |
Nearby Properties
| Address | Price | Distance |
|---|---|---|
| 55 Brondesbury Park | £ 2,400,000 | 0.12 KM |
| 57 Brondesbury Park | £ 1,100,000 | 0.12 KM |
| 1 Cavendish Place | £ 1,350,001 | 0.16 KM |
| 3 Cavendish Place | £ 1,500,000 | 0.16 KM |
| 76 Chatsworth Road | £ 2,500,000 | 0.19 KM |