Max 25 says ..
A charming Grade II listed Georgian townhouse set in the heart of Dorchester. This beautifully presented three-storey home is full of character with flagstone floors, sash windows and feature fireplaces, complemented by modern touches including a stylish kitchen with skylights, log burner and ...
Property Oracle says ..
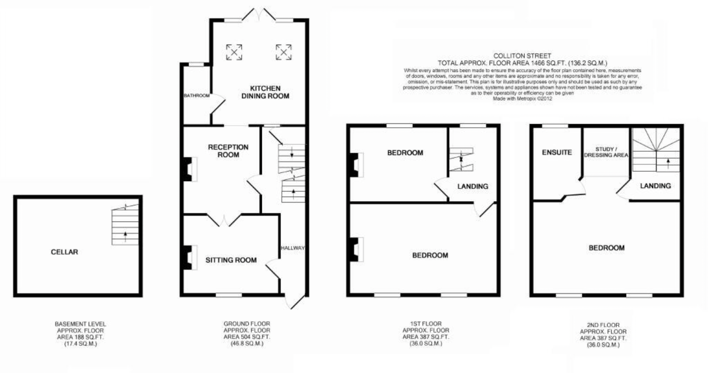
This is a spacious terraced property located on Colliton Street in Dorchester West. The house features three bedrooms and two bathrooms, with a total square footage of 1,466 sqft. A large garden provides ample outdoor space. The property is conveniently located near local amenities, transportation options, and schools. While the property appears to be in generally good condition, some areas may benefit from modernization. The asking price is above the average for the area, but the property offers significantly more space than comparable listings.
Therefore, we give this property 7 / 10. *Disclaimer: This is our option and does constitute a recommendation or financial advice. Do your own research. *
- Price
- 6
- Condition
- 7
- Location
- 7
- Land
- 8
- Bedrooms
- 3
- Bathrooms
- 2
- Sqft (est)
- 1,466.00
The heatmap indicates the level of crime in the area. The color of the heatmap indicates the crime severity and recency.
Metrics Year-on-Year
- Average area value
- 345,000.00 £Increased by 3.53 %
- Est sale value
- 775,514.00 £Increased by 83.68 %
- Average area rental value
- 1,073.00 £/moDecreased by 14.71 %
- Est letting value
- 1,466.00 £/moUnchanged by 0.00 %
- Est rental Yield
- 3.73 %Decreased by 17.66 %
- Crime Rate
- 43.00 %Unchanged by 0.00 %
Agent Activity
Max 25 created the listing.
Nearby Schools
| Name | Type | Ofsted | Distance |
|---|---|---|---|
| Sunninghill Preparatory School | Other Independent School | 0.74 KM | |
| St Mary'S Catholic First School, Dorchester | Academy Converter | Good | 1.29 KM |
| St Osmund'S Church Of England Middle School | Academy Converter | 1.42 KM | |
| Dorchester Middle School | Academy Converter | Requires improvement | 1.47 KM |
| Manor Park Church Of England First School | Voluntary Controlled School | Good | 1.60 KM |
Images
Nearby Streets
| Name | Average Price | Average Sqft | Distance |
|---|---|---|---|
| Acland Road | £ 0 | 0 | 0.00 KM |
| South Walks | £ 210,000 | 0 | 0.00 KM |
| Bowling Alley Walk | £ 300,000 | 0 | 0.00 KM |
| Channons Court | £ 320,000 | 0 | 0.00 KM |
| School Lane | £ 0 | 0 | 0.00 KM |
Nearby Transport
| Name | NLC | TLC | Distance |
|---|---|---|---|
| Dorchester West | 5962 | DCW | 0.77 KM |
| Dorchester South | 5961 | DCH | 0.77 KM |
| Upwey | 5967 | UPW | 8.17 KM |
Nearby Listings
| Address | Price | Type | Score | Distance |
|---|---|---|---|---|
| Colliton Street, Dorchester DT1 | £ 160,000 | BUY | 6 / 10 | 0.00 KM |
| Colliton Street, Dorchester | £ 425,000 | BUY | 7 / 10 | 0.00 KM |
| Colliton Street, Dorchester | £ 325,000 | BUY | 7 / 10 | 0.01 KM |
| Trinity Cottages, Dorchester | £ 260,000 | BUY | 5 / 10 | 0.04 KM |
| Trinity Cottages, Grey School Passage, Dorchester | £ 375,000 | BUY | 6 / 10 | 0.05 KM |
Nearby Properties
| Address | Price | Distance |
|---|---|---|
| 21 Colliton Street | £ 77,000 | 0.01 KM |
| 43 Colliton Street | £ 245,000 | 0.01 KM |
| 1 Colliton Street | £ 179,000 | 0.01 KM |
| 46 Colliton Street | £ 175,000 | 0.01 KM |
| 26 Colliton Street | £ 200,000 | 0.01 KM |