Henry Adams says ..
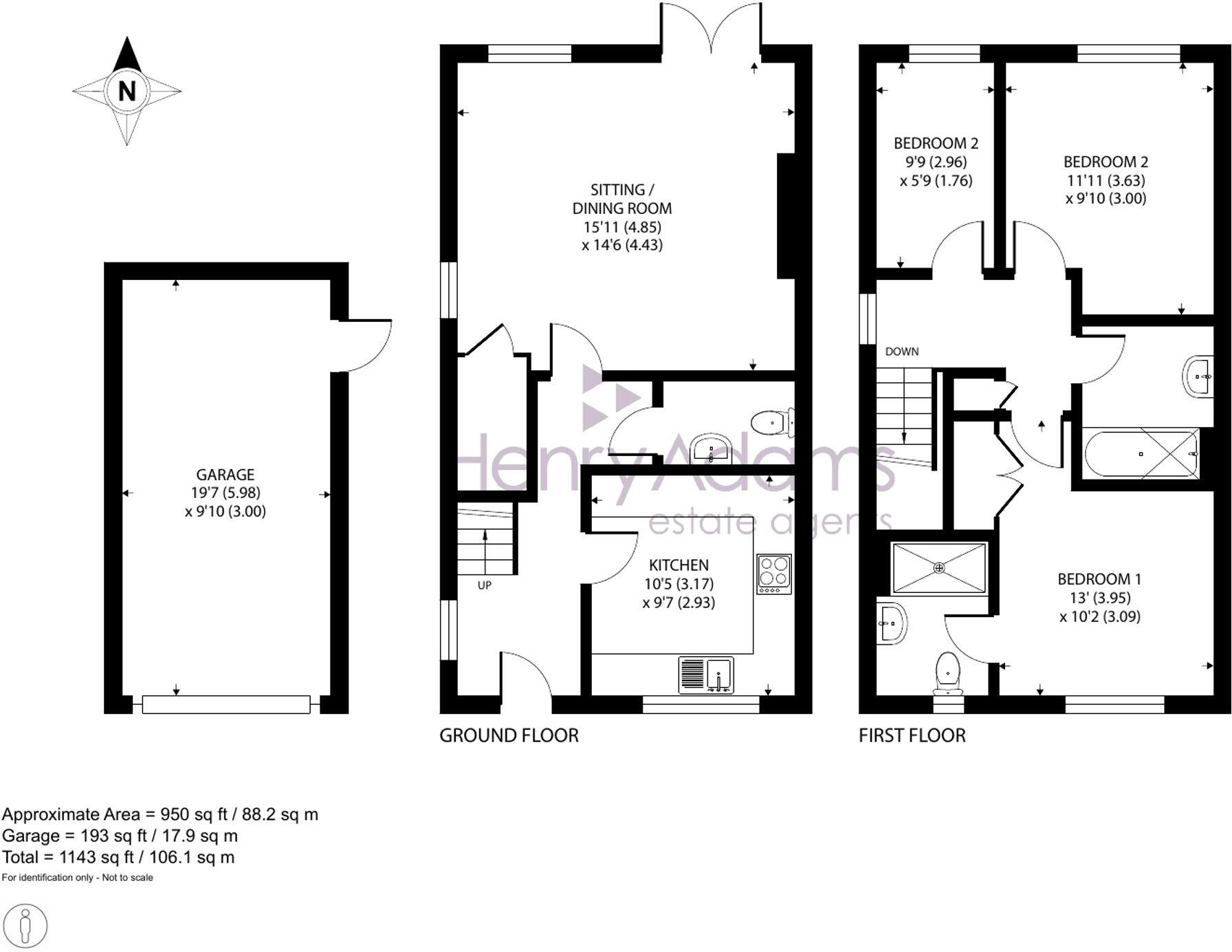
A modern SEMI-DETACHED house with ENCLOSED REAR GARDEN located in the semi-rural village of Tangmere. Sitting room, kitchen, THREE BEDROOMS, en-suite shower room, family bathroom. SINGLE GARAGE and driveway. EPC-B
Property Oracle says ..
This property is a 3-bedroom, 2-bathroom semi-detached house located in Tangmere, Chichester. The property is modern and well-maintained, as shown in the photographs. It benefits from a small, manageable garden. The location is convenient, with a primary school within a short distance and train stations within a reasonable radius. While the list price is below the average price for the area, it is important to note that the average property size is significantly larger (1,278 sqft vs 815 sqft). The smaller size and slightly below-average price may make this property attractive to buyers looking for a more affordable option in this desirable area. However, the lack of information regarding the condition of the property and its features makes it difficult to provide a definitive assessment of its value.
Therefore, we give this property 7 / 10. *Disclaimer: This is our option and does constitute a recommendation or financial advice. Do your own research. *
- Price
- 7
- Condition
- 9
- Location
- 8
- Land
- 4
- Bedrooms
- 3
- Bathrooms
- 2
- Sqft (est)
- 815.20
- Lot (est)
- 950.00
The heatmap indicates the level of crime in the area. The color of the heatmap indicates the crime severity and recency.
Metrics Year-on-Year
- Average area value
- 508,125.00 £Increased by 2.57 %
- Est sale value
- 374,176.80 £Decreased by 2.75 %
- Average area rental value
- 1,813.00 £/moIncreased by 17.27 %
- Est letting value
- 815.20 £/moUnchanged by 0.00 %
- Est rental Yield
- 4.28 %Increased by 14.44 %
- Crime Rate
- 56.00 %Unchanged by 0.00 %
Agent Activity
Henry Adams created the listing.
Nearby Schools
| Name | Type | Ofsted | Distance |
|---|---|---|---|
| Tangmere Primary Academy | Academy Sponsor Led | Good | 0.54 KM |
| Chichester Children & Family Centre (The Hive, Tangmere) | Children's Centre Linked Site | 0.65 KM | |
| Boxgrove Cofe Primary School | Voluntary Controlled School | Good | 1.22 KM |
| Westbourne House School | Other Independent School | 3.45 KM | |
| The March Cofe Primary School | Academy Converter | 4.34 KM |
Images
Nearby Streets
| Name | Average Price | Average Sqft | Distance |
|---|---|---|---|
| Priory Close | £ 625,000 | 0 | 0.00 KM |
| The Close | £ 795,000 | 0 | 0.00 KM |
| Mannock Road | £ 350,000 | 0 | 0.00 KM |
| Park Lane | £ 695,000 | 0 | 0.00 KM |
| Stoneypost Close | £ 0 | 0 | 0.00 KM |
Nearby Transport
| Name | NLC | TLC | Distance |
|---|---|---|---|
| Bognor Regis | 5253 | BOG | 7.99 KM |
| Barnham | 5252 | BAA | 8.07 KM |
| Chichester | 5255 | CCH | 8.17 KM |
Nearby Listings
| Address | Price | Type | Score | Distance |
|---|---|---|---|---|
| Hangar Drive, Tangmere, PO20 | £ 360,000 | BUY | 7 / 10 | 0.00 KM |
| Hangar Drive, Tangmere, PO20 | £ 365,000 | BUY | 7 / 10 | 0.02 KM |
| Hangar Drive, Tangmere, Chichester, West Sussex, PO20 | £ 375,000 | BUY | 7 / 10 | 0.03 KM |
| Hangar Drive, Chichester | £ 355,000 | BUY | 7 / 10 | 0.03 KM |
| Churchwood Drive, Tangmere, Chichester, West Sussex | £ 335,000 | BUY | Unknown | 0.07 KM |
Nearby Properties
| Address | Price | Distance |
|---|---|---|
| 82 Churchwood Drive | £ 255,000 | 0.07 KM |
| 114 Churchwood Drive | £ 230,000 | 0.07 KM |
| 78 Churchwood Drive | £ 218,000 | 0.07 KM |
| 104 Churchwood Drive | £ 168,000 | 0.07 KM |
| 98 Churchwood Drive | £ 177,000 | 0.07 KM |