Turrall Street, Worcester, WR3
By Hills Estate Agents
£ 150,000
Reviews
2 out of 5 stars
Hills Estate Agents says ..
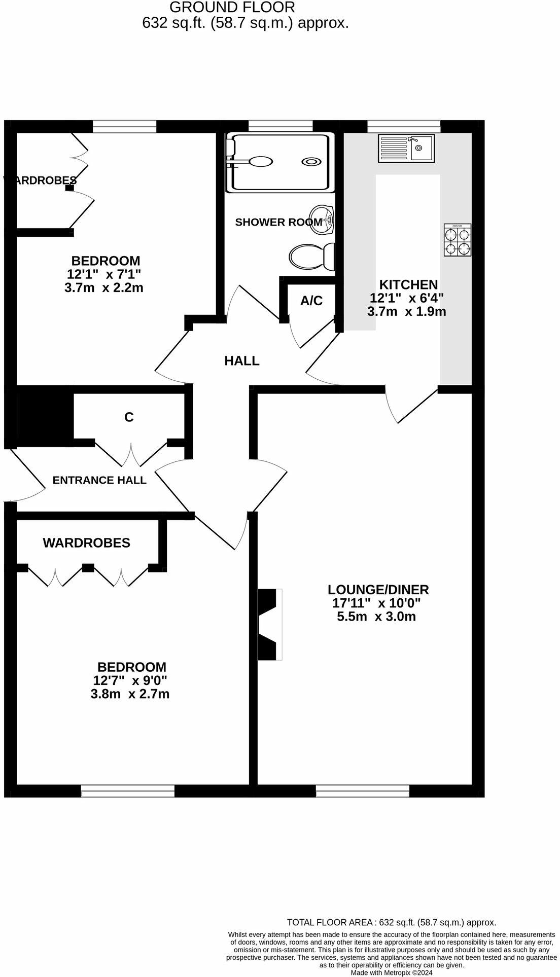
This two bedroom ground floor apartment that is located within the desirable area of Barbourne and within close proximity of the city centre. The flat comprises entrance hall, living room, kitchen, two bedrooms and a refitted shower room. The flat further benefits from communal gardens to the ...
Property Oracle says ..
This two-bedroom apartment located on Turrall Street in Worcester offers a convenient location for those seeking proximity to city amenities and transportation. The property is within walking distance of several schools, making it potentially attractive to families. Worcester Foregate Street train station is also relatively close, providing easy access to wider transport networks.
The apartment itself appears well-maintained from the provided images, though some elements, like the flooring and decor in some rooms, show their age. The kitchen and bathroom seem to have been recently updated, which is a positive aspect. However, it lacks the space of a traditional house, with a significant absence of outdoor space, and it is important to remember this is an apartment, not a house.
The price seems competitive with other similar properties in the area, but it would be beneficial to have more comprehensive comparative data on other apartments in the immediate vicinity to definitively determine market value. The lack of detailed plot size information for nearby listings somewhat hinders a thorough analysis. A potential buyer should factor in the need for possible updating or modernizing based on their preferences.
Therefore, we give this property 5 / 10. *Disclaimer: This is our option and does constitute a recommendation or financial advice. Do your own research. *
- Price
- 7
- Condition
- 6
- Location
- 7
- Land
- 2
- Bedrooms
- 2
- Bathrooms
- 1
- Sqft (est)
- 631.84
The heatmap indicates the level of crime in the area. The color of the heatmap indicates the crime severity and recency.
Metrics Year-on-Year
- Average area value
- 890,625.00 £Increased by 35.96 %
- Est sale value
- 360,148.80 £Increased by 58.77 %
- Average area rental value
- 1,412.00 £/moDecreased by 13.11 %
- Est letting value
- 0.00 £/mo
- Est rental Yield
- 1.90 %Decreased by 36.24 %
- Crime Rate
- 8.00 %Unchanged by 0.00 %
Agent Activity
Hills Estate Agents created the listing.
Nearby Schools
| Name | Type | Ofsted | Distance |
|---|---|---|---|
| St George'S Cofe Primary School | Voluntary Aided School | Requires improvement | 0.31 KM |
| Riversides School | Academy Special Sponsor Led | Good | 0.41 KM |
| St George'S Catholic Primary School | Voluntary Aided School | Good | 0.52 KM |
| Royal Grammar School Worcester | Other Independent School | 0.68 KM | |
| Northwick Manor Primary School | Academy Converter | Good | 0.83 KM |
Images
Nearby Streets
| Name | Average Price | Average Sqft | Distance |
|---|---|---|---|
| Lavender Road | £ 562,500 | 0 | 0.00 KM |
| Henry Street | £ 0 | 0 | 0.00 KM |
| St Stephen's Terrace | £ 0 | 0 | 0.00 KM |
| Langdale Road | £ 476,667 | 0 | 0.00 KM |
| Hebb Street | £ 225,000 | 0 | 0.00 KM |
Nearby Transport
| Name | NLC | TLC | Distance |
|---|---|---|---|
| Worcester Foregate Street | 4893 | WOF | 1.39 KM |
| Worcester Shrub Hill | 4891 | WOS | 2.33 KM |
| Worcestershire Parkway | 6580 | WOP | 9.27 KM |
Nearby Listings
| Address | Price | Type | Score | Distance |
|---|---|---|---|---|
| Turrall Street, Worcester, WR3 | £ 150,000 | BUY | 5 / 10 | 0.00 KM |
| Turrall Street, Worcester, Worcestershire | £ 150,000 | BUY | Unknown | 0.12 KM |
| Brook Street, Worcester, WR1 | £ 70,000 | BUY | 5 / 10 | 0.15 KM |
| Barbourne, Worcester | £ 595,000 | BUY | 7 / 10 | 0.15 KM |
| Droitwich Road, Worcester, WR3 | £ 650,000 | BUY | 7 / 10 | 0.15 KM |
Nearby Properties
| Address | Price | Distance |
|---|---|---|
| 9 Turrall Street | £ 135,000 | 0.11 KM |
| 13 Turrall Street | £ 135,000 | 0.11 KM |
| 23 Turrall Street | £ 65,000 | 0.11 KM |
| 4 Turrall Street | £ 183,000 | 0.11 KM |
| 21 Turrall Street | £ 81,250 | 0.11 KM |