Holbein Close, Black Dam, Basingstoke
Barons Estate Agents logo

Holbein Close, Black Dam, Basingstoke

By Barons Estate Agents

£ 295,000

Reviews

3 out of 5 stars

Barons Estate Agents says ..

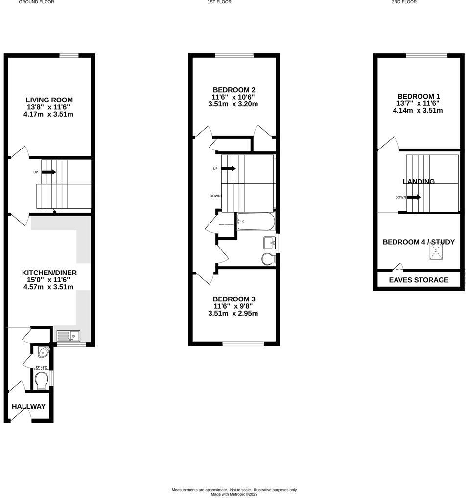
Barons Estate Agents are pleased to bring to the market this 3 storey mid terrace family home. The accommodation on the 2nd floor comprises of a bedroom and study/bedroom 4. The first floor has 2 bedrooms and a bathroom. The ground floor benefits from an entrance porch, hall, cloakroom, kitchen/d...

Property Oracle says ..

This three-bedroom terraced house in Holbein Close, Black Dam, Basingstoke, offers a blend of convenient location and potential for improvement. Situated near Rucstall Primary School, the property is well-placed for families. Its proximity to Basingstoke town centre and train station enhances its appeal further.

The interior presents a lived-in appearance; the kitchen and bathroom would benefit from modernisation to increase its market value. The flooring and wall finishes could be updated to enhance the overall aesthetic appeal. The property includes a small garden with a shed, but this is not considered expansive. The overall condition is fair but not excellent.

The asking price falls within a range of recent sales in the area, suggesting a fair market value. While the property requires some updating, the location and potential for improvement make it a reasonably priced option for those willing to undertake some renovations. Overall, it represents a solid investment for those looking for a family home in Black Dam that can be tailored to their preferences with some improvement. The lack of precise square footage data for comparable properties limits the precision of this analysis but the existing data suggests the price is reasonable. Further research into the precise plot size and condition of comparable properties would result in a more conclusive assessment.

Therefore, we give this property 6 / 10. *Disclaimer: This is our option and does constitute a recommendation or financial advice. Do your own research. *

Price
7
Condition
6
Location
7
Land
4
Bedrooms
3
Bathrooms
1
Sqft (est)
1,106.21

The heatmap indicates the level of crime in the area. The color of the heatmap indicates the crime severity and recency.

Metrics Year-on-Year

Average area value
361,250.00 £
Increased by 16.86 %
from 309,122.00 £
Est sale value
430,315.69 £
Increased by 159.33 %
from 165,931.50 £
Average area rental value
1,265.00 £/mo
Decreased by 5.17 %
from 1,334.00 £/mo
Est letting value
1,106.21 £/mo
from 0.00 £/mo
Est rental Yield
4.20 %
Decreased by 18.92 %
from 5.18 %
Crime Rate
6.00 %
Unchanged by 0.00 %
from 6.00 %

Agent Activity

  • Barons Estate Agents created the listing.

Nearby Schools

NameTypeOfstedDistance
Rucstall Primary SchoolCommunity SchoolGood0.07 KM
The Costello SchoolAcademy ConverterRequires improvement0.84 KM
Queen Mary'S CollegeAcademy 16-19 ConverterGood1.65 KM
Fairfields Primary SchoolCommunity SchoolGood1.73 KM
South View Junior SchoolCommunity SchoolGood2.18 KM

Images

CAM01093G0-PR0477-STILL011.jpg CAM01093G0-PR0477-STILL001.jpg CAM01093G0-PR0477-STILL006.jpg CAM01093G0-PR0477-STILL005.jpg CAM01093G0-PR0477-STILL004.jpg CAM01093G0-PR0477-STILL007.jpg CAM01093G0-PR0477-STILL010.jpg CAM01093G0-PR0477-STILL002.jpg CAM01093G0-PR0477-STILL003.jpg CAM01093G0-PR0477-STILL009.jpg

Nearby Streets

NameAverage PriceAverage SqftDistance
Black Dam Way £ 000.00 KM
Westfield Road £ 365,00000.00 KM
Stubbs Road £ 000.00 KM
Lea Close £ 000.00 KM
Bourne Court £ 000.00 KM

Nearby Transport

NameNLCTLCDistance
Basingstoke5520BSK2.00 KM
Bramley (Hampshire)5500BMY8.18 KM

Nearby Listings

AddressPriceTypeScoreDistance
Holbein Close, Basingstoke, RG21 £ 325,000BUY7 / 100.09 KM
Holbein Close, Basingstoke, RG21 £ 250,000BUY5 / 100.12 KM
Renoir Close, Black Dam £ 300,000BUY7 / 100.13 KM
Renoir Close, Basingstoke, RG21 3EW £ 385,000BUY6 / 100.13 KM
Renoir Close, Basingstoke £ 315,000BUY5 / 100.13 KM

Nearby Properties

AddressPriceDistance
86 Holbein Close £ 274,0000.10 KM
116 Holbein Close £ 285,0000.10 KM
108 Holbein Close £ 162,5000.10 KM
114 Holbein Close £ 290,0000.10 KM
102 Holbein Close £ 155,0000.10 KM