Clarke Gammon says ..
A rare and exciting opportunity to acquire a truly unique property set within approximately 0.35 acres of picturesque gardens, woodland, and waterfall, all privately situated on the peaceful outskirts of the highly desirable village of Lurgashall. Windfallwood House is a non designated...
Property Oracle says ..
Therefore, we give this property 6 / 10. *Disclaimer: This is our option and does constitute a recommendation or financial advice. Do your own research. *
- Price
- 7
- Condition
- 2
- Location
- 7
- Land
- 8
- Bedrooms
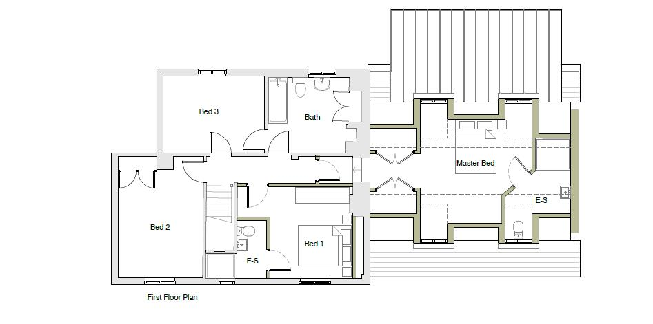
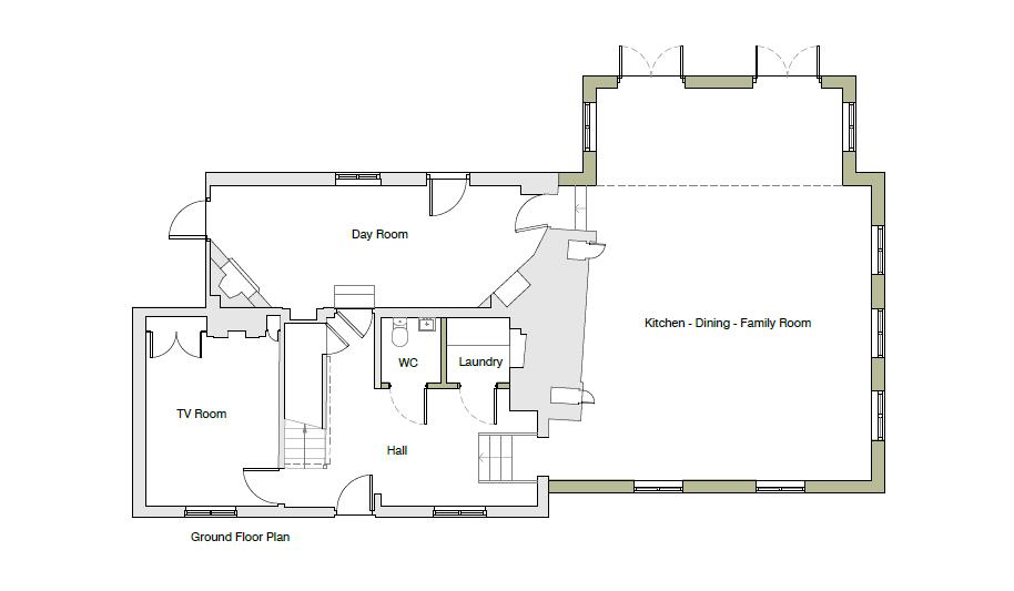
- 4
- Bathrooms
- 0
The heatmap indicates the level of crime in the area. The color of the heatmap indicates the crime severity and recency.
Metrics Year-on-Year
- Average area value
- 1,451,250.00 £Increased by 46.51 %
- Average area rental value
- 4,617.00 £/moIncreased by 113.65 %
- Est rental Yield
- 3.82 %Increased by 45.80 %
- Crime Rate
- 0.00 %
from 990,539.00 £
from 2,161.00 £/mo
from 2.62 %
from 0.00 %
Agent Activity
Clarke Gammon marked this listing as sold.
Clarke Gammon created the listing.
Nearby Schools
| Name | Type | Ofsted | Distance |
|---|---|---|---|
| Northchapel Community Primary School | Community School | Good | 4.56 KM |
| Fernhurst Primary School | Academy Converter | Good | 4.77 KM |
| St Ives School | Other Independent School | 6.26 KM | |
| St Bartholomew'S Cofe Aided Primary School | Voluntary Aided School | Good | 6.98 KM |
| Tennyson'S Sure Start Children'S Centre | Children's Centre | 7.02 KM |
Images
Nearby Transport
| Name | NLC | TLC | Distance |
|---|---|---|---|
| Haslemere | 5633 | HSL | 6.90 KM |
Nearby Listings
| Address | Price | Type | Score | Distance |
|---|---|---|---|---|
| Dial Green, Lurgashall | £ 725,000 | BUY | 6 / 10 | 0.00 KM |
| Jobsons Lane, Lurgashall | £ 1,750,000 | BUY | 5 / 10 | 0.00 KM |
| Dial Green, PETWORTH, GU28 | £ 1,250,000 | BUY | 7 / 10 | 0.17 KM |
| Jobsons Lane, Lurgashall | £ 1,000,000 | BUY | 6 / 10 | 0.28 KM |
| Dial Green, Lurgashall, GU28 | £ 2,500,000 | BUY | 8 / 10 | 0.34 KM |
Nearby Properties
| Address | Price | Distance |
|---|---|---|
| Smugglers Cottage | £ 680,000 | 0.38 KM |
| Faggotts Stack | £ 990,000 | 0.38 KM |
| Deerfell | £ 1,225,000 | 1.18 KM |
| The Mill | £ 465,000 | 1.18 KM |
| Cotchet Farmhouse | £ 2,008,880 | 1.77 KM |