Farndish Close, Rushden, NN10
By Giggs & Hone
£ 350,000
Reviews
3 out of 5 stars
Giggs & Hone says ..
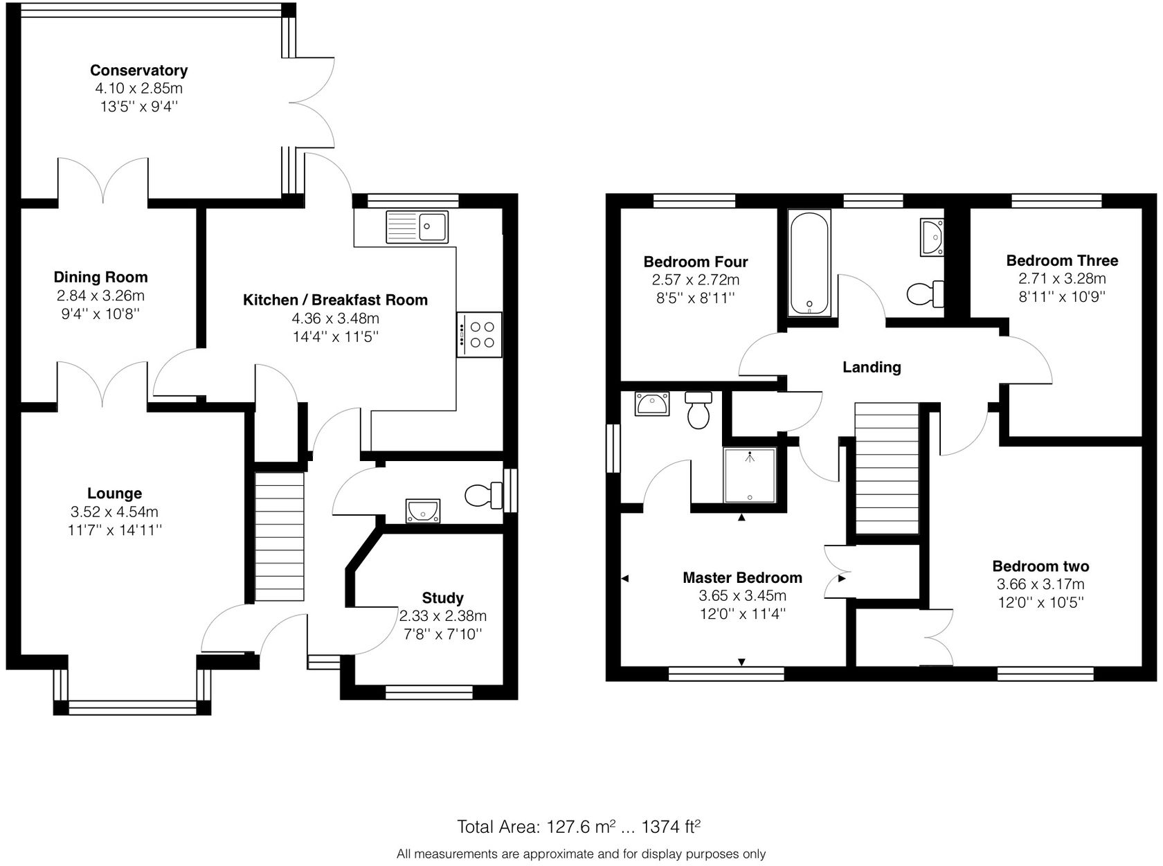
**Spacious Four-Bedroom Detached Home on a Corner Plot** An excellent opportunity to acquire this well proportioned four bedroom detached house, ideally positioned on a desirable corner plot within a sought after cul de sac.
Property Oracle says ..
This four-bedroom detached house in Rushden, Northamptonshire is listed at £350,000. The property benefits from a good-sized plot of 1,374 sqft and appears to be in reasonable condition based on the provided images, though some minor cosmetic upgrades might enhance its appeal. The location on Farndish Close offers proximity to Rushden town centre and easy access to local amenities. However, the lack of square footage information for the property itself makes a definitive price-per-square-foot comparison difficult. Considering nearby comparable properties on Farndish Close, which range from £166,000 to £305,000, and the average price of £279,883 in the area, the asking price seems slightly on the higher end, especially given the absence of information regarding the internal square footage. The presence of a garden and a double garage adds to the property’s value. More information on the property’s internal condition and square footage would be needed for a more comprehensive assessment.
Therefore, we give this property 7 / 10. *Disclaimer: This is our option and does constitute a recommendation or financial advice. Do your own research. *
- Price
- 6
- Condition
- 7
- Location
- 7
- Land
- 8
- Bedrooms
- 4
- Bathrooms
- 2
- Lot (est)
- 1,374.00
The heatmap indicates the level of crime in the area. The color of the heatmap indicates the crime severity and recency.
Metrics Year-on-Year
- Average area value
- 305,421.00 £Increased by 25.02 %
- Average area rental value
- 928.00 £/moDecreased by 3.53 %
- Est rental Yield
- 3.65 %Decreased by 22.83 %
- Crime Rate
- 7.00 %Unchanged by 0.00 %
Agent Activity
Giggs & Hone created the listing.
Nearby Schools
| Name | Type | Ofsted | Distance |
|---|---|---|---|
| Tennyson Road Infant School | Community School | Requires improvement | 0.75 KM |
| Whitefriars Primary School | Community School | Good | 1.18 KM |
| Rushden Academy | Academy Sponsor Led | 1.24 KM | |
| Rushden Children'S Centre | Children's Centre | 1.62 KM | |
| Alfred Street Junior School, Rushden | Community School | Requires improvement | 1.75 KM |
Images
Nearby Streets
| Name | Average Price | Average Sqft | Distance |
|---|---|---|---|
| Beech Grove | £ 741,667 | 0 | 0.00 KM |
| West Crescent | £ 0 | 0 | 0.00 KM |
| Shakespeare Road | £ 210,000 | 0 | 0.00 KM |
| Coronation Avenue | £ 0 | 0 | 0.00 KM |
| St Mark's Close | £ 362,498 | 0 | 0.00 KM |
Nearby Transport
| Name | NLC | TLC | Distance |
|---|---|---|---|
| Wellingborough | 1940 | WEL | 6.95 KM |
Nearby Listings
| Address | Price | Type | Score | Distance |
|---|---|---|---|---|
| Farndish Close, Rushden, NN10 | £ 350,000 | BUY | 7 / 10 | 0.00 KM |
| Farndish Close, Rushden | £ 395,000 | BUY | 7 / 10 | 0.01 KM |
| Farndish Close, Rushden | £ 450,000 | BUY | 7 / 10 | 0.04 KM |
| Farndish Close, Rushden | £ 410,000 | BUY | 6 / 10 | 0.05 KM |
| St Peters Avenue, Rushden | £ 300,000 | BUY | 6 / 10 | 0.08 KM |
Nearby Properties
| Address | Price | Distance |
|---|---|---|
| 23 Farndish Close | £ 315,000 | 0.05 KM |
| 3 Farndish Close | £ 115,500 | 0.05 KM |
| 2 Farndish Close | £ 190,000 | 0.05 KM |
| 10 Farndish Close | £ 166,000 | 0.05 KM |
| 14 Farndish Close | £ 173,000 | 0.05 KM |