mile... says ..
Welcome to Purves Road; a stunning architecturally designed apartment set on the prestigious Purves Road.
Property Oracle says ..
Therefore, we give this property 8 / 10. *Disclaimer: This is our option and does constitute a recommendation or financial advice. Do your own research. *
- Price
- 9
- Condition
- 8
- Location
- 8
- Land
- 7
- Bedrooms
- 2
- Bathrooms
- 1
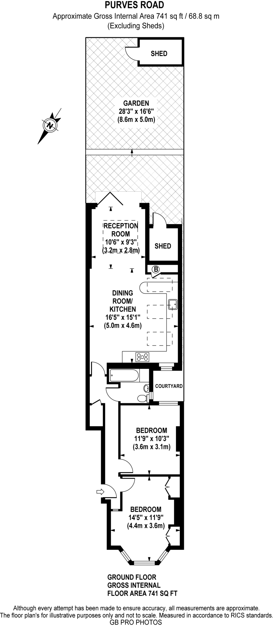
- Sqft (est)
- 1,102.94
The heatmap indicates the level of crime in the area. The color of the heatmap indicates the crime severity and recency.
Metrics Year-on-Year
- Average area value
- 993,526.00 £Increased by 17.63 %
- Est sale value
- 1,140,439.96 £Increased by 65.18 %
- Average area rental value
- 2,483.00 £/moDecreased by 8.81 %
- Est letting value
- 2,205.88 £/moUnchanged by 0.00 %
- Est rental Yield
- 3.00 %Decreased by 22.48 %
- Crime Rate
- 3.00 %Unchanged by 0.00 %
from 844,590.00 £
from 690,440.44 £
from 2,723.00 £/mo
from 2,205.88 £/mo
from 3.87 %
from 3.00 %
Agent Activity
mile... created the listing.
Nearby Schools
| Name | Type | Ofsted | Distance |
|---|---|---|---|
| Princess Frederica Cofe Primary School | Voluntary Aided School | Good | 0.19 KM |
| Manor School | Academy Special Converter | Outstanding | 0.51 KM |
| College Green School And Services | Local Authority Nursery School | Outstanding | 0.63 KM |
| Ark Franklin Primary Academy | Academy Sponsor Led | Good | 0.66 KM |
| Three Trees Children'S Centre | Children's Centre | 0.91 KM |
Images
Nearby Streets
| Name | Average Price | Average Sqft | Distance |
|---|---|---|---|
| Wrottesley Road | £ 0 | 0 | 0.00 KM |
| Wrottesley Road | £ 0 | 0 | 0.00 KM |
| Wrottesley Road | £ 0 | 0 | 0.00 KM |
| Wrottesley Road | £ 0 | 0 | 0.00 KM |
| Wrottesley Road | £ 0 | 0 | 0.00 KM |
Nearby Transport
| Name | NLC | TLC | Distance |
|---|---|---|---|
| Kensal Green | 1447 | KNL | 0.31 KM |
| Kensal Rise | 1448 | KNR | 0.45 KM |
| Brondesbury Park | 1438 | BSP | 1.73 KM |
| Queens Park (London) | 1419 | QPW | 2.06 KM |
| Willesden Junction | 1457 | WIJ | 2.31 KM |
Nearby Listings
| Address | Price | Type | Score | Distance |
|---|---|---|---|---|
| Purves Road, Kensal Rise NW10 | £ 700,000 | BUY | 8 / 10 | 0.00 KM |
| Purves Road, Kensal Rise NW10 | £ 599,000 | BUY | 6 / 10 | 0.00 KM |
| Purves Road, Kensal Rise, NW10 | £ 1,750,000 | BUY | 7 / 10 | 0.02 KM |
| Purves Road, Kensal Rise, London | £ 590,000 | BUY | 6 / 10 | 0.04 KM |
| Ashburnham Road, Kensal Rise | £ 800,000 | BUY | 7 / 10 | 0.04 KM |
Nearby Properties
| Address | Price | Distance |
|---|---|---|
| 89 Purves Road | £ 248,000 | 0.00 KM |
| 121b Purves Road | £ 306,555 | 0.00 KM |
| 117 Purves Road | £ 1,160,000 | 0.00 KM |
| 115 Purves Road | £ 575,000 | 0.00 KM |
| 171a Purves Road | £ 654,000 | 0.00 KM |