Dayfields says ..
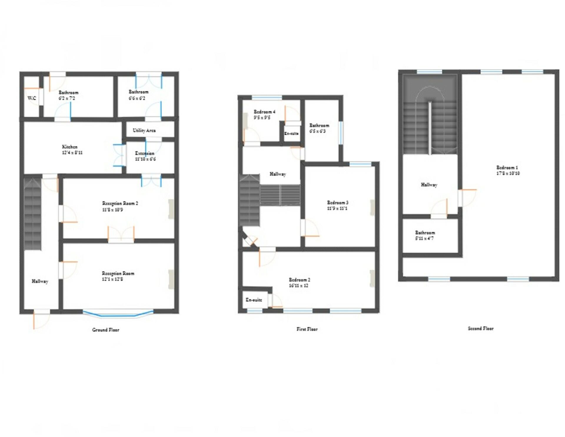
**Chain free** We are pleased to offer this Four bedroom mid terrace house in need of modernisation situated approx. 433ft from Bush Hill Park Station. This property benefits from high ceilings, original features, generous room sizes, gas central heating, front and rear gardens.
Property Oracle says ..
The property is located on St. Marks Road, Bush Hill Park, Enfield, in the London Borough of Enfield. Bush Hill Park benefits from being a short distance from Bush Hill Park station, providing access to the London Overground. Several primary schools with good Ofsted ratings are within a reasonable distance, making it potentially attractive to families. However, the provided data does not offer sufficient detail to definitively assess the quality of local shops and other amenities.
Based on the provided images, the property appears to be in need of modernisation and some repair. The interior shows dated decor, worn flooring, and some areas requiring attention. The overall condition suggests a need for renovation to bring it up to a modern standard. The exterior, while showing a traditional style, also looks in need of some maintenance.
The property includes a garden, although the size is not specified. The images show a small, relatively unkempt garden area, including a shed.
The list price of £557,750 is significantly higher than the average price of £455,249 for the area. The average price per square foot is £548, but the square footage of the property is not provided, preventing a direct comparison. Considering the property’s condition and the need for renovation, the asking price appears high relative to the average price in the area, even without knowing the square footage. Further investigation into the size of the property and a detailed cost estimate for necessary renovations would be needed to determine if the price is justified. The presence of a garden is a positive factor, but the need for significant renovation work could offset this.
Therefore, we give this property 5 / 10. *Disclaimer: This is our option and does constitute a recommendation or financial advice. Do your own research. *
- Price
- 4
- Condition
- 4
- Location
- 7
- Land
- 5
- Bedrooms
- 4
- Bathrooms
- 5
The heatmap indicates the level of crime in the area. The color of the heatmap indicates the crime severity and recency.
Metrics Year-on-Year
- Average area value
- 681,429.00 £Increased by 14.18 %
- Average area rental value
- 1,986.00 £/moDecreased by 15.60 %
- Est rental Yield
- 3.50 %Decreased by 26.00 %
- Crime Rate
- 10.00 %Unchanged by 0.00 %
Agent Activity
Dayfields created the listing.
Nearby Schools
| Name | Type | Ofsted | Distance |
|---|---|---|---|
| Bush Hill Park Children'S Centre | Children's Centre | 0.36 KM | |
| Bush Hill Park Primary School | Community School | Good | 0.59 KM |
| The Raglan Junior School | Community School | Good | 0.78 KM |
| Raglan Infant School | Community School | Good | 0.86 KM |
| George Spicer Primary School | Community School | Good | 1.01 KM |
Images
Nearby Streets
| Name | Average Price | Average Sqft | Distance |
|---|---|---|---|
| St Mark's Road | £ 370,000 | 0 | 0.00 KM |
| Leighton Road | £ 335,000 | 0 | 0.00 KM |
| Night Enterance | £ 0 | 0 | 0.00 KM |
| Great Cambridge Road | £ 550,000 | 0 | 0.00 KM |
| Woodgrange Terrace | £ 475,000 | 0 | 0.00 KM |
Nearby Transport
| Name | NLC | TLC | Distance |
|---|---|---|---|
| Bush Hill Park | 6913 | BHK | 0.21 KM |
| Enfield Town | 6959 | ENF | 1.70 KM |
| Southbury | 6947 | SBU | 1.81 KM |
| Edmonton Green | 6941 | EDR | 2.06 KM |
| Enfield Chase | 6010 | ENC | 2.85 KM |
Nearby Listings
| Address | Price | Type | Score | Distance |
|---|---|---|---|---|
| St. Marks Road, London, EN1 | £ 557,750 | BUY | 5 / 10 | 0.00 KM |
| St. Marks Road, Enfield | £ 375,000 | BUY | Unknown | 0.06 KM |
| Ladbroke Road, Enfield | £ 650,000 | BUY | 7 / 10 | 0.08 KM |
| Pasters Court, Trinity Avenue, Enfield, EN1 | £ 365,000 | BUY | 6 / 10 | 0.10 KM |
| Pasters Court, 1b Trinity Avenue, Enfield, EN1 | £ 360,000 | BUY | 6 / 10 | 0.10 KM |
Nearby Properties
| Address | Price | Distance |
|---|---|---|
| 102 St Marks Road | £ 455,000 | 0.00 KM |
| 84 St Marks Road | £ 174,250 | 0.00 KM |
| 116a St Marks Road | £ 212,500 | 0.00 KM |
| 96b St Marks Road | £ 276,000 | 0.00 KM |
| 66a St Marks Road | £ 130,000 | 0.00 KM |