NestledIn says ..
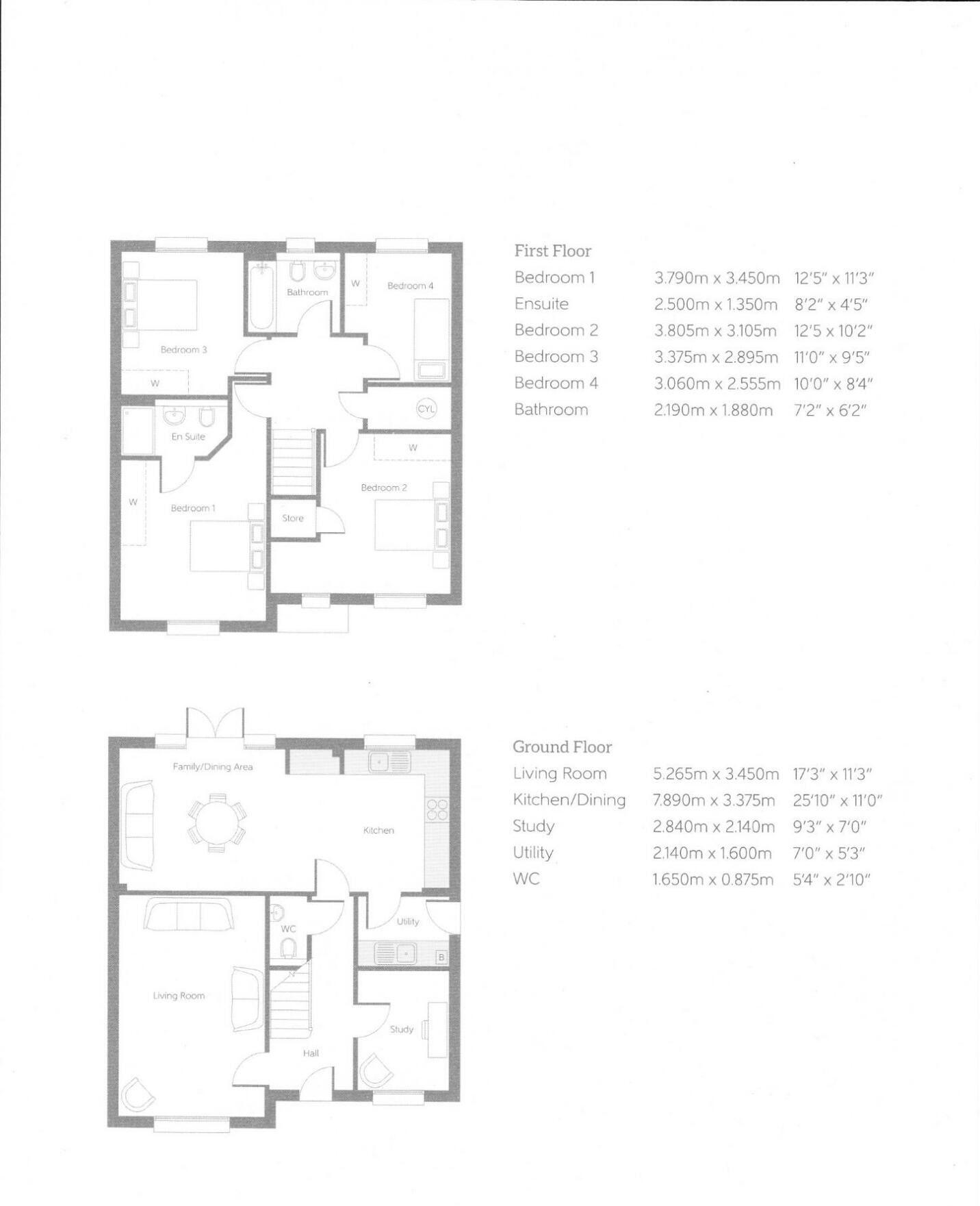
A Dream Home with No Chain – Ready to Move Into! Step inside this truly stunning and incredibly spacious four-bedroom detached home, and you’ll instantly see why it’s a must-view! Coming to the market with NO CHAIN, this property is packed with fantastic features and s...
Property Oracle says ..
This four-bedroom, two-bathroom detached house located in Monk Bretton, Barnsley, presents a strong offering for families seeking a modern and well-maintained home. The property boasts a recently completed high-quality extension, which significantly enhances its living space and functionality. The newly renovated extension adds a significant amount of usable space. The extension features a modern kitchen/diner and a further living space, opening out onto the garden. This is a key feature of the property, which also features a modern design and good quality finishes throughout. The photographs showcase a bright, clean and up-to-date home. The property is presented in excellent condition, requiring no apparent repairs or renovations. The outdoor space is also a key feature, providing a good sized garden which benefits from open views. The location in Monk Bretton offers a family-friendly environment with good access to local schools and transport links. While the average price per square foot data is lacking in the provided information, making a direct comparison challenging, the list price appears to fall within the reasonable range for similar properties in the area, considering the upgrades and additional space. Overall, this property is likely to be in high demand due to its condition, amenities, and location.
Therefore, we give this property 7 / 10. *Disclaimer: This is our option and does constitute a recommendation or financial advice. Do your own research. *
- Price
- 7
- Condition
- 9
- Location
- 7
- Land
- 6
- Bedrooms
- 4
- Bathrooms
- 2
- Sqft (est)
- 860.79
The heatmap indicates the level of crime in the area. The color of the heatmap indicates the crime severity and recency.
Metrics Year-on-Year
- Average area value
- 956,598.00 £Increased by 11.44 %
- Est sale value
- 342,594.42 £Decreased by 31.97 %
- Average area rental value
- 2,934.00 £/moIncreased by 6.69 %
- Est letting value
- 860.79 £/moUnchanged by 0.00 %
- Est rental Yield
- 3.68 %Decreased by 4.17 %
- Crime Rate
- 5.00 %Unchanged by 0.00 %
Agent Activity
NestledIn created the listing.
Nearby Schools
| Name | Type | Ofsted | Distance |
|---|---|---|---|
| Springwell Alternative Academy | Academy Alternative Provision Converter | Good | 1.02 KM |
| Springwell Special Academy | Academy Special Converter | Outstanding | 1.04 KM |
| St Helen'S Primary Academy | Academy Sponsor Led | Requires improvement | 1.09 KM |
| Burton Road Primary School | Community School | Good | 1.31 KM |
| Outwood Primary Academy Littleworth Grange | Academy Sponsor Led | Good | 1.33 KM |
Images
Nearby Streets
| Name | Average Price | Average Sqft | Distance |
|---|---|---|---|
| Vine Close | £ 0 | 0 | 0.00 KM |
| High Street | £ 0 | 0 | 0.00 KM |
| Farm Close | £ 0 | 0 | 0.00 KM |
| Back Lane | £ 0 | 0 | 0.00 KM |
| The Ridings | £ 295,000 | 0 | 0.00 KM |
Nearby Transport
| Name | NLC | TLC | Distance |
|---|---|---|---|
| Barnsley | 6774 | BNY | 2.69 KM |
| Wombwell | 6688 | WOM | 6.83 KM |
| Elsecar | 6667 | ELR | 7.98 KM |
| Dodworth | 6781 | DOD | 8.75 KM |
| Darton | 8420 | DRT | 8.84 KM |
Nearby Listings
| Address | Price | Type | Score | Distance |
|---|---|---|---|---|
| Folly Way, Barnsley, S71 2SP | £ 320,000 | BUY | 7 / 10 | 0.00 KM |
| Folly Way, Barnsley, S71 2SP | £ 380,000 | BUY | 7 / 10 | 0.00 KM |
| High Street, Barnsley, Monk Bretton, S71 | £ 225,000 | BUY | 7 / 10 | 0.18 KM |
| Beacon View, Monk Bretton, Barnsley, S71 | £ 199,950 | BUY | Unknown | 0.21 KM |
| Beacon View, Monk Bretton, Barnsley, S71 | £ 189,950 | BUY | 7 / 10 | 0.21 KM |
Nearby Properties
| Address | Price | Distance |
|---|---|---|
| 33 Cross Street | £ 69,950 | 0.14 KM |
| 35 Cross Street | £ 140,000 | 0.14 KM |
| 27 Cross Street | £ 100,000 | 0.14 KM |
| 37 Cross Street | £ 95,000 | 0.14 KM |
| 21 Cross Street | £ 124,950 | 0.14 KM |