Bluebell Road, Mulbarton
By Hammond & Stratford
£ 325,000
Reviews
3 out of 5 stars
Hammond & Stratford says ..
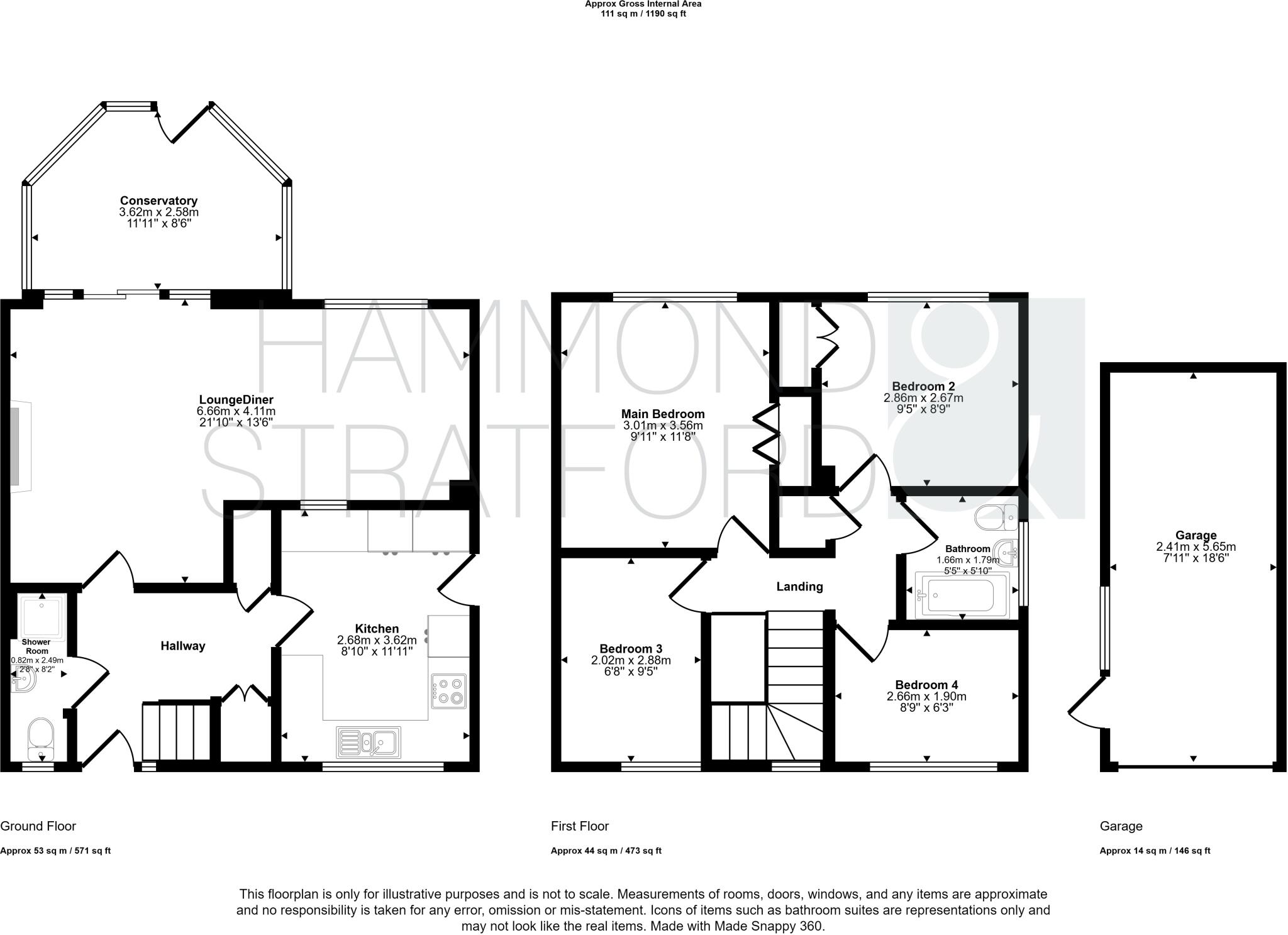
This detached house in Mulbarton is just a short distance from the village amenities ensuring convenience and ease of living. Offering spacious accommodation including 4 bedrooms and a modern kitchen, complete with an integrated hob, eye-level oven and garden access, this home is ideal for both e...
Property Oracle says ..
This 4-bedroom, 2-bathroom house located on Bluebell Road in Mulbarton, South Norfolk, is presented as a family home. The property benefits from a relatively modern kitchen and bathrooms, as seen in the provided images. The house itself is a brick-built structure, appearing to be well-maintained, with a garden which adds significantly to the property’s appeal. The garden includes a patio area and a conservatory, which adds to living space and garden potential. The location in Mulbarton positions it conveniently near Mulbarton Primary School which received a good Ofsted rating. While proximity to other amenities and transportation are not specifically outlined in the data provided the surrounding area appears to provide adequate access to other amenities. The list price is competitive with other homes in the area, although a definitive assessment is impossible due to missing plot size and square footage data in the provided comparables. Overall, the property presents a well-maintained and potentially attractive option for families seeking to live in this desirable village setting.
Therefore, we give this property 7 / 10. *Disclaimer: This is our option and does constitute a recommendation or financial advice. Do your own research. *
- Price
- 7
- Condition
- 8
- Location
- 7
- Land
- 6
- Bedrooms
- 4
- Bathrooms
- 2
- Sqft (est)
- 1,787.89
The heatmap indicates the level of crime in the area. The color of the heatmap indicates the crime severity and recency.
Metrics Year-on-Year
- Average area value
- 605,000.00 £Increased by 26.89 %
- Est sale value
- 607,882.60 £Increased by 14.48 %
- Average area rental value
- 1,123.00 £/moIncreased by 1.17 %
- Est letting value
- 0.00 £/mo
- Est rental Yield
- 2.23 %Decreased by 20.07 %
- Crime Rate
- 45.00 %Unchanged by 0.00 %
Agent Activity
Hammond & Stratford created the listing.
Nearby Schools
| Name | Type | Ofsted | Distance |
|---|---|---|---|
| Mulbarton Primary School | Community School | Good | 0.63 KM |
| Newton Flotman Church Of England Primary Academy | Academy Sponsor Led | 2.87 KM | |
| Preston Church Of England Voluntary Controlled Primary School | Voluntary Controlled School | Good | 4.53 KM |
| Hapton Church Of England Voluntary Aided Primary School | Voluntary Aided School | Good | 5.37 KM |
| Cringleford Ce Va Primary School | Voluntary Aided School | Outstanding | 5.76 KM |
Images
Nearby Streets
| Name | Average Price | Average Sqft | Distance |
|---|---|---|---|
| Elm Close | £ 0 | 0 | 0.00 KM |
| South Acre | £ 525,000 | 0 | 0.00 KM |
| Robin Close | £ 0 | 0 | 0.00 KM |
Nearby Listings
| Address | Price | Type | Score | Distance |
|---|---|---|---|---|
| Bluebell Road, Mulbarton | £ 325,000 | BUY | Unknown | 0.07 KM |
| Stile Close, Mulbarton | £ 280,000 | BUY | Unknown | 0.07 KM |
| Bluebell Road, Mulbarton, Norwich, Norfolk, NR14 | £ 260,000 | BUY | 7 / 10 | 0.10 KM |
| Stile Close, Mulbarton, Norwich, Norfolk, NR14 | £ 300,000 | BUY | 7 / 10 | 0.10 KM |
| Stile Close, Mulbarton, Norwich, Norfolk, NR14 | £ 270,000 | BUY | 7 / 10 | 0.10 KM |
Nearby Properties
| Address | Price | Distance |
|---|---|---|
| 29 Bluebell Road | £ 190,000 | 0.00 KM |
| 31 Bluebell Road | £ 272,000 | 0.00 KM |
| 4 Cowslip Close | £ 230,000 | 0.03 KM |
| 2 Cowslip Close | £ 245,000 | 0.03 KM |
| 7 Cowslip Close | £ 166,750 | 0.03 KM |