Belmont Road, Malvern
By Philip Laney & Jolly
£ 160,000
Philip Laney & Jolly says ..
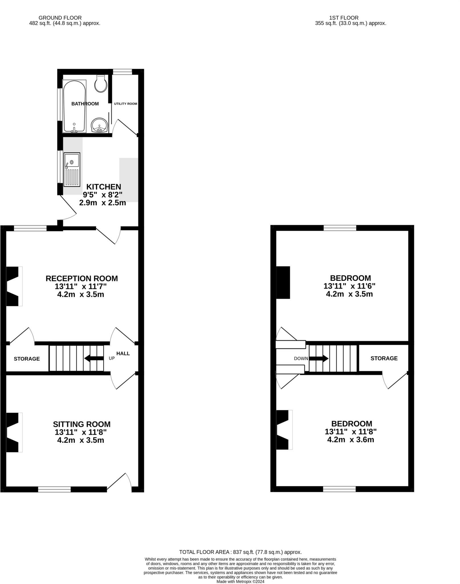
A two bedroom mid terrace property in a popular location with good access to the shops and amenities of Malvern Link, primary and secondary schools. The property is close to a bus route and is within striking distance of Malvern Link train station.
- Bedrooms
- 2
- Bathrooms
- 1
The heatmap indicates the level of crime in the area. The color of the heatmap indicates the crime severity and recency.
Metrics Year-on-Year
- Average area value
- 502,500.00 £Increased by 40.73 %
- Average area rental value
- 961.00 £/moDecreased by 1.13 %
- Est rental Yield
- 2.29 %Decreased by 29.97 %
- Crime Rate
- 38.00 %Unchanged by 0.00 %
from 357,077.00 £
from 972.00 £/mo
from 3.27 %
from 38.00 %
Agent Activity
Philip Laney & Jolly created the listing.
Nearby Schools
| Name | Type | Ofsted | Distance |
|---|---|---|---|
| Northleigh Cofe Primary School | Academy Sponsor Led | 0.42 KM | |
| St Joseph'S Catholic Primary School | Voluntary Aided School | Good | 0.46 KM |
| Dyson Perrins Cofe Academy | Academy Converter | Good | 0.82 KM |
| Somers Park Primary School | Academy Converter | 0.99 KM | |
| St Matthias Church Of England Primary School | Academy Converter | 1.77 KM |
Images
Nearby Streets
| Name | Average Price | Average Sqft | Distance |
|---|---|---|---|
| Sayers Avenue | £ 0 | 0 | 0.00 KM |
| Nursery Road | £ 275,000 | 0 | 0.00 KM |
| St. Peter's Road | £ 0 | 0 | 0.00 KM |
| Queen's Close | £ 0 | 0 | 0.00 KM |
| Laburnum Walk | £ 355,000 | 0 | 0.00 KM |
Nearby Transport
| Name | NLC | TLC | Distance |
|---|---|---|---|
| Malvern Link | 4884 | MVL | 1.64 KM |
| Great Malvern | 4892 | GMV | 2.70 KM |
| Colwall | 4876 | CWL | 5.88 KM |
Nearby Listings
| Address | Price | Type | Score | Distance |
|---|---|---|---|---|
| Belmont Road, Malvern, Worcestershire, WR14 | £ 200,000 | BUY | 5 / 10 | 0.00 KM |
| Belmont Road, Malvern | £ 160,000 | BUY | Unknown | 0.00 KM |
| Belmont Road, Malvern, Worcestershire, WR14 | £ 210,000 | BUY | 7 / 10 | 0.00 KM |
| 53 Belmont Road, Malvern, Worcestershire, WR14 | £ 200,000 | BUY | 6 / 10 | 0.00 KM |
| Belmont Road, Malvern | £ 240,000 | BUY | 6 / 10 | 0.03 KM |
Nearby Properties
| Address | Price | Distance |
|---|---|---|
| 3a Belmont Road | £ 179,995 | 0.01 KM |
| 111 Belmont Road | £ 67,950 | 0.01 KM |
| 41 Belmont Road | £ 138,000 | 0.01 KM |
| 63 Belmont Road | £ 167,000 | 0.01 KM |
| 43 Belmont Road | £ 185,000 | 0.01 KM |