WI
Mountgrove Road, London, N5
By Winkworth
£ 700,000
Winkworth says ..
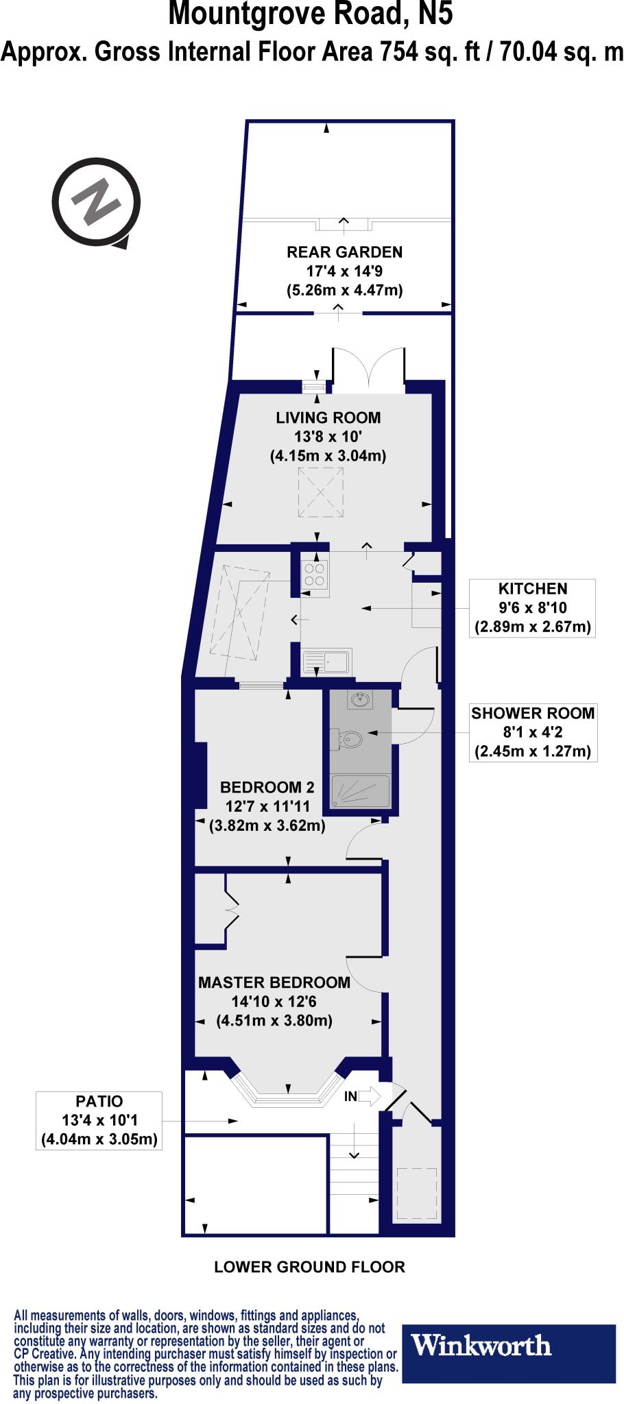
A spacious, two double bedroom, period conversion comes to the market chain free and with its own entrance and private garden set in Highbury, N5. Standing at 754 sqft, the property offers well-proportioned rooms and has been tastefully decorated by the current owner. Upon entering through your o...
- Bedrooms
- 2
- Bathrooms
- 1
- Sqft (est)
- 979.72
The heatmap indicates the level of crime in the area. The color of the heatmap indicates the crime severity and recency.
Metrics Year-on-Year
- Average area value
- 528,333.00 £Decreased by 25.35 %
- Est sale value
- 842,559.20 £Decreased by 5.70 %
- Average area rental value
- 2,120.00 £/moDecreased by 13.36 %
- Est letting value
- 2,939.16 £/moUnchanged by 0.00 %
- Est rental Yield
- 4.82 %Increased by 16.14 %
- Crime Rate
- 4.00 %Unchanged by 0.00 %
from 707,763.00 £
from 893,504.64 £
from 2,447.00 £/mo
from 2,939.16 £/mo
from 4.15 %
from 4.00 %
Agent Activity
Winkworth created the listing.
Nearby Schools
| Name | Type | Ofsted | Distance |
|---|---|---|---|
| Gillespie Primary School | Community School | Outstanding | 0.44 KM |
| Ambler Children'S Centre | Children's Centre | 0.49 KM | |
| St Joan Of Arc Rc Primary School | Voluntary Aided School | Good | 0.52 KM |
| Conewood Street Children'S Centre | Children's Centre | 0.54 KM | |
| Parkwood Primary School | Community School | Good | 0.55 KM |
Images
Nearby Streets
| Name | Average Price | Average Sqft | Distance |
|---|---|---|---|
| Kings Crescent | £ 0 | 0 | 0.00 KM |
| Datchworth Court | £ 0 | 0 | 0.00 KM |
| Sim Street | £ 0 | 0 | 0.00 KM |
| Riversdale Road | £ 887,857 | 0 | 0.00 KM |
| Vivian Comma Close | £ 0 | 0 | 0.00 KM |
Nearby Transport
| Name | NLC | TLC | Distance |
|---|---|---|---|
| Finsbury Park | 6119 | FPK | 1.16 KM |
| Drayton Park | 6000 | DYP | 1.38 KM |
| Canonbury | 1441 | CNN | 1.46 KM |
| Harringay Green Lanes | 7401 | HRY | 1.79 KM |
| Highbury And Islington | 6009 | HHY | 1.86 KM |
Nearby Listings
| Address | Price | Type | Score | Distance |
|---|---|---|---|---|
| Mountgrove Road, London, N5 | £ 700,000 | BUY | Unknown | 0.00 KM |
| Mountgrove Road, LONDON N5 | £ 825,000 | BUY | 7 / 10 | 0.02 KM |
| Mountgrove Road, London, N5 | £ 400,000 | BUY | 5 / 10 | 0.02 KM |
| Wilberforce Road, London, N4 | £ 575,000 | BUY | Unknown | 0.04 KM |
| Mountgrove Road, Hackney, N5 | £ 495,000 | BUY | 8 / 10 | 0.04 KM |
Nearby Properties
| Address | Price | Distance |
|---|---|---|
| 82 Mountgrove Road | £ 765,000 | 0.08 KM |
| 60 Mountgrove Road | £ 470,000 | 0.08 KM |
| 88 Mountgrove Road | £ 150,000 | 0.08 KM |
| 139 Wilberforce Road | £ 265,000 | 0.08 KM |
| 125a Wilberforce Road | £ 55,900 | 0.08 KM |