Lyme Grove, Liverpool, L36
YO

Lyme Grove, Liverpool, L36

By Yopa

£ 190,000

Reviews

3 out of 5 stars

Yopa says ..

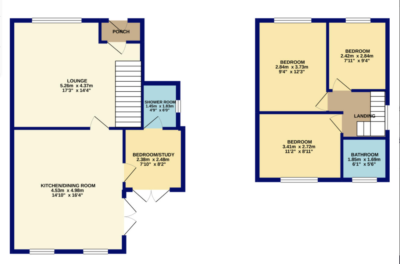
Stunning 3-4 bed end off terrace, in a popular residential location in Huyton L36. This beautifully extended property is perfect for first time buyers and families looking for more space. Book a viewing today!

Property Oracle says ..

This four-bedroom, two-bathroom semi-detached house in Lyme Grove, Stockbridge, Knowsley, presents itself as a well-maintained family home. The property boasts a recently renovated interior, featuring a modern kitchen with contemporary appliances and updated bathrooms. The images reveal a fresh and clean aesthetic throughout, with light and airy rooms, new flooring and fresh paintwork. The living space is adequately sized for a family, and the inclusion of a relatively large garden provides valuable outdoor space, with a patio area and a garden shed. The proximity to well-rated primary schools and train stations in Huyton adds to the property’s appeal. While the specific plot size isn’t provided, the garden appears larger than most properties in the area. The overall condition of the property is very good, however, buyers should conduct their own due diligence and obtain a full survey of the property to confirm this. Given the lack of precise data on local average price per sqft, it’s challenging to give a definitive opinion on value, but, given the property’s location, size, and recent renovations, this price point places it in the competitive range of similar properties in the immediate vicinity. Further investigation of recent sales in the immediate area is recommended for comparative price analysis.

Therefore, we give this property 7 / 10. *Disclaimer: This is our option and does constitute a recommendation or financial advice. Do your own research. *

Price
7
Condition
8
Location
7
Land
6
Bedrooms
4
Bathrooms
2
Sqft (est)
946.58

The heatmap indicates the level of crime in the area. The color of the heatmap indicates the crime severity and recency.

Metrics Year-on-Year

Average area value
190,000.00 £
Increased by 16.12 %
from 163,619.00 £
Est sale value
232,858.68 £
Increased by 26.80 %
from 183,636.52 £
Average area rental value
850.00 £/mo
Decreased by 22.73 %
from 1,100.00 £/mo
Est letting value
946.58 £/mo
Unchanged by 0.00 %
from 946.58 £/mo
Est rental Yield
5.37 %
Decreased by 33.46 %
from 8.07 %
Crime Rate
14.00 %
Unchanged by 0.00 %
from 14.00 %

Agent Activity

  • Yopa created the listing.

Nearby Schools

NameTypeOfstedDistance
St Columba'S Catholic Primary SchoolVoluntary Aided SchoolGood0.36 KM
New Horizons SsccChildren's Centre0.42 KM
Alt Bridge SchoolCommunity Special SchoolOutstanding0.48 KM
Knowsley Central SchoolCommunity Special SchoolOutstanding0.48 KM
Knowsley Lane Primary SchoolAcademy Sponsor LedOutstanding0.49 KM

Images

De5afc26-IMG_6274 135d46e7-IMG_6298 B89c15f0-IMG_6371 E0f5c945-IMG_6281 0e14efee-IMG_6284 5e521411-IMG_6291 593eb251-IMG_6287 D1946ddc-IMG_6294 A38d29a7-IMG_6302 B683379a-IMG_6314 21b40d0e-IMG_6306 5be6ebb2-IMG_6332 Cbaa81a2-IMG_6337 Bc46eaab-IMG_6328 2ec2fc6f-IMG_6339 9dc08857-IMG_6334 Bc698b4e-IMG_6319 416d2794-IMG_6363 Cab96b25-IMG_6355 Fc2e563a-IMG_6359

Nearby Streets

NameAverage PriceAverage SqftDistance
Astley Road £ 75,00000.00 KM
Cromford Road £ 000.00 KM
Forest Grove £ 375,00000.00 KM
Meadow Way £ 345,00000.00 KM
Henhouse Drive £ 255,00000.00 KM

Nearby Transport

NameNLCTLCDistance
Huyton2160HUY1.81 KM
Roby2261ROB2.68 KM
Prescot2337PSC4.16 KM
Whiston2161WHN4.62 KM
Eccleston Park2227ECL6.31 KM

Nearby Listings

AddressPriceTypeScoreDistance
Lyme Grove, Liverpool, L36 £ 190,000BUY7 / 100.00 KM
Lyme Grove, Huyton, Liverpool, L36 8BN £ 75,000BUY6 / 100.00 KM
Hathersage Road, Huyton, Huyton, L36 £ 130,000BUY6 / 100.06 KM
Hathersage Road, Liverpool £ 180,000BUY7 / 100.06 KM
Lyme Grove, Liverpool, L36 £ 145,000BUY6 / 100.15 KM

Nearby Properties

AddressPriceDistance
7 Lyme Grove £ 73,9500.01 KM
5 Lyme Grove £ 90,0000.01 KM
31 Lyme Grove £ 61,5000.01 KM
43 Lyme Grove £ 133,5000.01 KM
55 Marton Road £ 67,0000.19 KM