Beaconsfield Road, Slough, Farnham Common
By Langhams Estate Agents
£ 380,000
Reviews
3 out of 5 stars
Langhams Estate Agents says ..
“Reserve a property at this development by 26th April 2024 and we'll pay your Stamp Duty (up to £5,000) help towards your legal fees (up to £2,000), estate agent fees (up to £10,000) and moving fees.”Over 60’s Retirement Living at its best! Located in The Broadway area of ...
Property Oracle says ..
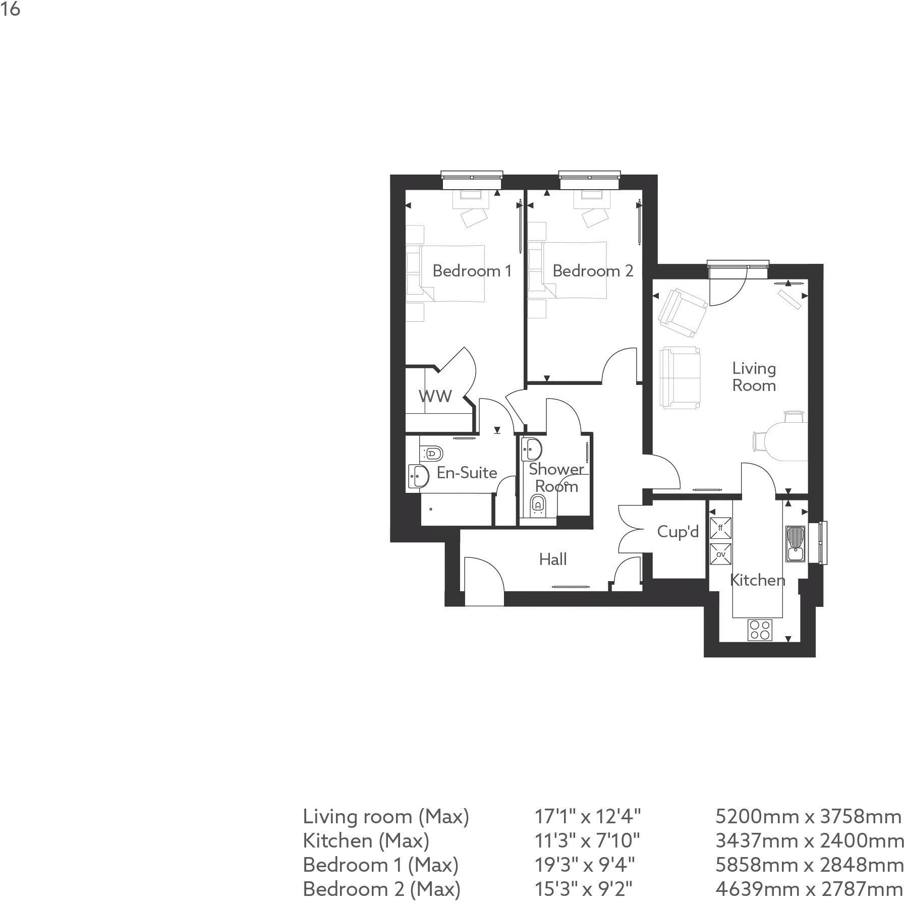
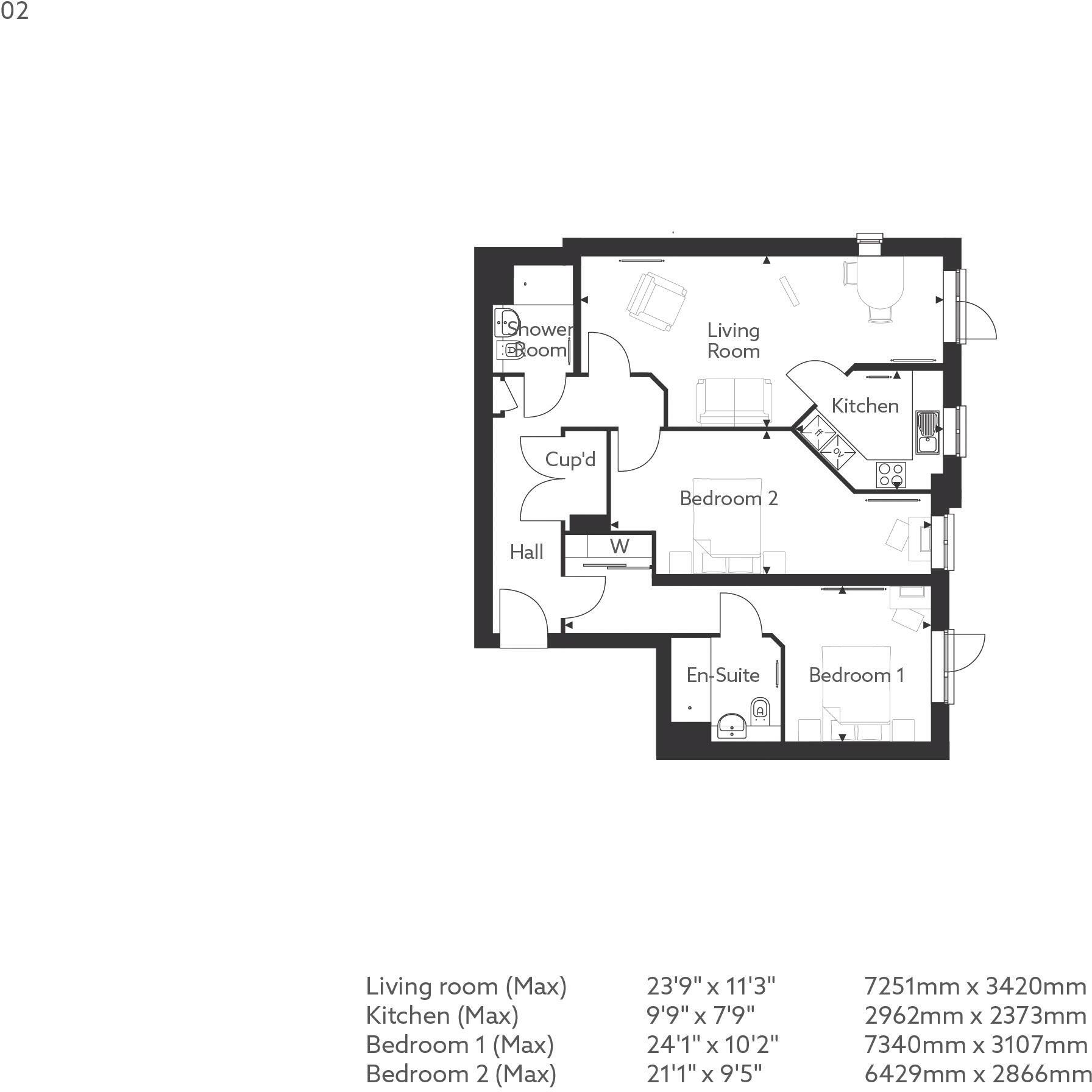
This property, located in Beaconsfield Road, Slough, within the desirable Farnham Common area of Buckinghamshire, is presented as a modern, well-maintained retirement property. The images reveal contemporary design, high-quality fixtures and fittings, and a well-landscaped communal garden. The property benefits from a two-bedroom, two-bathroom layout, though the exact size of the private outdoor space isn’t specified. Its location offers easy access to several reputable schools, including two ‘Good’-rated Ofsted schools. The proximity to multiple train stations providing connections to London and nearby towns is another significant advantage. However, the property’s price and value require careful consideration, given the limited detail provided regarding the square footage of nearby properties. The lack of comparable property information with clear square footage data prevents a definitive conclusion on whether this property represents exceptional value for money in the Farnham Common market.
Therefore, we give this property 6 / 10. *Disclaimer: This is our option and does constitute a recommendation or financial advice. Do your own research. *
- Price
- 7
- Condition
- 9
- Location
- 7
- Land
- 4
- Bedrooms
- 2
- Bathrooms
- 2
- Sqft (est)
- 836.03
The heatmap indicates the level of crime in the area. The color of the heatmap indicates the crime severity and recency.
Metrics Year-on-Year
- Average area value
- 1,040,385.00 £Decreased by 1.22 %
- Est sale value
- 588,565.12 £Increased by 7.15 %
- Average area rental value
- 2,075.00 £/moDecreased by 10.13 %
- Est letting value
- 836.03 £/moUnchanged by 0.00 %
- Est rental Yield
- 2.39 %Decreased by 9.13 %
- Crime Rate
- 39.00 %Unchanged by 0.00 %
Agent Activity
Langhams Estate Agents created the listing.
Nearby Schools
| Name | Type | Ofsted | Distance |
|---|---|---|---|
| Caldicott School | Other Independent School | 0.80 KM | |
| Farnham Common Infant School | Community School | Good | 0.82 KM |
| Farnham Common Junior School | Community School | Good | 0.91 KM |
| Dair House School | Other Independent School | 1.12 KM | |
| St Mary'S Farnham Royal Cofe Primary School | Voluntary Aided School | Good | 1.98 KM |
Images
Nearby Streets
| Name | Average Price | Average Sqft | Distance |
|---|---|---|---|
| Elm Close | £ 1,225,000 | 0 | 0.00 KM |
| Parsonage Lane | £ 995,000 | 0 | 0.00 KM |
| Hamilton Way | £ 0 | 0 | 0.00 KM |
| Purton Court | £ 421,667 | 0 | 0.00 KM |
| Bracken Close | £ 0 | 0 | 0.00 KM |
Nearby Transport
| Name | NLC | TLC | Distance |
|---|---|---|---|
| Burnham | 3176 | BNM | 4.87 KM |
| Slough | 3172 | SLO | 5.30 KM |
| Seer Green | 3061 | SRG | 6.30 KM |
| Beaconsfield | 3047 | BCF | 7.19 KM |
| Windsor And Eton Riverside | 5672 | WNR | 7.62 KM |
Nearby Listings
| Address | Price | Type | Score | Distance |
|---|---|---|---|---|
| Beaconsfield Road, Slough, Farnham Common | £ 380,000 | BUY | 6 / 10 | 0.00 KM |
| Beaconsfield Road Farnham Common SL2 3FQ | £ 295,000 | BUY | 6 / 10 | 0.00 KM |
| Beaconsfield Road, Slough | £ 430,000 | BUY | 6 / 10 | 0.00 KM |
| Beaconsfield Road, Farnham Common, SL2 3FQ | £ 420,000 | BUY | 6 / 10 | 0.04 KM |
| Forge Drive, Farnham Common, Buckinghamshire, SL2 | £ 475,000 | BUY | 6 / 10 | 0.06 KM |
Nearby Properties
| Address | Price | Distance |
|---|---|---|
| 12 Forge Drive | £ 250,000 | 0.04 KM |
| 24 Forge Drive | £ 335,000 | 0.04 KM |
| 3 Forge Drive | £ 245,500 | 0.04 KM |
| 4 Forge Drive | £ 315,000 | 0.04 KM |
| 20 Forge Drive | £ 425,000 | 0.04 KM |