Brynmor Terrace, Penmaenmawr, Conwy, LL34
By Dafydd Hardy
£ 40,000
Reviews
2 out of 5 stars
Dafydd Hardy says ..
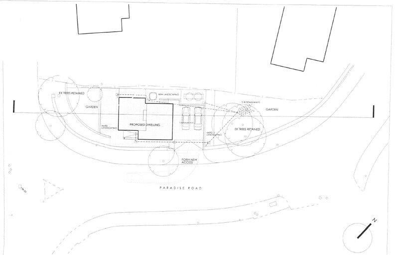
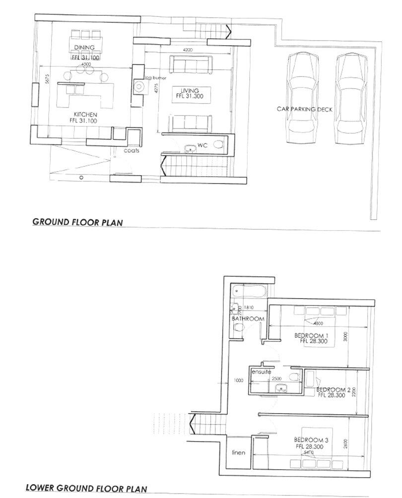
An exciting investment opportunity to own this plot of land beautifully situated in an elevated position overlooking the sea and The Great Orme. Within close proximity to the centre of Penmaenmawr, it's a highly desirable location. There is planning permission for a 2 storey, detached dwelling wi...
Property Oracle says ..
This is a plot of land in Penmaenmawr, Conwy, listed for £40,000. Currently undeveloped, it presents a blank canvas for potential development. The location offers convenient access to local amenities and transportation, with the Penmaenmawr train station nearby. While the land requires substantial work to become habitable, the asking price is considerably lower than the average property price in the area, potentially making it an attractive investment opportunity. The architectural plans suggest the possibility of incorporating a garden and landscaping into the development.
Therefore, we give this property 5 / 10. *Disclaimer: This is our option and does constitute a recommendation or financial advice. Do your own research. *
- Price
- 9
- Condition
- 1
- Location
- 7
- Land
- 6
- Bedrooms
- 0
- Bathrooms
- 0
The heatmap indicates the level of crime in the area. The color of the heatmap indicates the crime severity and recency.
Metrics Year-on-Year
- Average area value
- 160,000.00 £Decreased by 30.96 %
- Average area rental value
- 695.00 £/moDecreased by 15.76 %
- Est rental Yield
- 5.21 %Increased by 22.01 %
- Crime Rate
- 179.00 %Unchanged by 0.00 %
Agent Activity
Dafydd Hardy created the listing.
Nearby Schools
| Name | Type | Ofsted | Distance |
|---|---|---|---|
| Ysgol Pencae | Welsh Establishment | 0.83 KM | |
| Ysgol Capelulo | Welsh Establishment | 2.11 KM | |
| Ysgol Babanod Llanfairfechan | Welsh Establishment | 5.94 KM | |
| Ysgol Pant-Y-Rhedyn | Welsh Establishment | 6.14 KM | |
| Ysgol Llangelynnin | Welsh Establishment | 8.51 KM |
Images
Nearby Streets
| Name | Average Price | Average Sqft | Distance |
|---|---|---|---|
| Constitution Hill | £ 300,000 | 0 | 0.00 KM |
| Y Berllan | £ 220,000 | 0 | 0.00 KM |
| Edward Street | £ 140,000 | 0 | 0.00 KM |
| Ffordd y Foel | £ 495,000 | 0 | 0.00 KM |
| Caerwaen Terrace | £ 0 | 0 | 0.00 KM |
Nearby Transport
| Name | NLC | TLC | Distance |
|---|---|---|---|
| Penmaenmawr | 2494 | PMW | 0.26 KM |
| Llanfairfechan | 2488 | LLF | 6.89 KM |
Nearby Listings
| Address | Price | Type | Score | Distance |
|---|---|---|---|---|
| Brynmor Terrace, Penmaenmawr, Conwy, LL34 | £ 40,000 | BUY | 5 / 10 | 0.00 KM |
| Fernbrook Road, Penmaenmawr, Gwynedd | £ 305,000 | BUY | 6 / 10 | 0.07 KM |
| Fernbrook Road, Penmaenmawr, LL34 | £ 320,000 | BUY | 7 / 10 | 0.07 KM |
| Paradise Road, Penmaenmawr | £ 135,000 | BUY | 7 / 10 | 0.09 KM |
| Pant Yr Afon, Penmaenmawr | £ 249,500 | BUY | 6 / 10 | 0.20 KM |
Nearby Properties
| Address | Price | Distance |
|---|---|---|
| Dingle Lodge | £ 337,500 | 0.09 KM |
| Lynwood | £ 38,000 | 0.09 KM |
| Llwyn Onn | £ 210,000 | 0.12 KM |
| Cilfan | £ 105,000 | 0.12 KM |
| Bodnant | £ 157,000 | 0.12 KM |