Whissendine Grove, Stapleford Road, Whissendine, Rutland, LE15 7LE
By Mulberry Homes
£ 400,000
Reviews
4 out of 5 stars
Mulberry Homes says ..
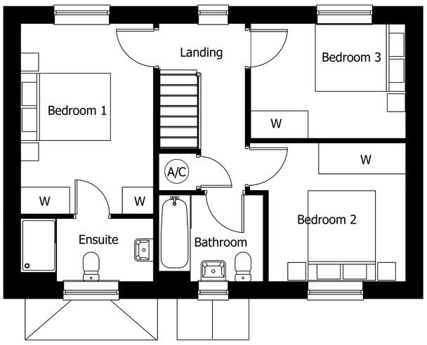
Welcome to the Chartwell, our beautifully presented three-double-bedroom detached family home with a traditional bay window in the living room; perfect for a reading nook. Outside is a private back garden, driveway and garage.
Property Oracle says ..
This property is a new build, three bedroom detached home located in Whissendine, Rutland. The property benefits from a modern kitchen, three bedrooms, and a family bathroom. There is also a good-sized garden, and off-street parking. The location is good, with a primary school within walking distance and other amenities nearby. The average house price in Whissendine is £372,400, and the average price per square foot is £326. This property is listed at £400,000, which is slightly above the average price but below the average price per square foot. Considering the size, location, and condition, the asking price seems reasonable.
Therefore, we give this property 8 / 10. *Disclaimer: This is our option and does constitute a recommendation or financial advice. Do your own research. *
- Price
- 7
- Condition
- 10
- Location
- 8
- Land
- 7
- Bedrooms
- 3
- Bathrooms
- 0
- Sqft (est)
- 394.00
The heatmap indicates the level of crime in the area. The color of the heatmap indicates the crime severity and recency.
Metrics Year-on-Year
- Average area value
- 315,000.00 £Decreased by 28.08 %
- Est sale value
- 345,538.00 £Increased by 227.24 %
- Average area rental value
- 788.00 £/moDecreased by 33.11 %
- Est letting value
- 788.00 £/mo
- Est rental Yield
- 3.00 %Decreased by 7.12 %
- Crime Rate
- 93.00 %Unchanged by 0.00 %
Agent Activity
Mulberry Homes created the listing.
Nearby Schools
| Name | Type | Ofsted | Distance |
|---|---|---|---|
| Whissendine Church Of England Primary School | Academy Converter | 1.01 KM | |
| Langham Cofe (Controlled) Primary School | Academy Converter | Good | 4.85 KM |
| St Peter'S Church Of England Primary School Wymondham | Academy Converter | Good | 5.48 KM |
| Harington School | Free Schools 16 To 19 | Outstanding | 6.94 KM |
| Catmose College | Academy Converter | Outstanding | 7.27 KM |
Images
Nearby Streets
| Name | Average Price | Average Sqft | Distance |
|---|---|---|---|
| Thorpe Gardens | £ 0 | 0 | 0.00 KM |
Nearby Transport
| Name | NLC | TLC | Distance |
|---|---|---|---|
| Oakham | 1904 | OKM | 7.62 KM |
Nearby Listings
| Address | Price | Type | Score | Distance |
|---|---|---|---|---|
| Whissendine Grove, Stapleford Road, Whissendine, Rutland, LE15 7LE | £ 375,000 | BUY | 8 / 10 | 0.00 KM |
| Whissendine Grove, Stapleford Road, Whissendine, Rutland, LE15 7LE | £ 480,000 | BUY | 8 / 10 | 0.00 KM |
| Whissendine Grove, Stapleford Road, Whissendine, Rutland, LE15 7LE | £ 575,000 | BUY | Unknown | 0.00 KM |
| Whissendine Grove, Stapleford Road, Whissendine, Rutland, LE15 7LE | £ 400,000 | BUY | 8 / 10 | 0.00 KM |
| Whissendine Grove, Stapleford Road, Whissendine, Rutland, LE15 7LE | £ 650,000 | BUY | 6 / 10 | 0.00 KM |
Nearby Properties
| Address | Price | Distance |
|---|---|---|
| 6 Willow Close | £ 300,000 | 0.00 KM |
| 1 Willow Close | £ 245,000 | 0.01 KM |
| 2 Willow Close | £ 475,000 | 0.02 KM |
| 4 Willow Close | £ 270,000 | 0.02 KM |
| 60 Sherrard Close | £ 82,500 | 0.11 KM |