Your Ipswich says ..
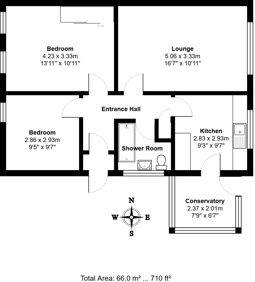
NO ONWARD CHAIN - We are delighted to be offering for sale this 2 bedroom semi-detached bungalow located to the South-West of Ipswich, within a short walk to local shops, bus service and schools plus Belstead brook and playing field. The bungalow comprises enclosed porch, entrance hall, lounge, k...
Property Oracle says ..
This is a two-bedroom semi-detached bungalow in Stoke Park, Ipswich. The property is in need of some modernisation, particularly in the kitchen and bathroom. It features a garden, shed, garage and off-street parking. The property is located within 3km of Ipswich train station. The nearest school requires improvement.
Therefore, we give this property 6 / 10. *Disclaimer: This is our option and does constitute a recommendation or financial advice. Do your own research. *
- Price
- 7
- Condition
- 5
- Location
- 6
- Land
- 7
- Bedrooms
- 2
- Bathrooms
- 1
- Sqft (est)
- 710.42
The heatmap indicates the level of crime in the area. The color of the heatmap indicates the crime severity and recency.
Metrics Year-on-Year
- Average area value
- 243,333.00 £Decreased by 21.35 %
- Est sale value
- 233,017.76 £Increased by 25.67 %
- Average area rental value
- 935.00 £/moDecreased by 12.70 %
- Est letting value
- 710.42 £/mo
- Est rental Yield
- 4.61 %Increased by 11.08 %
- Crime Rate
- 4.00 %Unchanged by 0.00 %
Agent Activity
Your Ipswich created the listing.
Nearby Schools
| Name | Type | Ofsted | Distance |
|---|---|---|---|
| Gusford Community Primary School | Academy Sponsor Led | Requires improvement | 0.35 KM |
| Hawthorn Children'S Centre | Children's Centre | 0.76 KM | |
| Willows Children'S Centre | Children's Centre | 0.99 KM | |
| The Willows Primary School | Academy Converter | Requires improvement | 1.11 KM |
| The Oaks Primary School | Academy Converter | Outstanding | 1.14 KM |
Images
Nearby Streets
| Name | Average Price | Average Sqft | Distance |
|---|---|---|---|
| Cambridge Drive | £ 240,000 | 0 | 0.00 KM |
| Ellenbrook Road | £ 240,000 | 0 | 0.00 KM |
| Worsley Close | £ 0 | 0 | 0.00 KM |
| Clump Field | £ 175,000 | 0 | 0.00 KM |
| Grebe Close | £ 126,667 | 0 | 0.00 KM |
Nearby Transport
| Name | NLC | TLC | Distance |
|---|---|---|---|
| Ipswich | 7217 | IPS | 2.96 KM |
| Westerfield | 7226 | WFI | 6.92 KM |
| Derby Road (Ipswich) | 7212 | DBR | 6.97 KM |
Nearby Listings
| Address | Price | Type | Score | Distance |
|---|---|---|---|---|
| Tinabrook Close, Ipswich | £ 250,000 | BUY | 6 / 10 | 0.00 KM |
| Carolbrook Road, Ipswich | £ 350,000 | BUY | Unknown | 0.10 KM |
| Carolbrook Road, Ipswich, IP2 | £ 350,000 | BUY | 7 / 10 | 0.11 KM |
| Annbrook Road, Ipswich | £ 240,000 | BUY | 6 / 10 | 0.11 KM |
| Dawnbrook Close, Ipswich | £ 300,000 | BUY | 7 / 10 | 0.13 KM |
Nearby Properties
| Address | Price | Distance |
|---|---|---|
| 19 Tinabrook Close | £ 152,500 | 0.00 KM |
| 9 Tinabrook Close | £ 175,000 | 0.00 KM |
| 4 Tinabrook Close | £ 186,000 | 0.00 KM |
| 14 Tinabrook Close | £ 143,000 | 0.00 KM |
| 17 Tinabrook Close | £ 240,000 | 0.00 KM |