Bairstow Street, Preston, Lancashire, PR1
By Hazelwells
£ 425,000
Reviews
3 out of 5 stars
Hazelwells says ..
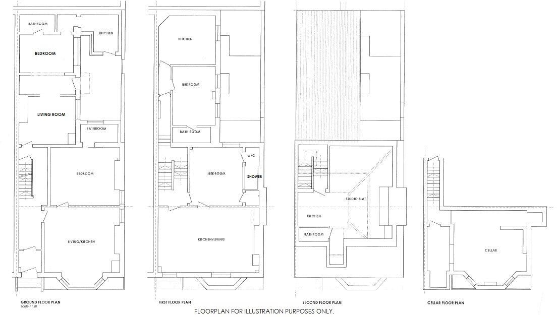
Hazelwells are delighted to offer for sale this investment property arranged as 5 flats offering spacious rooms and traditional features with a gross income of £47,000 per annum, a gross yield of 11.06%. The accommodation comprises; communal entrance hallway, two flats to the ground floor, two flats
Property Oracle says ..
This is a large block of apartments located in Preston City Centre. The property has been modernised and is in good condition. It offers five bedrooms and five bathrooms, making it suitable for a large family or multiple occupants. While the property has limited land, its central location provides easy access to amenities, schools, and transportation. The asking price of £425,000 appears reasonable given the property’s size, condition, and location.
Therefore, we give this property 6 / 10. *Disclaimer: This is our option and does constitute a recommendation or financial advice. Do your own research. *
- Price
- 7
- Condition
- 8
- Location
- 7
- Land
- 3
- Bedrooms
- 5
- Bathrooms
- 5
- Sqft (est)
- 2,289.85
The heatmap indicates the level of crime in the area. The color of the heatmap indicates the crime severity and recency.
Metrics Year-on-Year
- Average area value
- 322,952.00 £Decreased by 27.89 %
- Est sale value
- 787,708.40 £Decreased by 6.52 %
- Average area rental value
- 1,604.00 £/moDecreased by 7.50 %
- Est letting value
- 2,289.85 £/moUnchanged by 0.00 %
- Est rental Yield
- 5.96 %Increased by 28.17 %
- Crime Rate
- 5.00 %Unchanged by 0.00 %
Agent Activity
Hazelwells created the listing.
Nearby Schools
| Name | Type | Ofsted | Distance |
|---|---|---|---|
| Imam Muhammad Zakariya School | Other Independent School | Good | 0.10 KM |
| Stoneygate Children'S Centre | Children's Centre | 0.48 KM | |
| Stoneygate Nursery School | Local Authority Nursery School | Good | 0.48 KM |
| St Augustine'S Catholic Primary School | Voluntary Aided School | Good | 0.85 KM |
| St Ignatius' Catholic Primary School | Voluntary Aided School | Requires improvement | 1.03 KM |
Images
Nearby Streets
| Name | Average Price | Average Sqft | Distance |
|---|---|---|---|
| New Cock Yard | £ 0 | 0 | 0.00 KM |
| Lennox Street | £ 0 | 0 | 0.00 KM |
| Tenby Road | £ 0 | 0 | 0.00 KM |
| Lord Street | £ 0 | 0 | 0.00 KM |
| Rose Street | £ 49,950 | 0 | 0.00 KM |
Nearby Transport
| Name | NLC | TLC | Distance |
|---|---|---|---|
| Preston (Lancs) | 2753 | PRE | 1.00 KM |
| Lostock Hall | 2689 | LOH | 3.67 KM |
| Bamber Bridge | 2561 | BMB | 5.29 KM |
| Leyland | 2710 | LEY | 6.40 KM |
Nearby Listings
| Address | Price | Type | Score | Distance |
|---|---|---|---|---|
| Bairstow Street, Preston, Lancashire, PR1 | £ 425,000 | BUY | 6 / 10 | 0.00 KM |
| Bairstow Street, Preston, PR1 | £ 90,000 | BUY | 6 / 10 | 0.00 KM |
| Bairstow Street, Preston | £ 89,999 | BUY | 7 / 10 | 0.00 KM |
| Bairstow Street, Preston, PR1 3 | £ 390,000 | BUY | 6 / 10 | 0.02 KM |
| Simpson Court, Preston | £ 89,950 | BUY | Unknown | 0.03 KM |
Nearby Properties
| Address | Price | Distance |
|---|---|---|
| 9 Bairstow Street | £ 73,000 | 0.01 KM |
| 20 Bairstow Street | £ 127,000 | 0.01 KM |
| 39 Bairstow Street | £ 235,000 | 0.01 KM |
| 35 Bairstow Street | £ 185,000 | 0.01 KM |
| 30 Bairstow Street | £ 320,000 | 0.01 KM |