Pearsons says ..
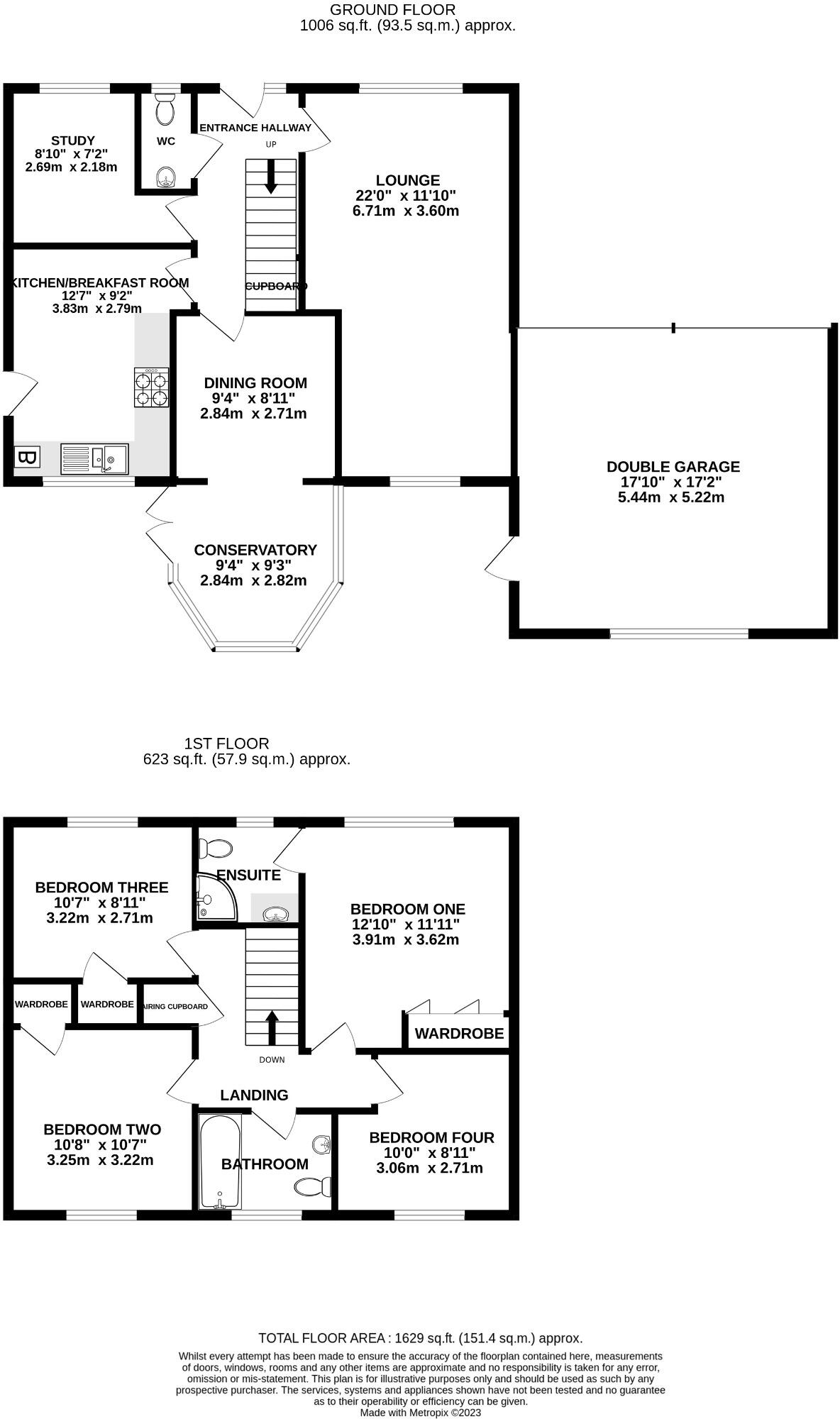
NO FORWARD CHAIN. This well-proportioned four bedroom detached house is located in a much requested and highly regarded development just north of Fareham town centre. The internal accommodation comprises entrance hall, cloakroom, study, 22' lounge, dining room opening onto the conservatory and a ...
Property Oracle says ..
This four-bedroom detached house in Fareham East presents a mixed bag. Its location is a definite plus, offering proximity to the town centre, train station, and several schools with good Ofsted ratings. The family-friendly aspect is further enhanced by the presence of a garden. However, the property’s interior décor appears dated, and while the house’s structure seems sound, updating would likely be needed to bring it up to contemporary standards. The available images suggest a moderate-sized garden. Although the asking price is in line with comparable properties in the neighbourhood, the lack of precise square footage data and potentially necessary renovations limit the overall appeal. Overall, this property offers a solid foundation with potential, but buyers should factor in potential renovation costs into their budget.
Therefore, we give this property 6 / 10. *Disclaimer: This is our option and does constitute a recommendation or financial advice. Do your own research. *
- Price
- 7
- Condition
- 6
- Location
- 7
- Land
- 5
- Bedrooms
- 4
- Bathrooms
- 2
- Sqft (est)
- 1,629.00
The heatmap indicates the level of crime in the area. The color of the heatmap indicates the crime severity and recency.
Metrics Year-on-Year
- Average area value
- 381,429.00 £Increased by 14.83 %
- Est sale value
- 724,905.00 £Increased by 39.06 %
- Average area rental value
- 1,375.00 £/moIncreased by 14.30 %
- Est letting value
- 1,629.00 £/moUnchanged by 0.00 %
- Est rental Yield
- 4.33 %Decreased by 0.46 %
- Crime Rate
- 0.00 %
Agent Activity
Pearsons marked this listing as sold.
Pearsons created the listing.
Nearby Schools
| Name | Type | Ofsted | Distance |
|---|---|---|---|
| Harrison Primary School | Community School | Outstanding | 0.92 KM |
| Boundary Oak School | Other Independent School | 0.96 KM | |
| Uplands Primary School | Community School | Good | 1.77 KM |
| Kingsgate School | Other Independent Special School | Good | 1.99 KM |
| Cams Hill School | Academy Converter | Good | 2.21 KM |
Images
Nearby Streets
| Name | Average Price | Average Sqft | Distance |
|---|---|---|---|
| Pook Lane | £ 0 | 0 | 0.00 KM |
| Palmerston Avenue | £ 418,333 | 0 | 0.00 KM |
| Trinity Court | £ 0 | 0 | 0.00 KM |
| Pulheim Parade | £ 0 | 0 | 0.00 KM |
| Moresby Court | £ 142,250 | 0 | 0.00 KM |
Nearby Transport
| Name | NLC | TLC | Distance |
|---|---|---|---|
| Fareham | 5900 | FRM | 2.23 KM |
| Portchester | 5928 | PTC | 5.77 KM |
Nearby Listings
| Address | Price | Type | Score | Distance |
|---|---|---|---|---|
| FOXGLOVES, FAREHAM | £ 650,000 | BUY | 7 / 10 | 0.03 KM |
| The Meadows, Fareham, Hampshire, PO16 | £ 575,000 | BUY | 7 / 10 | 0.11 KM |
| ST CHRISTOPHER AVENUE, FAREHAM | £ 560,000 | BUY | 7 / 10 | 0.27 KM |
| ST CHRISTOPHER AVENUE, FAREHAM | £ 525,000 | BUY | Unknown | 0.30 KM |
| St. Christopher Avenue, Fareham | £ 525,000 | BUY | 7 / 10 | 0.30 KM |
Nearby Properties
| Address | Price | Distance |
|---|---|---|
| 12 Foxgloves | £ 295,000 | 0.02 KM |
| 10 Foxgloves | £ 108,000 | 0.02 KM |
| 7 Foxgloves | £ 500,000 | 0.02 KM |
| 5 Foxgloves | £ 375,000 | 0.02 KM |
| 8 Foxgloves | £ 385,000 | 0.02 KM |