High Street, Wangford, Beccles
Flick & Son logo

High Street, Wangford, Beccles

By Flick & Son

£ 280,000

Reviews

3 out of 5 stars

Flick & Son says ..

Wangford is a highly desirable and well-served village situated just a short drive from the Suffolk Heritage Coast, making it an ideal base for enjoying the best of both countryside and coastal living. The village offers a welcoming community atmosphere, complete with a well-regarded local pub an...

Property Oracle says ..

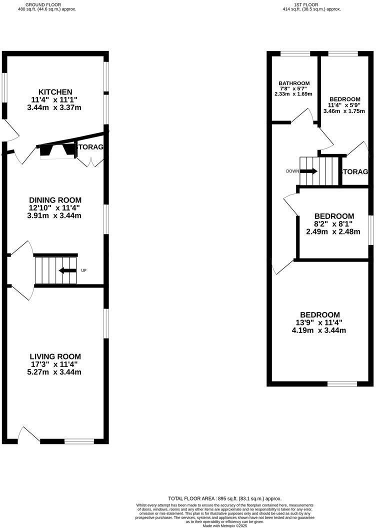
This end-of-terrace property on High Street in Wangford, Beccles, offers a blend of traditional charm and modern living. The house features three bedrooms and one bathroom within its 894.48 sqft. The property includes a generously sized garden with mature trees and shrubs. The interior showcases a mix of traditional elements and updated spaces, such as the modern bathroom. Located on the High Street, the property benefits from a central village location. The asking price of £280,000 appears reasonable in comparison to other properties in the area, making it an attractive opportunity for potential buyers. The property is listed with Flick & Son estate agents.

Therefore, we give this property 7 / 10. *Disclaimer: This is our option and does constitute a recommendation or financial advice. Do your own research. *

Price
8
Condition
7
Location
7
Land
8
Bedrooms
3
Bathrooms
1
Sqft (est)
894.48

The heatmap indicates the level of crime in the area. The color of the heatmap indicates the crime severity and recency.

Metrics Year-on-Year

Average area value
684,700.00 £
Decreased by 34.86 %
from 1,051,198.00 £
Est sale value
499,119.84 £
Decreased by 22.61 %
from 644,920.08 £
Average area rental value
1,875.00 £/mo
Increased by 16.32 %
from 1,612.00 £/mo
Est letting value
894.48 £/mo
Unchanged by 0.00 %
from 894.48 £/mo
Est rental Yield
3.29 %
Increased by 78.80 %
from 1.84 %
Crime Rate
26.00 %
Unchanged by 0.00 %
from 26.00 %

Agent Activity

  • Flick & Son created the listing.

Nearby Schools

NameTypeOfstedDistance
Saint Felix SchoolOther Independent School4.56 KM
Brampton Church Of England Primary SchoolAcademy Sponsor Led5.20 KM
Reydon Primary SchoolAcademy Sponsor LedGood5.71 KM
Southwold Primary SchoolAcademy Sponsor Led7.36 KM
Wenhaston Primary SchoolAcademy ConverterGood7.67 KM

Images

image00031.jpeg image00004.jpeg IMG_4438.jpg image00037.jpeg image00045.jpeg image00040.jpeg image00041.jpeg image00032.jpeg image00033.jpeg image00035.jpeg image00030.jpeg image00028.jpeg image00017.jpeg image00016.jpeg image00020.jpeg image00013.jpeg image00027.jpeg image00024.jpeg image00020.jpeg image00019.jpeg thumbnail_IMG_4442.jpg

Nearby Streets

NameAverage PriceAverage SqftDistance
Elms Lane £ 250,00000.00 KM

Nearby Transport

NameNLCTLCDistance
Brampton (Suffolk)7259BRP9.45 KM

Nearby Listings

AddressPriceTypeScoreDistance
High Street, Wangford, Beccles £ 280,000BUY7 / 100.00 KM
High Street, Wangford, Beccles, Suffolk, NR34 £ 350,000BUY6 / 100.02 KM
High Street, Wangford, Beccles £ 525,000BUY6 / 100.04 KM
High Street, Wangford, Beccles £ 270,000BUYUnknown0.09 KM
Wangford £ 315,000BUY7 / 100.10 KM

Nearby Properties

AddressPriceDistance
67 High Street £ 179,9500.10 KM
15 High Street £ 175,0000.10 KM
59 High Street £ 165,0000.10 KM
71 High Street £ 130,0000.10 KM
61 High Street £ 180,0000.10 KM